Id 159396

Москва, пр-т Андропова, 37 - 605 м2 / Продажа готового арендного бизнеса / Ресторан Пхеньян

адрес Москва, проспект Андропова, 37

Арендный бизнес
Особняк/здание
Общепит

Окупаемость: 8 лет

Доходность:12.50%

144 000 000 RUB | за все

(за 1 м2 — 238 017 RUB)

площадь 605.0 м2

QR код Qr код

Предлагается к продаже полностью функционирующий арендный бизнес в сегменте HoReCa, расположенный в одной из наиболее посещаемых рекреационных зон Москвы. Объект расположен в исключительной локации. Густонаселённый жилой массив, 20 метров от главного входа в музей-заповедник «Коломенское», 430 метров от станции метро «Коломенская». Новая набережная и развитые прогулочные маршруты.

Технические характеристики:
Общая площадь: 605 м²
Объект занимает 3 этажа(Цоколь, 1 и 2 этажи)
Полноформатный ресторанно-клубный комплекс
Летняя веранда
Панорамные виды на парк
Электрическая мощность: 140 кВт
Приточно-вытяжная вентиляция
Пожарная сигнализация
ТЕХНИЧЕСКИЕ ХАРАКТЕРИСТИКИ
Производится ремонт клубной зоны в цоколе под формат
караоке. Установлена сцена для проведения мероприятий с живой музыкой.

Коммерческие условия:
Стоимость 144 000 000 руб
Стоимость с 1 м2 238 016 руб
Ресторан «Пхеньян». Проект при Посольстве Кореи в Москве
Долгосрочный договор аренды на 5 лет
Индексация 10% ежегодно
Коммунальные и переменные расходы —
на арендаторах
МАП 1 510 000 руб.
ГАП 18 120 000 руб.
Индексация 10%
Окупаемость 8 лет

Технические характеристики

Тип здания: Арендный бизнес,Особняк/здание,Общепит

Общая площадь: 605  м2

Этаж: 1

Всего этажей: 22

Электрическая мощность: 140

Высота потолков: 3

Парковка: Имеется

Коммерческие условия

Цена за все: 144 000 000 RUB

ФОРМА ВЛАДЕНИЯ: Собственность

Общий МАП: 1 510 000 RUB (данный МАП является минимальным, при оптимизации арендаторов арендный поток можно значительно увеличить)

Общий ГАП: 18 120 000 RUB

Окупаемость: 8 лет

Доходность: 12.50%

карта

Расположение

Адрес: Москва, проспект Андропова, 37

Округ: Южный административный округ,Юго-Восточный административный округ

Близость метро: Коломенская

Транспортная доступность: развитое

Окружение

Торговое окружение: развитое

Адрес:

Москва, проспект Андропова, 37

Округ:

Южный административный округ,Юго-Восточный административный округ

Близость метро:

Коломенская

Транспортная доступность:

развитое

карта

Торговое окружение:

развитое

Общая площадь:

605  м2

Этаж:

1

Всего этажей:

22

Тип:

Арендный бизнес,Особняк/здание,Общепит

Электрическая мощность:

140

Высота потолков:

3

Парковка:

Имеется

ФОРМА ВЛАДЕНИЯ:

Собственность

Цена за все:

144 000 000 RUB

Общий МАП: 1 510 000

(данный МАП является минимальным, при оптимизации арендаторов арендный поток можно значительно увеличить)

Общий ГАП:

18 120 000

Окупаемость:

8 лет

Доходность:

12.50%

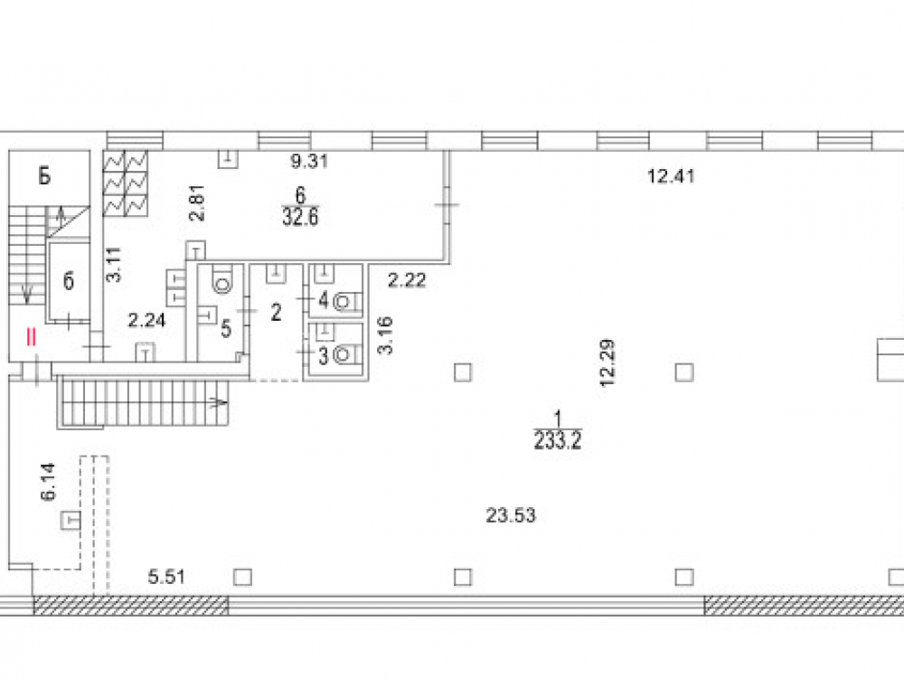
Планировка

Егор Дмитриев

Ваш брокер по работе с клиентами

Найдите лучшее место
для жизни, бизнеса, инвестиций

Оставьте свои контакты — с вами свяжется руководитель отдела для презентации нужного вам объекта

Похожие объекты