Id 160210

Цветной бульвар, 24к1 - 949,7 кв. м. - Продажа / ОСЗ / Особняк

адрес Москва, Цветной бульвар, 24к1

Многофункциональный
Особняк/здание
С отдельным входом
Торговая

460 000 000 RUB | за все

(за 1 м2 — 484 363 RUB)

площадь 949.7 м2

QR код Qr код

Продажа четырехэтажного особняка 949,7 м² на 1 линии Цветного бульвара.
Адрес: г. Москва, ЦАО, Мещанский район, Цветной бульвар, 24к1. Здание расположено на первой линии Цветного бульвара, в 3 минутах ходьбы от станции метро «Цветной бульвар». Район с высокой пешеходной проходимостью, примыкает к плотной жилой застройке и офисным центрам.

Технические характеристики:
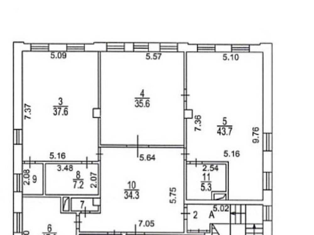
Общая площадь: 949,7 кв. м.
Земельный участок: 340 кв. м. (долгосрочная аренда у города).
Год постройки: 1997 (кирпичный конструктив).
Конструктив позволяет надстроить два дополнительных этажа.
Высота потолков: 3 м.
Три отдельных входа.
Цокольный этаж: подготовлен под размещение общепита (отделка, коммуникации).
1 этаж: офисное помещение с витринами на бульвар.
2 и 3 этажи: жилые помещения (подходят под частную резиденцию или хоум-офис).
Инженерия: электрическая мощность 80 кВт (с возможностью увеличения), центральное кондиционирование, автоматическая система пожаротушения.
Прилегающая территория благоустроена.
Огороженное парковочное пространство на 4–5 автомобилей.

Коммерческие условия:
Стоимость объекта: 460 000 000 рублей.
Стоимость за 1 кв. м.: 442 254 рублей.

Видеообзор объекта предоставляется по запросу.

Технические характеристики

Тип здания: Многофункциональный,Особняк/здание,С отдельным входом,Торговая

Общая площадь: 949.7  м2

Этаж: 1

Всего этажей: 4

Электрическая мощность: 80 кВт с возможностью увеличения

Высота потолков: 3 м

Парковка: Огороженное парковочное пространство на 4–5 автомобилей

Коммерческие условия

Цена за все: 460 000 000 RUB

ФОРМА ВЛАДЕНИЯ: по запросу

карта

Расположение

Адрес: Москва, Цветной бульвар, 24к1

Округ: Центральный административный округ

Близость метро: Цветной бульвар

Транспортная доступность: в пешей доступности

Окружение

Торговое окружение: развитая инфраструктура

Адрес:

Москва, Цветной бульвар, 24к1

Округ:

Центральный административный округ

Близость метро:

Цветной бульвар

Транспортная доступность:

в пешей доступности

карта

Торговое окружение:

развитая инфраструктура

Общая площадь:

949.7  м2

Этаж:

1

Всего этажей:

4

Тип:

Многофункциональный,Особняк/здание,С отдельным входом,Торговая

Электрическая мощность:

80 кВт с возможностью увеличения

Высота потолков:

3 м

Парковка:

Огороженное парковочное пространство на 4–5 автомобилей

ФОРМА ВЛАДЕНИЯ:

по запросу

Цена за все:

460 000 000 RUB

Планировка

Виталий

Ваш брокер по работе с клиентами

Найдите лучшее место
для жизни, бизнеса, инвестиций

Оставьте свои контакты — с вами свяжется руководитель отдела для презентации нужного вам объекта

Похожие объекты