Id 159966

Левшинский пер, 6 стр 1. - 963,3 кв.м./ Продажа Здания с арендатором Клиника

адрес Москва, Большой Лёвшинский переулок, 6с1

Арендный бизнес
Особняк/здание

Окупаемость: 22.7 года

Доходность:4.41%

976 000 000 RUB | за все

(за 1 м2 — 1 013 499 RUB)

площадь 963.0 м2

QR код Qr код

Предлагается к продаже особняк с арендатором. Арендатор - ​Клиника результативной косметологии. Особняк представляет собой историческое одноэтажное здание с цокольным этажом и мезонином. Строение является частью усадьбы, построенной в начале XIX века.

Технические характеристики:
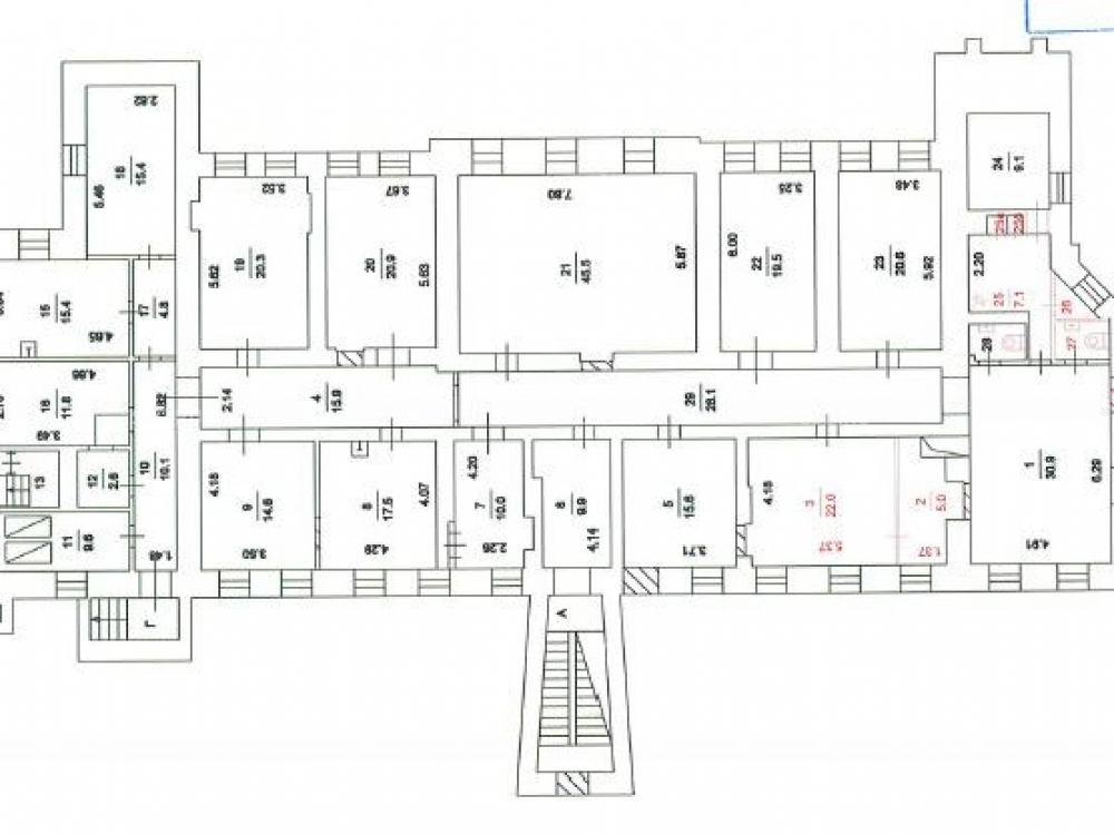
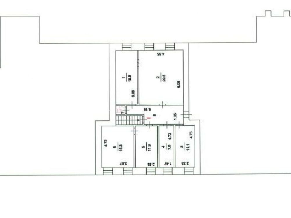
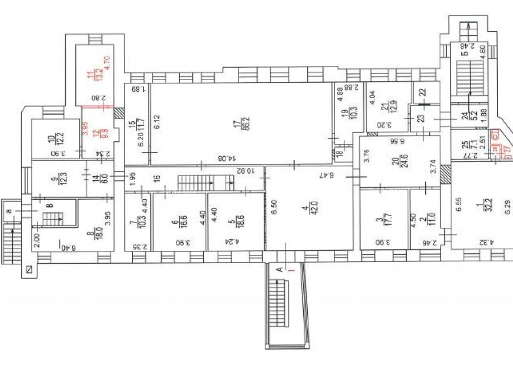
- Площадь - 963,3 кв.м.
- 3-х этажа.
- Планировка: кабинеты, open-space.
-Отделка: помещение готово для въезда
-. Вентиляция: приточно-вытяжная.
- Кондиционирование: центральное.
- Паркинг: наземный на 10-15 м.мест.


Коммерческое предложение:
Стоимость - 976 000 000 рублей;
Стоимость за 1 кв.м. - 1 013 184 рублей;
Арендатор - Клиника. МАП 3 600 000 рублей; ГАП - 43 200 000 рублей;
Индексация 8%. Договор на 3 года. / подписан январь 2026 года.
Форма сделки ДКП.

Технические характеристики

Тип здания: Арендный бизнес,Особняк/здание

Общая площадь: 963  м2

Этаж: 1

Всего этажей: 3

Электрическая мощность: -

Высота потолков: 3-4 м.

Парковка: да на улице

Коммерческие условия

Цена за все: 976 000 000 RUB

ФОРМА ВЛАДЕНИЯ: ООО НДС

Общий МАП: 3 600 000 RUB (данный МАП является минимальным, при оптимизации арендаторов арендный поток можно значительно увеличить)

Общий ГАП: 43 200 000 RUB

Окупаемость: 22.7 года

Доходность: 4.41%

карта

Расположение

Адрес: Москва, Большой Лёвшинский переулок, 6с1

Округ: Центральный административный округ

Близость метро: Кропоткинская

Транспортная доступность: -

Окружение

Торговое окружение: -

Адрес:

Москва, Большой Лёвшинский переулок, 6с1

Округ:

Центральный административный округ

Близость метро:

Кропоткинская

Транспортная доступность:

-

карта

Торговое окружение:

-

Общая площадь:

963  м2

Этаж:

1

Всего этажей:

3

Тип:

Арендный бизнес,Особняк/здание

Электрическая мощность:

-

Высота потолков:

3-4 м.

Парковка:

да на улице

ФОРМА ВЛАДЕНИЯ:

ООО НДС

Цена за все:

976 000 000 RUB

Общий МАП: 3 600 000

(данный МАП является минимальным, при оптимизации арендаторов арендный поток можно значительно увеличить)

Общий ГАП:

43 200 000

Окупаемость:

22.7 года

Доходность:

4.41%

Планировка

Инна Васильева

Ваш брокер по работе с клиентами

Найдите лучшее место
для жизни, бизнеса, инвестиций

Оставьте свои контакты — с вами свяжется руководитель отдела для презентации нужного вам объекта

Похожие объекты