Id 159647

Москва, ул. Золоторожский Вал, 11с1 (ЖК Rise корпус С1) - 123.1м2/ Продажа ПСН

адрес Москва, улица Золоторожский Вал, 11с1

Торговая

124 946 500 RUB | за все

(за 1 м2 — 1 015 000 RUB)

площадь 123.1 м2

QR код Qr код

Предлагается в продажу торговое помещение в ЖК Бизнес+ класса STONE Rise, корпус С1 на 1100 жителей по адресу: Москва, улица Золоторожский Вал, 11с1
Высокий пешеходный трафик достигается расположением вблизи бизнес-центра класса А (STONE Римская) на 6,5 тысяч сотрудников
ЖК расположен в окружении других крупных ЖК численность более 30 тысяч жителей (ЖК Символ и др).
До м. Римская, Площадь Ильича, МЦД , ТПУ «Серп и Молот» - 4 минуты пешком.
Торговое окружение:
На первых этажах комплекса будут расположены кафе, магазины, фитнес-студия и другие сервисные объекты.
Ввод: 2 кв 2028 г.

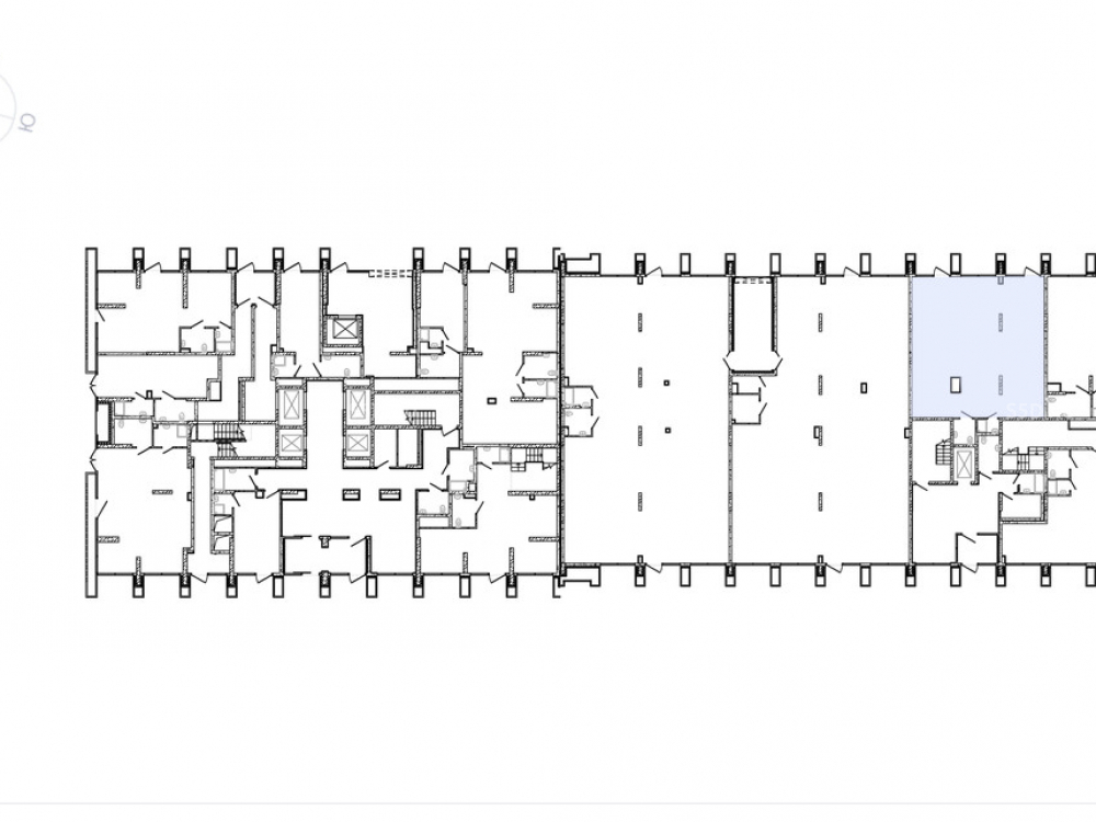
Технические характеристики: общая площадь: 123.1м2, на 1м этаже 28и этажного корпуса, 2 входа на 1ю линию, потолки 4.4 м., современная инженерия. Приточно-вытяжная система вентиляции. Центральная система кондиционирования. Электричество: 0.2 кВт на м2.

Коммерческие условия:
Стоимость продажи: 124 946 500 руб.
Стоимость м2: 1 015 000 руб.
Рассрочка 0% до окончания строительства
Условия рассрочки 30%ПВ, ежеквартальные платежи на эскроу счет.
Продажа по ДДУ от ЮЛ или по ДКПБВ (возврат НДС 22% сразу до окончания строительства)

Технические характеристики

Тип здания: Торговая

Общая площадь: 123.1  м2

Этаж: 1

Всего этажей: 28

Электрическая мощность: 0,2 кВт на м2

Высота потолков: 4.4м

Парковка: муниципальная+подземный паркинг

Коммерческие условия

Цена за все: 124 946 500 RUB

ФОРМА ВЛАДЕНИЯ: ДДУ

карта

Расположение

Адрес: Москва, улица Золоторожский Вал, 11с1

Округ: Центральный административный округ

Близость метро: Римская,Серп и Молот

Транспортная доступность: До м. Римская, Площадь Ильича, МЦД , ТПУ «Серп и Молот» - 4 минуты пешком.

Окружение

Торговое окружение: --

Адрес:

Москва, улица Золоторожский Вал, 11с1

Округ:

Центральный административный округ

Близость метро:

Римская,Серп и Молот

Транспортная доступность:

До м. Римская, Площадь Ильича, МЦД , ТПУ «Серп и Молот» - 4 минуты пешком.

карта

Торговое окружение:

--

Общая площадь:

123.1  м2

Этаж:

1

Всего этажей:

28

Тип:

Торговая

Электрическая мощность:

0,2 кВт на м2

Высота потолков:

4.4м

Парковка:

муниципальная+подземный паркинг

ФОРМА ВЛАДЕНИЯ:

ДДУ

Цена за все:

124 946 500 RUB

Планировка

Никифоров Андрей

Ваш брокер по работе с клиентами

Найдите лучшее место
для жизни, бизнеса, инвестиций

Оставьте свои контакты — с вами свяжется руководитель отдела для презентации нужного вам объекта

Похожие объекты