Id 159326

Люберцы, Рождественская улица, 10 / Продажа / Готовый арендный бизнес / 126 кв.м.

адрес Люберцы, Рождественская улица, 10

Арендный бизнес
С отдельным входом
Торговая
Новостройка

Окупаемость: 11.8 лет

Доходность:8.45%

45 000 000 RUB | за все

(за 1 м2 — 357 143 RUB)

площадь 126.0 м2

QR код Qr код

Предлагается в продажу торговое помещение с арендатором магазин "Около", расположенное по адресу: Люберцы, Рождественская улица, 10.

ЖК "1-й Лермонтовский" — это пять 25-ти этажных многосекционных корпусов с населением более 8000 человек. Развитая транспортная доступность, ж/д станция Люерцы-1 в шаговой доступности. В соседнем доме будет расположено большое МФЦ. 5 минут на автомобиле до метро Некрасовка. Помещение имеет прекрасную визуализацию, высокий рекламный и маркетинговый потенциал.

Технические характеристики:
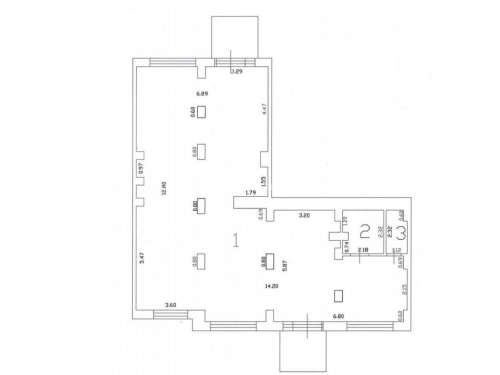
Общая площадь помещения: 126 м2. Открытая планировка, отдельный вход с фасада. Высота потолка 5.2 метра, витринные окна.
Электрическая мощность 35 кВт, можно увеличить.

Коммерческие условия:
Стоимость - 45 000 000 рублей.
Стоимость за кв.м: 357 143 рублей.

МАП: 317 000 рублей.
ГАП: 3 804 000 рублей.
Индексация: 5% безусловная.
Окупаемость: 11.9 лет.

Технические характеристики

Тип здания: Арендный бизнес,С отдельным входом,Торговая,Новостройка

Общая площадь: 126  м2

Этаж: 1

Всего этажей: 25

Электрическая мощность: 35 кВт, можно увеличить.

Высота потолков: 5.2 м.

Парковка: Есть.

Коммерческие условия

Цена за все: 45 000 000 RUB

ФОРМА ВЛАДЕНИЯ: Физ. лицо.

Общий МАП: 317 000 RUB (данный МАП является минимальным, при оптимизации арендаторов арендный поток можно значительно увеличить)

Общий ГАП: 3 804 000 RUB

Окупаемость: 11.8 лет

Доходность: 8.45%

карта

Расположение

Адрес: Люберцы, Рождественская улица, 10

Близость метро: Люберцы,Некрасовка

Транспортная доступность: 5 минут на автомобиле до метро Некрасовка.

Окружение

Торговое окружение: Большое.

Адрес:

Люберцы, Рождественская улица, 10

Округ:

Близость метро:

Люберцы,Некрасовка

Транспортная доступность:

5 минут на автомобиле до метро Некрасовка.

карта

Торговое окружение:

Большое.

Общая площадь:

126  м2

Этаж:

1

Всего этажей:

25

Тип:

Арендный бизнес,С отдельным входом,Торговая,Новостройка

Электрическая мощность:

35 кВт, можно увеличить.

Высота потолков:

5.2 м.

Парковка:

Есть.

ФОРМА ВЛАДЕНИЯ:

Физ. лицо.

Цена за все:

45 000 000 RUB

Общий МАП: 317 000

(данный МАП является минимальным, при оптимизации арендаторов арендный поток можно значительно увеличить)

Общий ГАП:

3 804 000

Окупаемость:

11.8 лет

Доходность:

8.45%

Планировка

Павел

Ваш брокер по работе с клиентами

Найдите лучшее место
для жизни, бизнеса, инвестиций

Оставьте свои контакты — с вами свяжется руководитель отдела для презентации нужного вам объекта

Похожие объекты