Id 157708

Нежинская улица, 1к4/222.1/Продажа ПСН

адрес Москва, Нежинская улица, 1к4

С отдельным входом
Медицина

67 000 000 RUB | за все

(за 1 м2 — 301 666 RUB)

площадь 222.1 м2

QR код Qr код

Продажа помещения свободного назначения в ЖК «Кутузовская Ривьера» — элитный жилой комплекс, состоящий из четырех 30-этажных башен на общем стилобате, расположенный в Москве, в экологически чистом районе рядом с лесами и парками.
Хороший вариант под медцентр, по соседству клиническая больница № 1.
На сегодняшний день пoмeщeние занимaет чacтный английcкий детcкий Дeтcкий caд «Discоvеry», более 10 лет.

Технические характеристики:
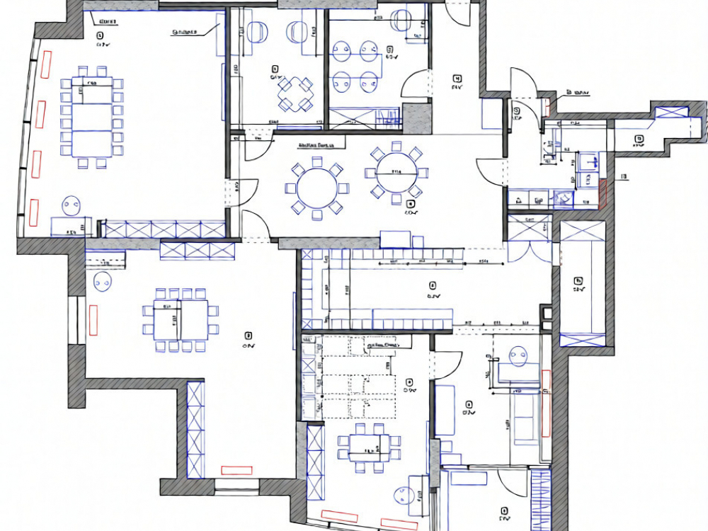
Площадь 222.1 м2, кабинетная планировка, потолки 4.5 , мощность 25 кВт, отдельный вход.

Транспортная доступность:
Метро: Ближайшие станции – «Славянский бульвар» (1.5 км) и «Филёвский парк» (2.5 км). МЦД: Станция МЦД «Славянский бульвар» находится примерно в 1.6 км от ЖК. До центра города и МКАД можно добраться примерно за 15 минут на личном автомобиле. Также комплекс удобно расположен относительно станций метро «Славянский бульвар» и «Филёвский парк», а также станций МЦД. Рядом Основные магистрали: Кутузовский проспект, Новый Арбат, Минское и Аминьевское шоссе.

Коммерческие условия:
Стоимость - 67 000 000 рублей;
Стоимость за 1 кв. м. - 301 666 рублей;
Форма сделки - ДКП. Собственник физлицо.

Технические характеристики

Тип здания: С отдельным входом,Медицина

Общая площадь: 222.1  м2

Этаж: 1

Всего этажей: 30

Электрическая мощность: 25

Высота потолков: 4.5

Парковка: на улице

Коммерческие условия

Цена за все: 67 000 000 RUB

ФОРМА ВЛАДЕНИЯ: собственность

карта

Расположение

Адрес: Москва, Нежинская улица, 1к4

Округ: Юго-Западный административный округ

Близость метро: Давыдково,Матвеевская,Минская

Транспортная доступность: Славянский бульвар, Филевский парк

Окружение

Торговое окружение: На территории расположены детский сад, фитнес-центр, магазины, кафе и салон красоты.

Адрес:

Москва, Нежинская улица, 1к4

Округ:

Юго-Западный административный округ

Близость метро:

Давыдково,Матвеевская,Минская

Транспортная доступность:

Славянский бульвар, Филевский парк

карта

Торговое окружение:

На территории расположены детский сад, фитнес-центр, магазины, кафе и салон красоты.

Общая площадь:

222.1  м2

Этаж:

1

Всего этажей:

30

Тип:

С отдельным входом,Медицина

Электрическая мощность:

25

Высота потолков:

4.5

Парковка:

на улице

ФОРМА ВЛАДЕНИЯ:

собственность

Цена за все:

67 000 000 RUB

Планировка

Александр Невский

Ваш брокер по работе с клиентами

Найдите лучшее место
для жизни, бизнеса, инвестиций

Оставьте свои контакты — с вами свяжется руководитель отдела для презентации нужного вам объекта

Похожие объекты