Id 159412

ЖК Shagal ул. Ильи Чашника / 79 кв.м /Продажа ПСН

адрес Москва, 3-я очередь, к2.1

С отдельным входом
Торговая
Офис
Общепит

60 464 220 RUB | за все

(за 1 м2 — 765 370 RUB)

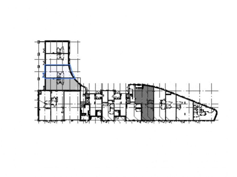
площадь 79.0 м2

QR код Qr код

Продажа помещения свободного назначения в ЖК бизнес класса Shagal по адресу: г.Москва, ул Ильи Чашник корпус 1 Этап 2. Помещение площадью 79 м2. Проектом предусмотрено благоустройство набережной и создание 4-километровой парковой зоны и первого в столице водного парка, что дает дополнительный трафик посетителей. Комплекс расположен вдоль Москвы-реки и набережной Марка Шагала. Прямой выезд на ТТК ,ближайшие станции метро — «ЗИЛ» и «Технопарк» 20 минут пешком.
Сдача 2 кв. 2028
Технические характеристики:
- Помещение площадью 79 кв.м на 1-м этаже 5-этажного жилого дома,
- Отдельный вход,
- высота потолков - 4.5 м
- электрическая мощность - 15 кВ.
- Современные инженерные системы.
- Помещение в бетоне.

Транспортная доступность:
- «ЗИЛ» и «Технопарк» 20 минут пешком

Коммерческие условия:
Стоимость помещения- 60464220 рублей
Стоимость 1 м2- 765 369 рублей

Рассрочка при ПВ 30% с ежемесячными платежами по 200 000 р.

Технические характеристики

Тип здания: С отдельным входом,Торговая,Офис,Общепит

Общая площадь: 79  м2

Этаж: 1

Всего этажей: 5

Электрическая мощность: 15

Высота потолков: 4.5

Парковка: на улице

Коммерческие условия

Цена за все: 60 464 220 RUB

ФОРМА ВЛАДЕНИЯ: ДДУ

карта

Расположение

Адрес: Москва, 3-я очередь, к2.1

Округ: Юго-Восточный административный округ

Близость метро: ЗИЛ,Технопарк

Транспортная доступность: «ЗИЛ» и «Технопарк» 20 мин.

Окружение

Торговое окружение: -

Адрес:

Москва, 3-я очередь, к2.1

Округ:

Юго-Восточный административный округ

Близость метро:

ЗИЛ,Технопарк

Транспортная доступность:

«ЗИЛ» и «Технопарк» 20 мин.

карта

Торговое окружение:

-

Общая площадь:

79  м2

Этаж:

1

Всего этажей:

5

Тип:

С отдельным входом,Торговая,Офис,Общепит

Электрическая мощность:

15

Высота потолков:

4.5

Парковка:

на улице

ФОРМА ВЛАДЕНИЯ:

ДДУ

Цена за все:

60 464 220 RUB

Планировка

Олеся Шайхисламова

Ваш брокер по работе с клиентами

Найдите лучшее место
для жизни, бизнеса, инвестиций

Оставьте свои контакты — с вами свяжется руководитель отдела для презентации нужного вам объекта

Похожие объекты