Id 147117

Москва, Дом "Лаврушинский" / 122,6 м2 / Продажа помещения под автомойку с НДС

адрес Москва, Пыжевский переулок дом 5 стр 1

Жилой комплекс (мфк)
Новостройка
Автобизнес

67 730 000 RUB | за все

(за 1 м2 — 552 447 RUB)

площадь 122.6 м2

QR код Qr код

Помещение под автомойку в бескомпромиссном Доме "Лаврушинский" в сердце Замоскворечья, в историческом центре рядом с Третьяковкой в 1 км от Кремля по адресу Пыжевский переулок дом 5 стр 1. Дом на 153 квартиры, включая пентхаусы и виллы.

Технические условия:
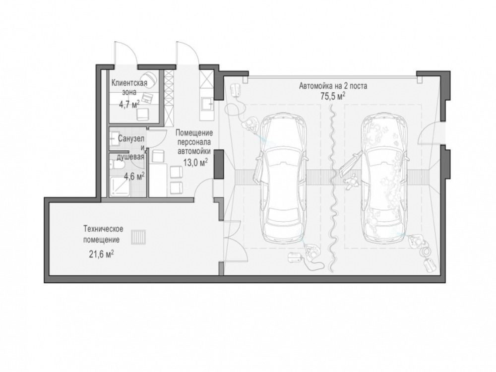
помещение площадью 122,6 м2 на -2-м этаже 8-ми этажного жилого дома на подземном паркинге на 279 машиномест, 2 моечных поста, помещение персонала, технические помещения. Электричество 32,2 кВт, высота потолков 3,8 м.

Коммерческие условия:
стоимость объекта - 67 730 000 рублей
стоимость объекта за м.кв. - 552 447 рублей

Технические характеристики

Тип здания: Жилой комплекс (мфк),Новостройка,Автобизнес

Общая площадь: 122.6  м2

Этаж: -2

Всего этажей: 12

Электрическая мощность: 32,2

Высота потолков: 3,8

Парковка: наземная и подземная

Коммерческие условия

Цена за все: 67 730 000 RUB

ФОРМА ВЛАДЕНИЯ: в собственности у юр лица

карта

Расположение

Адрес: Москва, Пыжевский переулок дом 5 стр 1

Округ: Центральный административный округ

Близость метро: Третьяковская

Транспортная доступность: в 1 км от Кремля

Окружение

Торговое окружение: ТЦ, рестораны, кафе, музеи, клиники

Адрес:

Москва, Пыжевский переулок дом 5 стр 1

Округ:

Центральный административный округ

Близость метро:

Третьяковская

Транспортная доступность:

в 1 км от Кремля

карта

Торговое окружение:

ТЦ, рестораны, кафе, музеи, клиники

Общая площадь:

122.6  м2

Этаж:

-2

Всего этажей:

12

Тип:

Жилой комплекс (мфк),Новостройка,Автобизнес

Электрическая мощность:

32,2

Высота потолков:

3,8

Парковка:

наземная и подземная

ФОРМА ВЛАДЕНИЯ:

в собственности у юр лица

Цена за все:

67 730 000 RUB

Планировка

Субботина Анна

Ваш брокер по работе с клиентами

Найдите лучшее место
для жизни, бизнеса, инвестиций

Оставьте свои контакты — с вами свяжется руководитель отдела для презентации нужного вам объекта

Похожие объекты