Id 153746

Москва, пос. Сосенское ЖК Скандинавия / 262,4 кв.м. / Продажа помещения свободного назначения / Общепит.

адрес проспект Куприна, 3к5

С отдельным входом
Торговая
Новостройка

55 340 160 RUB | за все

(за 1 м2 — 210 900 RUB)

площадь 262.4 м2

QR код Qr код

Продажа помещения под общепит в ЖК "Скандинавия".
Жилой Комплекс «Скандинавия» в Новой Москве - это 79 корпусов от 7 до 17 этажей.
Первые живые площади сдали в 2020 году, а последние строят рядом со станцией метро «Потапово». Население порядка 70 тыс. жителей.
На юге комплекса ГК «А101» создаёт район бизнес-класса – со своей инфраструктурой, пешеходными пространствами и точками притяжения.

Транспортная доступность:
5 минут пешим ходом до станции метро «Потапово»
2 км. – станция метро «Коммунарка»
2,5 км. – станция метро «Бачуринская»
1,7 км. – станция метро «Бунинская аллея»
6,4 км. до МКАД.
Удобный выезд на трассу СБВ (Солнцево – Бутово – Варшавское шоссе).

Технические характеристики:
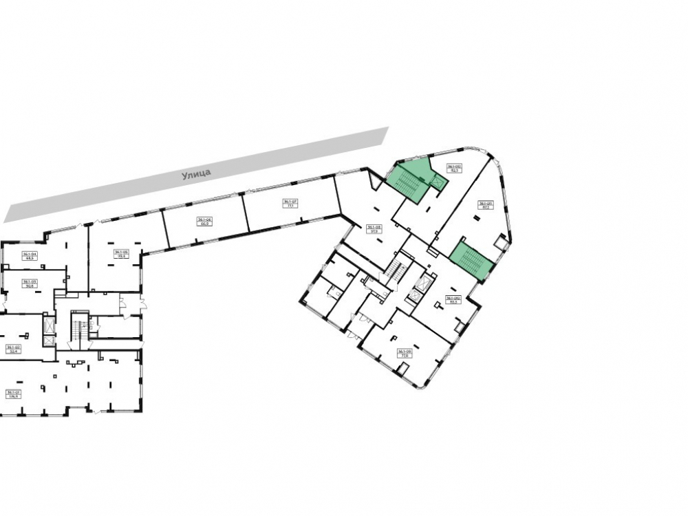
Площадь помещения 262,4 м.кв. Два отдельных входных группы.. Помещение расположено на -1-м этаже 17-ти этажного жилого дома, находящегося при входе/ въезде в жилой квартал. Высота потолков 3.83 м. Мощность электросети 78.39 кВт. Центральные коммуникации. Технологические решения для общественного питания - есть. Сигнализация и дымоудаление. Нагрузка на пол 600 кг/м2. Парковка у фасада.

Дом сдан.

Коммерческие условия:
Стоимость помещения - 55 340 160 рублей.
Стоимость 1 кв.м. - 210 900 рублей.

Форма сделки - ДКП.

Технические характеристики

Тип здания: С отдельным входом,Торговая,Новостройка

Общая площадь: 262.4  м2

Этаж: -1

Всего этажей: 17

Электрическая мощность: 78.39 кВт

Высота потолков: 3.83 м

Парковка: Подземная

Коммерческие условия

Цена за все: 55 340 160 RUB

ФОРМА ВЛАДЕНИЯ: .

карта

Расположение

Адрес: проспект Куприна, 3к5

Близость метро: Коммунарка,Потапово

Транспортная доступность: 5 минут пешком до станции метро «Потапово».Удобный выезд на трассу СБВ (Солнцево – Бутово – Варшавское шоссе)

Окружение

Торговое окружение: По соседству Супермаркет Магнит, напротив через дорогу Супермаркет Пятерочка.

Адрес:

проспект Куприна, 3к5

Округ:

Близость метро:

Коммунарка,Потапово

Транспортная доступность:

5 минут пешком до станции метро «Потапово».Удобный выезд на трассу СБВ (Солнцево – Бутово – Варшавское шоссе)

карта

Торговое окружение:

По соседству Супермаркет Магнит, напротив через дорогу Супермаркет Пятерочка.

Общая площадь:

262.4  м2

Этаж:

-1

Всего этажей:

17

Тип:

С отдельным входом,Торговая,Новостройка

Электрическая мощность:

78.39 кВт

Высота потолков:

3.83 м

Парковка:

Подземная

ФОРМА ВЛАДЕНИЯ:

.

Цена за все:

55 340 160 RUB

Планировка

Шаклеина Юлия

Ваш брокер по работе с клиентами

Найдите лучшее место
для жизни, бизнеса, инвестиций

Оставьте свои контакты — с вами свяжется руководитель отдела для презентации нужного вам объекта

Похожие объекты