Id 151153

Москва, ЮВАО, ул. Крузенштерна, д. 4/Продажа ПСН

адрес Москва, ЮВАО, ул. Крузенштерна, д. 4

С отдельным входом
Торговая
Новостройка

65 000 000 RUB | за все

(за 1 м2 — 631 681 RUB)

площадь 102.9 м2

QR код Qr код

Продажа помещения свободного назначения в ЖК Бизнес-класса "Символ", по адресу: Москва, ул. Крузенштерна, д. 4, площадью 102.9 м2. ЮВАО, район Лефортово. Объект расположен в первой линии на въезде в жилой микрорайон в 10 минутах ходьбы от метро Площадь Ильича. Жилой квартал Символ - новый градообразующий квартал рассчитанный на 19 000 жителей.

Технические характеристики:
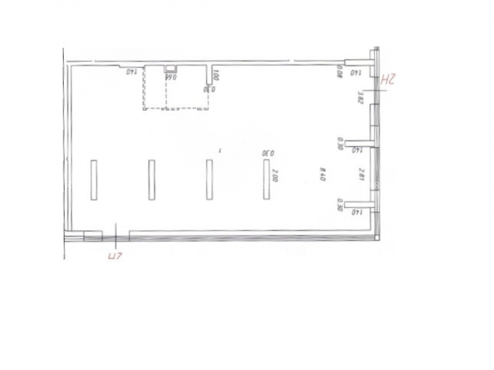
Первый этаж 22-ух этажного жилого дома, площадью 102.9 м2. Угловое помещение. Два отдельных входа. Зальная планировка, витринные окна, высота потолков: 4,75 м. Выделенная мощность: 24 кВт.

Коммерческие условия:
Стоимость объекта: 65 000 000 рублей.
Стоимость объекта за м2: 634 146 рублей

Технические характеристики

Тип здания: С отдельным входом,Торговая,Новостройка

Общая площадь: 102.9  м2

Этаж: 1

Всего этажей: 22

Электрическая мощность: 24

Высота потолков: 4,75 м

Парковка: стихийная

Коммерческие условия

Цена за все: 65 000 000 RUB

ФОРМА ВЛАДЕНИЯ: Частная собственность

карта

Расположение

Адрес: Москва, ЮВАО, ул. Крузенштерна, д. 4

Округ: Юго-Восточный административный округ

Близость метро: Площадь Ильича,Римская,Серп и Молот

Транспортная доступность: Есть

Окружение

Торговое окружение: Есть

Адрес:

Москва, ЮВАО, ул. Крузенштерна, д. 4

Округ:

Юго-Восточный административный округ

Близость метро:

Площадь Ильича,Римская,Серп и Молот

Транспортная доступность:

Есть

карта

Торговое окружение:

Есть

Общая площадь:

102.9  м2

Этаж:

1

Всего этажей:

22

Тип:

С отдельным входом,Торговая,Новостройка

Электрическая мощность:

24

Высота потолков:

4,75 м

Парковка:

стихийная

ФОРМА ВЛАДЕНИЯ:

Частная собственность

Цена за все:

65 000 000 RUB

Планировка

Прилепа Андрей

Ваш брокер по работе с клиентами

Найдите лучшее место
для жизни, бизнеса, инвестиций

Оставьте свои контакты — с вами свяжется руководитель отдела для презентации нужного вам объекта

Похожие объекты