Id 149666

Бакунинская ул., 69с1 - 569 кв.м - Продажа / Помещение свободного назначения

адрес Москва, Бакунинская ул., 69с1

Многофункциональный
С отдельным входом
Торговая
Общепит

250 000 000 RUB | за все

(за 1 м2 — 439 367 RUB)

площадь 569.0 м2

QR код Qr код

Продажа пoмещeние свобoдного назначения по адресу: Москва, ул. Бакунинская 69, ЦАО, район Басманный, Ближайшая станция метро Бауманская, Электрозаводская - 10 минут пешком (помещение находится посередине между двумя станциями метро). Офисный микрорайон, интенсивный пешеходный и автомобильный трафик, рядом находится остановка общественного транспорта.
Торговое окружение: Пятёрочка, Магнит,, Магнит косметик, Аптека, ОЗОН, Wildberries, Химчистка, клуб единоборств, лофты под мероприятия, ресторан По чесноку.

Технические условия:
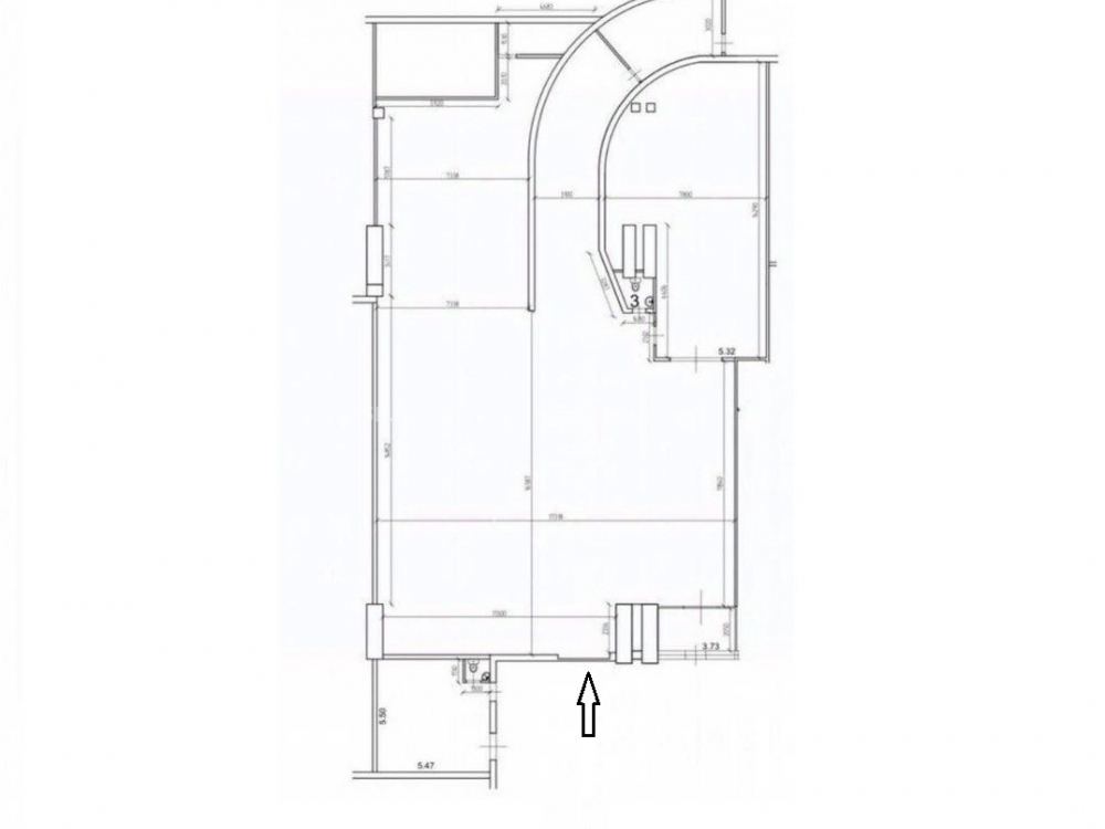
Общая площадь – 569 кв.м, 2 вхoда, 1 этаж, первая линия, отдельный вход, витринное остекление, открытая планировка, все коммуникации центральные, вентиляция, потолки – 4,7м.
Помещение с отделкой, Выделенная мощность электроэнергии 57 кВт, возможность круглосуточного доступа. Парковочное пространство перед входом для разгрузо-погрузочных работ с возможностью въезда и парковки крупногабаритного транспорта. Парковка перед входом.
В настоящее время в помещении арендаторы: водно-моторный центр, Милти, Табак на КДА.

Коммерческие условия:
Стоимость объекта: 250 000 000 руб.
Стоимость 1м2: 439 367 руб.
Собственник: физлицо
Форма продажи: ДКПН

Технические характеристики

Тип здания: Многофункциональный,С отдельным входом,Торговая,Общепит

Общая площадь: 569  м2

Этаж: 1

Всего этажей: 9

Электрическая мощность: 57 кВт

Высота потолков: 4.7м

Парковка: городская

Коммерческие условия

Цена за все: 250 000 000 RUB

ФОРМА ВЛАДЕНИЯ: ИП

карта

Расположение

Адрес: Москва, Бакунинская ул., 69с1

Округ: Центральный административный округ

Близость метро: Бауманская

Транспортная доступность: 10 мин. пешком от м.Бауманская

Окружение

Торговое окружение: Пятёрочка, Магнит,, Магнит косметик, Аптека, ОЗОН, Wildberries, Химчистка, клуб единоборств, лофты под мероприятия, ресторан По чесноку.

Адрес:

Москва, Бакунинская ул., 69с1

Округ:

Центральный административный округ

Близость метро:

Бауманская

Транспортная доступность:

10 мин. пешком от м.Бауманская

карта

Торговое окружение:

Пятёрочка, Магнит,, Магнит косметик, Аптека, ОЗОН, Wildberries, Химчистка, клуб единоборств, лофты под мероприятия, ресторан По чесноку.

Общая площадь:

569  м2

Этаж:

1

Всего этажей:

9

Тип:

Многофункциональный,С отдельным входом,Торговая,Общепит

Электрическая мощность:

57 кВт

Высота потолков:

4.7м

Парковка:

городская

ФОРМА ВЛАДЕНИЯ:

ИП

Цена за все:

250 000 000 RUB

Планировка

Олег Байкин

Ваш брокер по работе с клиентами

Найдите лучшее место
для жизни, бизнеса, инвестиций

Оставьте свои контакты — с вами свяжется руководитель отдела для презентации нужного вам объекта

Похожие объекты