Id 148115

Солнечногорский р-н, Сургутский проезд, 1к3 (ЖК Первый Зеленоградский) - 996,4 м2 / Продажа ПСН

адрес посёлок городского типа Голубое, Сургутский проезд, 1к3

Многофункциональный
С отдельным входом
Торговая
Медицина

60 780 400 RUB | за все

(за 1 м2 — 61 000 RUB)

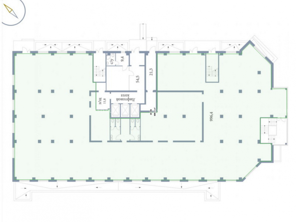
площадь 996.4 м2

QR код Qr код

Продаётся нежилое помещение свободного назначения в сданном корпусе ЖК "Первый Зеленоградский" по адресу: Солнечногорский ГО, д.Голубое, Сургутский проезд, 1к3 площадью 996,4 м2. Объект расположен в окружении плотного жилого массива. Крупнейший жилой комплекс «Первый Зеленоградский» рассчитан на 18000 человек, располагается в 2-х км от Зеленограда. Это новый современный ЖК, обжитый микрорайон с высокой плотностью застройки, состоящий из 3-х очередей строительства на 390 000 кв.м. Предусмотрены детские сады и школы. ЖК заселен на 100%, все корпуса сданы, Удобная транспортная связь с центром города и доступ к развитой инфраструктуре, в 15 минутах езды от станции "Крюково".

Торговое окружение: Перекресток, Фитнес, Стоматология, Автомойка и др.

Технические параметры:
1 этаж 25-ти этажного сданного жилого дома, общей площадью 996,4 м2. Кабинетная планировка. Панельный дом. Высота потолков 3,3 метров. Выделенная электрическая мощность по запросу. Городские коммуникации.

Коммерческие условия:
Стоимость объекта: 60 780 400 рублей.
Стоимость за м2: 61 000 рублей

Технические характеристики

Тип здания: Многофункциональный,С отдельным входом,Торговая,Медицина

Общая площадь: 996.4  м2

Этаж: 1

Всего этажей: 25

Электрическая мощность: -

Высота потолков: 3.3 м

Парковка: перед фасадом

Коммерческие условия

Цена за все: 60 780 400 RUB

ФОРМА ВЛАДЕНИЯ: -

карта

Расположение

Адрес: посёлок городского типа Голубое, Сургутский проезд, 1к3

Округ: Северо-Восточный административный округ

Близость метро: Ховрино

Транспортная доступность: 15 минут езды от станции

Окружение

Торговое окружение: -

Адрес:

посёлок городского типа Голубое, Сургутский проезд, 1к3

Округ:

Северо-Восточный административный округ

Близость метро:

Ховрино

Транспортная доступность:

15 минут езды от станции

карта

Торговое окружение:

-

Общая площадь:

996.4  м2

Этаж:

1

Всего этажей:

25

Тип:

Многофункциональный,С отдельным входом,Торговая,Медицина

Электрическая мощность:

-

Высота потолков:

3.3 м

Парковка:

перед фасадом

ФОРМА ВЛАДЕНИЯ:

-

Цена за все:

60 780 400 RUB

Планировка

Гервас Ксения

Ваш брокер по работе с клиентами

Найдите лучшее место
для жизни, бизнеса, инвестиций

Оставьте свои контакты — с вами свяжется руководитель отдела для презентации нужного вам объекта

Похожие объекты