Id 147207

Мытищи, МО, жилой комплекс Яуза Парк 1 - 81.7 / Продажа помещения свободного назначения

адрес жилой комплекс Яуза Парк, 1

С отдельным входом
Торговая
Общепит
Жилой комплекс (мфк)
Новостройка

39 600 000 RUB | за все

(за 1 м2 — 484 700 RUB)

площадь 81.7 м2

QR код Qr код

Предлагается в продажу нежилое помещение с арендатором (Вайлдберриз) по адресу: Мытищи, МО, жилой комплекс Яуза Парк, площадью 81.7 м2, помещение находится на 1 этаже 25-ти этажного дома. Первый дом от ж/д станции "Мытищи" 5 мин. пешком.

Ввод в эксплуатацию 3-й квартал 2025г.
Помещение расположено на пешеходном трафике. Рядом станция ЖД Мытищи.
В ЖК 20 домов, более 8000 квартир.
Квартиры с готовой отделкой (быстрое заселение).

Технические характеристики:
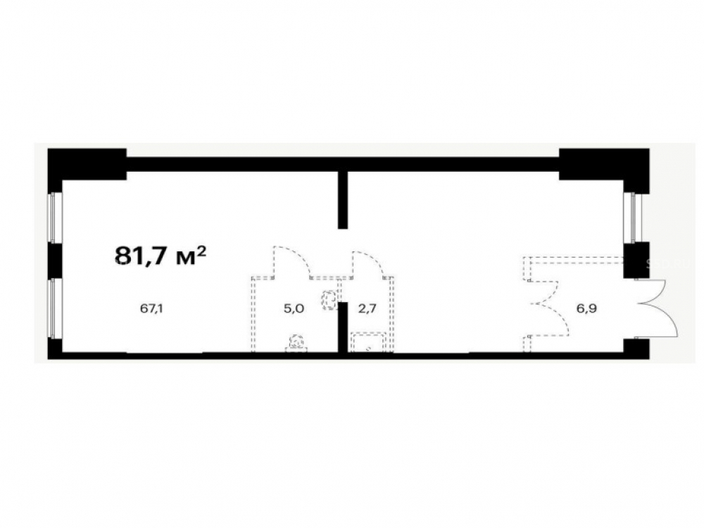
Помещение площадью 81.7 кв.м. открытая планировка • потолки 4,7 м. • электроэнергия 17 кВт • 1 отдельный вход с видом на первую линию (первый дом от ж/д станции Мытищи).

Коммерческие условия:
• Арендатор ПВЗ Wildberries.
• МАП: 300 000 рублей.
• ГАП: 3 600 000 рублей.
• стоимость объекта 39 600 000 рублей.
• стоимость объекта за м.кв. 484 700 рублей.
• продажа по уступка прав ДДУ.

Технические характеристики

Тип здания: С отдельным входом,Торговая,Общепит,Жилой комплекс (мфк),Новостройка

Общая площадь: 81.7  м2

Этаж: 1

Всего этажей: 25

Электрическая мощность: 17 кВт

Высота потолков: 4,7 м.

Парковка: есть

Коммерческие условия

Цена за все: 39 600 000 RUB

ФОРМА ВЛАДЕНИЯ: -

карта

Расположение

Адрес: жилой комплекс Яуза Парк, 1

Округ: Северо-Восточный административный округ

Близость метро: Медведково

Транспортная доступность: Первый дом от ж/д станции Мытищи 5 мин. пешком.

Окружение

Торговое окружение: развитое

Адрес:

жилой комплекс Яуза Парк, 1

Округ:

Северо-Восточный административный округ

Близость метро:

Медведково

Транспортная доступность:

Первый дом от ж/д станции Мытищи 5 мин. пешком.

карта

Торговое окружение:

развитое

Общая площадь:

81.7  м2

Этаж:

1

Всего этажей:

25

Тип:

С отдельным входом,Торговая,Общепит,Жилой комплекс (мфк),Новостройка

Электрическая мощность:

17 кВт

Высота потолков:

4,7 м.

Парковка:

есть

ФОРМА ВЛАДЕНИЯ:

-

Цена за все:

39 600 000 RUB

Планировка

Артур

Ваш брокер по работе с клиентами

Найдите лучшее место
для жизни, бизнеса, инвестиций

Оставьте свои контакты — с вами свяжется руководитель отдела для презентации нужного вам объекта

Похожие объекты