Id 140027

Производственная улица 4а - 105,4 кв. м. / Продажа помещения свободного назначения

адрес Москва, Производственная улица 4а

С отдельным входом
Торговая
Общепит

53 675 898 RUB | за все

(за 1 м2 — 509 259 RUB)

площадь 105.4 м2

QR код Qr код

Продажа помещения свободного назначения. ЗАО, р-н Солнцево, Производственная улица, д. 4А.
ЖК от метро "Солнцево" в прямой видимости - расположено в 200 метрах от выхода из метро.
Первая линия домов. Высокая проходимость, единственный проход к дому с самой большой автостоянки перед домом.

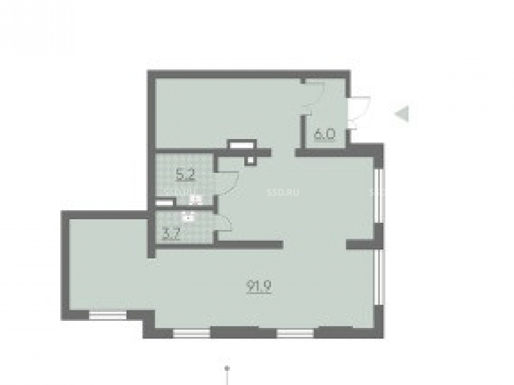
Технические характеристики: Общая площадь - 105,4 кв.м 1-й этаж 19-этажного жилого дома. Отдельный вход. Высота потолков 5 м. Центральные коммуникации. Стеклянные витрины в пол. Состояние- требуется ремонт.

Помещение подходит под: магазин, салон красоты, любое представительство в этом районе Солнцево, ресторан, пекарню, банк, медицинские услуги, аптеку, минимаркет, алкомаркет, зоомагазин, магазин детских товаров, массажный салон.

Коммерческие условия:
Продажа объекта - 53 675 898 рублей
Стоимость за кв. м.в - 509 259 рублей
Включая НДС

Технические характеристики

Тип здания: С отдельным входом,Торговая,Общепит

Общая площадь: 105.4  м2

Этаж: 1

Всего этажей: 19

Электрическая мощность: 0,2 Вт на кв.м

Высота потолков: 5 м

Парковка: стихийная

Коммерческие условия

Цена за все: 53 675 898 RUB

ФОРМА ВЛАДЕНИЯ: -

карта

Расположение

Адрес: Москва, Производственная улица 4а

Близость метро: Семёновская

Транспортная доступность: В прямой видимости метро Солнцево

Окружение

Торговое окружение: В окружении крупный сложившийся жилой массив.

Адрес:

Москва, Производственная улица 4а

Округ:

Близость метро:

Семёновская

Транспортная доступность:

В прямой видимости метро Солнцево

карта

Торговое окружение:

В окружении крупный сложившийся жилой массив.

Общая площадь:

105.4  м2

Этаж:

1

Всего этажей:

19

Тип:

С отдельным входом,Торговая,Общепит

Электрическая мощность:

0,2 Вт на кв.м

Высота потолков:

5 м

Парковка:

стихийная

ФОРМА ВЛАДЕНИЯ:

-

Цена за все:

53 675 898 RUB

Планировка

Ирина Головина

Ваш брокер по работе с клиентами

Найдите лучшее место
для жизни, бизнеса, инвестиций

Оставьте свои контакты — с вами свяжется руководитель отдела для презентации нужного вам объекта

Похожие объекты