Id 915

Москва, ВАО, Сиреневый бульвар, 63 к.1 /1035 м2/ Продажа Арендного бизнеса ''Дикси'',

адрес Москва, ВАО, Сиреневый бульвар, 63

Арендный бизнес
С отдельным входом
Торговая

Окупаемость: 8.2 лет

Доходность:12.24%

280 000 000 RUB | за все

(за 1 м2 — 270 531 RUB)

площадь 1 035.0 м2

QR код Qr код

Предлагается к продаже торговое помещение с арендаторами: ''Дикси'', "СберАптека", по адресу: Москва, ВАО, Сиреневый бульвар, 63, к. 1. Первая линия.

Технические условия:
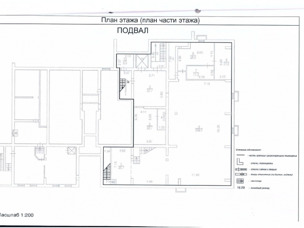
Общая площадь: 1035 кв.м, (1-й этаж - 751 кв.м, цоколь - 284 кв.м.) в 14-ти этажном жилом доме. Высота потолков - 3,2 м. Выделенная электрическая мощность - 100 кВт. Витринное остекление, открытая планировка, с отдельным входом, пандус, зона разгрузки/погрузки, паркинг перед фасадом.

Коммерческие условия:
Стоимость продажи: 280 000 000 рублей.
Арендаторы: супермаркет "Дикси" и Сбераптека. Договор аренды c 2008 до 2030 года.
МАП: 2 884 000 рублей.
ГАП: 34 608 000 рублей.
Окупаемость: 8.3 года.
Доходность: 11.6 %.

Технические характеристики

Тип здания: Арендный бизнес,С отдельным входом,Торговая

Общая площадь: 1035  м2

Этаж: 1

Всего этажей: 14

Электрическая мощность: 100

Высота потолков: 3.2

Парковка: 1

Коммерческие условия

Цена за все: 280 000 000 RUB

ФОРМА ВЛАДЕНИЯ: 1

Общий МАП: 2 804 000 RUB (данный МАП является минимальным, при оптимизации арендаторов арендный поток можно значительно увеличить)

Общий ГАП: 34 608 000 RUB

Окупаемость: 8.2 лет

Доходность: 12.24%

карта

Расположение

Адрес: Москва, ВАО, Сиреневый бульвар, 63

Округ: Восточный административный округ

Близость метро: Первомайская,Щёлковская

Транспортная доступность: 1

Окружение

Торговое окружение: 1

Адрес:

Москва, ВАО, Сиреневый бульвар, 63

Округ:

Восточный административный округ

Близость метро:

Первомайская,Щёлковская

Транспортная доступность:

1

карта

Торговое окружение:

1

Общая площадь:

1035  м2

Этаж:

1

Всего этажей:

14

Тип:

Арендный бизнес,С отдельным входом,Торговая

Электрическая мощность:

100

Высота потолков:

3.2

Парковка:

1

ФОРМА ВЛАДЕНИЯ:

1

Цена за все:

280 000 000 RUB

Общий МАП: 2 804 000

(данный МАП является минимальным, при оптимизации арендаторов арендный поток можно значительно увеличить)

Общий ГАП:

34 608 000

Окупаемость:

8.2 лет

Доходность:

12.24%

Планировка

Чернов Андрей

Ваш брокер по работе с клиентами

Найдите лучшее место
для жизни, бизнеса, инвестиций

Оставьте свои контакты — с вами свяжется руководитель отдела для презентации нужного вам объекта

Похожие объекты