Id 20488

Генерала Тюленева, 4Ас1 - 1 594,4 кв.м / Продажа ОСЗ с сетевыми арендаторами - готовый арендный бизнес

адрес Москва, улица Генерала Тюленева, 4Ас1

Арендный бизнес
Особняк/здание
Торговая
Редевелопмент

Окупаемость: 10 лет

Доходность:10.00%

318 800 000 RUB | за все

(за 1 м2 — 199 950 RUB)

площадь 1 594.4 м2

QR код Qr код

Продажа двухэтажного здания с прилегающей территорией в ЮЗАО г. Москвы по адресу: ул. Генерала Тюленева, 4Ас1.
Готовый арендный бизнес с набором сетевых арендаторов. В настоящее время занято 95% площадей. Отличная транспортная доступность: всего 140 от новой станции метро «Генерала Тюленева». До метро Теплый Стан 6 минут на транспорте. Поблизости пролегают магистрали: МКАД, Ленинский проспект и Профсоюзная улица. Рядом с объектом находятся: супермаркет "Лента", аптека "Планета здоровья", хозяйственный магазин. Район густонаселенный, со сложившейся инфраструктурой.

Технические характеристики:
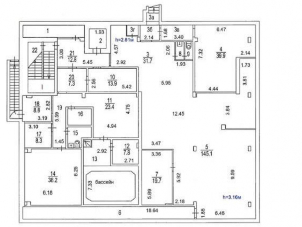
2-х этажное административное здание с подвалом, 1979 года постройки. Конструктив - сетка колонн (панели, перекрытия - ж/б). Есть открытые веранды на 1-ом и 2-ом этажах. Зона погрузки/разгрузки. Удобный въезд/выезд для большегрузного транспорта. Собственная парковка на прилегающей территории. Общая площадь: 1594,4 кв.м. (1-й этаж - 570,3 кв.м, 2-й этаж - 499,6 кв.м, подвал - 474,4 кв.м, надстройка - 33,6 кв.м.)
Веранда: 200 кв.м на 1 этаже. Патио: 170 кв.м на 2 этаже. Входы: 9 шт с разных сторон здания. Высота потолков от 2,8 до 5,1 м.
Все центральные коммуникации, прямые договоры с ресурсоснабжающими организациями.

Арендаторы:
Студия красоты, детский центр офисы, "ВкусВилл", "Буханка", OZON, Яндекс Лавка, Wildberries.
Общий МАП: 2 670 000 руб. ГАП: 32 040 000 руб.
Коммерческие условия:
Стоимость - 318 800 000 руб.
Стоимость за кв.м - 199 949 руб.
Продажа по ДКПН, УСН 5% НДС
Окупаемость 9.95 лет.

Технические характеристики

Тип здания: Арендный бизнес,Особняк/здание,Торговая,Редевелопмент

Общая площадь: 1594.4  м2

Этаж: 1

Всего этажей: 2

Электрическая мощность: по запросу

Высота потолков: от 2,8 до 5,1 м.

Парковка: наземная. во дворе

Коммерческие условия

Цена за все: 318 800 000 RUB

ФОРМА ВЛАДЕНИЯ: ФЛ

Общий МАП: 2 980 000 RUB (данный МАП является минимальным, при оптимизации арендаторов арендный поток можно значительно увеличить)

Общий ГАП: 35 760 000 RUB

Окупаемость: 10 лет

Доходность: 10.00%

карта

Расположение

Адрес: Москва, улица Генерала Тюленева, 4Ас1

Округ: Юго-Западный административный округ

Близость метро: Коньково,Румянцево,Тёплый стан

Транспортная доступность: всего 140 от новой станции метро «Генерала Тюленева». До метро Теплый Стан 6 минут на транспорте. Поблизости пролегают магистрали: МКАД, Ленинский проспект и Профсоюзная улица.

Окружение

Торговое окружение: супермаркет

Адрес:

Москва, улица Генерала Тюленева, 4Ас1

Округ:

Юго-Западный административный округ

Близость метро:

Коньково,Румянцево,Тёплый стан

Транспортная доступность:

всего 140 от новой станции метро «Генерала Тюленева». До метро Теплый Стан 6 минут на транспорте. Поблизости пролегают магистрали: МКАД, Ленинский проспект и Профсоюзная улица.

карта

Торговое окружение:

супермаркет

Общая площадь:

1594.4  м2

Этаж:

1

Всего этажей:

2

Тип:

Арендный бизнес,Особняк/здание,Торговая,Редевелопмент

Электрическая мощность:

по запросу

Высота потолков:

от 2,8 до 5,1 м.

Парковка:

наземная. во дворе

ФОРМА ВЛАДЕНИЯ:

ФЛ

Цена за все:

318 800 000 RUB

Общий МАП: 2 980 000

(данный МАП является минимальным, при оптимизации арендаторов арендный поток можно значительно увеличить)

Общий ГАП:

35 760 000

Окупаемость:

10 лет

Доходность:

10.00%

Планировка

Николай

Ваш брокер по работе с клиентами

Найдите лучшее место
для жизни, бизнеса, инвестиций

Оставьте свои контакты — с вами свяжется руководитель отдела для презентации нужного вам объекта

Похожие объекты