Id 18567

Холодильный пер., 3 -236.4 кв.м Продажа офисного помещения в Товарищество Рябовской Мануфактуры

адрес Москва, Холодильный переулок 3

Торговая
Лофт
Офис

99 288 000 RUB | за все

(за 1 м2 — 420 000 RUB)

площадь 236.4 м2

QR код Qr код

Вашему вниманию предлагается офисное помещение на территории Товарищества Рябовской Мануфактуры, расположенного по адресу: Холодильный переулок, 3 , в шаговой доступности от станций метро Тульская. Наш деловой лофт-квартал представляет из себя комплекс зданий с собственным двором площадью 55 тыс. кв.м., в которых располагаются более 300 арендаторов, представительств малых и крупных компаний. Количество ежедневно работающий на территории комплекса сотрудников – до 8 000 чел. Имеется обширная парковочная зона во дворе комплекса.
Из инфраструктуры: винный ресторан, кафе греческой и израильской кухни, большая столовая, бар, гостиница, фитнес центры, шоурумы.
Заполненность действующей части комплекса на данный момент составляет 98%. К лету планируется открытие второй очереди (18 тыс. кв.м.), бывший комплекс зданий Ролл Холл. Новая очередь уже практически полностью реализована в аренду.

Технические параметры:
2 этаж
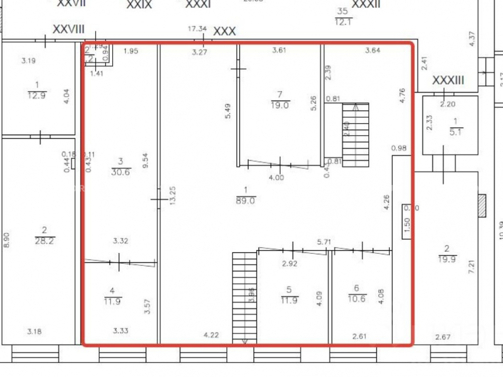
Офисное помещение, площадью 236.4 м2 двухуровневое (с антресолью)
Выполнена современная дизайнерская отделка
Потолки 5м, смешанная планировка, арочные окна.
Стильная, благоустроенная территория; свободный доступ 24/7 (без пропускной системы).
Круглосуточная охрана, клининг.
Профессиональная управляющая компания, централизованные системы кондиционирования.

Коммерческие условия:
Стоимость: 99 288 000 рублей, с НДС
Стоимость квадратного метра 420 000 рублей
Условия сделки обсуждаются на переговорах.

Технические характеристики

Тип здания: Торговая,Лофт,Офис

Общая площадь: 236.4  м2

Этаж: 2

Всего этажей: 6

Электрическая мощность: 1

Высота потолков: 1

Парковка: 1

Коммерческие условия

Цена за все: 99 288 000 RUB

ФОРМА ВЛАДЕНИЯ: 1

карта

Расположение

Адрес: Москва, Холодильный переулок 3

Округ: Центральный административный округ

Близость метро: Тульская

Транспортная доступность: 1

Окружение

Торговое окружение: 1

Адрес:

Москва, Холодильный переулок 3

Округ:

Центральный административный округ

Близость метро:

Тульская

Транспортная доступность:

1

карта

Торговое окружение:

1

Общая площадь:

236.4  м2

Этаж:

2

Всего этажей:

6

Тип:

Торговая,Лофт,Офис

Электрическая мощность:

1

Высота потолков:

1

Парковка:

1

ФОРМА ВЛАДЕНИЯ:

1

Цена за все:

99 288 000 RUB

Гуда Алексей

Ваш брокер по работе с клиентами

Найдите лучшее место
для жизни, бизнеса, инвестиций

Оставьте свои контакты — с вами свяжется руководитель отдела для презентации нужного вам объекта

Похожие объекты