Id 160694
Вишневая улица 7, мультиквартал СитиДзен - 103.1 м² / Продажа помещения свободного назначения
Москва, ЖК Ситидзен, к3
С отдельным входом
Торговая
Жилой комплекс (мфк)
77 325 000 RUB | за все
(за 1 м2 — 750 000 RUB)
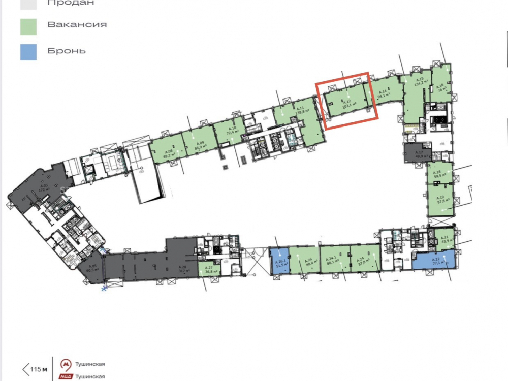
103.1 м2
Qr код
Продажа помещения свободного назначения в Мультиквартале Сити Дзен, по адресу: город Москва, район Покровское-Стрешнево, Вишневая улица 7, корпус Парус.
Всего квартир в 1-й очереди - 1 574. Всего жителей в 1-й очереди - 3 935 человек.
Общее число жителей при полном заселении всех очередей - 25 500 человек.
Технические характеристики:
Общая площадь 103.1 м². 1-й этаж жилого дома. 2 отдельных входа с улицы. Высота потолков более 5 м. Все центральные коммуникации. Панорамное остекление. Возможность организации рекламной вывески.
Коммерческие условия:
Стоимость объекта - 77 325 000 руб.
Стоимость за м² - 750 000 руб.
Продажа по ДДУ.
Ключи 1-й квартал 2028 год.
Технические характеристики
Тип здания: С отдельным входом,Торговая,Жилой комплекс (мфк)
Общая площадь: 103.1 м2
Этаж: 1
Всего этажей: 19
Электрическая мощность: -
Высота потолков: 5 метров.
Парковка: Подземный паркинг
Коммерческие условия
Цена за все: 77 325 000 RUB
ФОРМА ВЛАДЕНИЯ: Продажа по ДДУ.
Расположение
Адрес: Москва, ЖК Ситидзен, к3
Округ: Северо-Западный административный округ
Близость метро: Тушинская
Транспортная доступность: 3 минуты от станции метро Тушинская. 6 минут от Волоколамского шоссе. 8 минут от МКАДа.
Окружение
Торговое окружение: -
Адрес:
Москва, ЖК Ситидзен, к3
Округ:
Северо-Западный административный округ
Близость метро:
Тушинская
Транспортная доступность:
3 минуты от станции метро Тушинская. 6 минут от Волоколамского шоссе. 8 минут от МКАДа.
Торговое окружение:
-
Общая площадь:
103.1 м2
Этаж:
1
Всего этажей:
19
Тип:
С отдельным входом,Торговая,Жилой комплекс (мфк)
Электрическая мощность:
-
Высота потолков:
5 метров.
Парковка:
Подземный паркинг
ФОРМА ВЛАДЕНИЯ:
Продажа по ДДУ.
Цена за все:
77 325 000 RUB
Планировка
Найдите лучшее место
для жизни, бизнеса, инвестиций
Оставьте свои контакты — с вами свяжется руководитель отдела для презентации нужного вам объекта