Id 159487

г. Красногорск, ул. Молодежная, д.4/ 74,5 кв.м./ продажа торгового помещения

адрес Красногорск, Молодёжная улица, 4

С отдельным входом
Торговая
Жилой комплекс (мфк)
Новостройка

28 000 000 RUB | за все

(за 1 м2 — 375 839 RUB)

площадь 74.5 м2

QR код Qr код

Предлагается в продажу торговое помещение в ЖК "Молодежный" по адресу: Московская обл., г. Красногорск, ул. Молодежная, д.4. Рядом автобусная остановка до станции метро Тушинская и МЦД D2 Пенягино. Новый современный дом 2017 года постройки. Плотная жилая застройка. Первая линия.

Торговое окружение: Магнит, Ароматный мир, барбершоп Лондон, магазин цветов Flower shop, кофейня Prana и др.

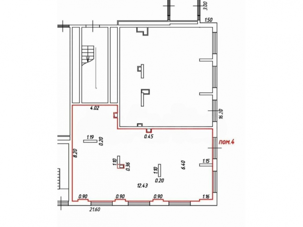
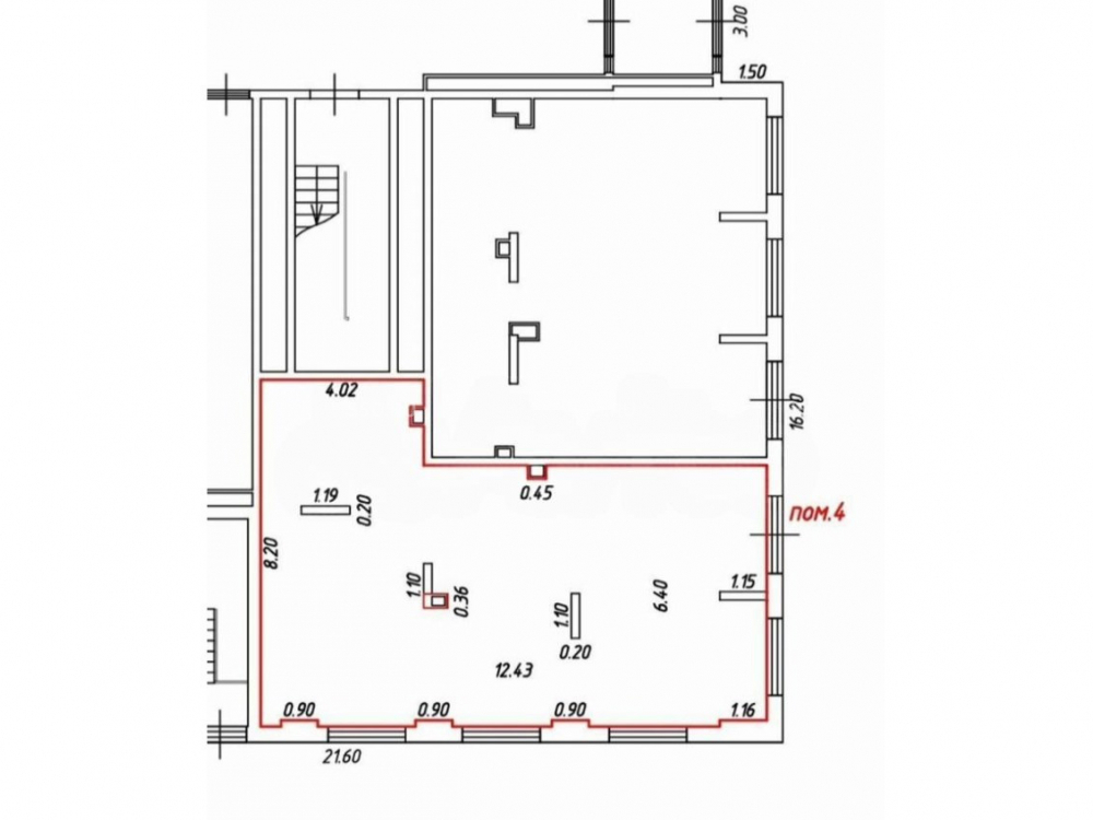
Технические характеристики: общая площадь 74,5 кв.м. • первый этаж жилого 25 этажного дома • электроэнергия 17 кВт. • высота потолков 4 м. • отдельный вход со стороны фасада и улицы • отделка • все центральные коммуникации • зальная планировка.

Коммерческие условия:
• Стоимость 28 000 000 рублей
• Стоимость кв.м. 375 839 рублей
• Продажа по ДКПН от физ. лица

Технические характеристики

Тип здания: С отдельным входом,Торговая,Жилой комплекс (мфк),Новостройка

Общая площадь: 74.5  м2

Этаж: 1

Всего этажей: 25

Электрическая мощность: 17 кВт

Высота потолков: 4

Парковка: наземная

Коммерческие условия

Цена за все: 28 000 000 RUB

ФОРМА ВЛАДЕНИЯ: ДКП

карта

Расположение

Адрес: Красногорск, Молодёжная улица, 4

Округ: Западный административный округ

Близость метро: Волоколамская,Пенягино,Тушинская

Транспортная доступность: метро Тушинская и МЦД D2 Пенягино

Окружение

Торговое окружение: Магнит, Ароматный мир, барбершоп Лондон, магазин цветов Flower shop, кофейня Prana и др

Адрес:

Красногорск, Молодёжная улица, 4

Округ:

Западный административный округ

Близость метро:

Волоколамская,Пенягино,Тушинская

Транспортная доступность:

метро Тушинская и МЦД D2 Пенягино

карта

Торговое окружение:

Магнит, Ароматный мир, барбершоп Лондон, магазин цветов Flower shop, кофейня Prana и др

Общая площадь:

74.5  м2

Этаж:

1

Всего этажей:

25

Тип:

С отдельным входом,Торговая,Жилой комплекс (мфк),Новостройка

Электрическая мощность:

17 кВт

Высота потолков:

4

Парковка:

наземная

ФОРМА ВЛАДЕНИЯ:

ДКП

Цена за все:

28 000 000 RUB

Планировка

Надежда Лежнина

Ваш брокер по работе с клиентами

Найдите лучшее место
для жизни, бизнеса, инвестиций

Оставьте свои контакты — с вами свяжется руководитель отдела для презентации нужного вам объекта

Похожие объекты