Id 159371

Ленинский пр-т, д. 88, корп. 2- 123 м2/ Аренда ПСН

адрес Москва, Ленинский проспект, 88к2

С отдельным входом
Торговая

400 000 RUB | в месяц

(за 1 м2 — 1 509 RUB)

площадь 265.0 м2

QR код Qr код

Предлагается в аренду помещение свободного назначения а ЦАО общей площадью - 123.6 кв.м, расположенное в цокольном этаже жилого здания.Помещение находится в районе с развитой инфраструктурой, от метро Таганская и Марксистская всего 7 - 8 минут пешком по историческому центру Москвы
Рядом находится факультет РАНГХИС, малая сцена театра на Таганке на Факельном.

Технические характеристики:
-Высота потолков 2.8-3.0 м
-Кондиционирование в каждом кабинете
-Отдельный вход с улицы
-Во дворе закреплённое парковочное место.
-Электричество 25 кВт.
- Есть тех вытяжка на крышу
-Планировка смешанная, состоящее из 7 кабинетов, в каждом из которых есть мокрая точка.

Транспортная доступность:
- м. Таганская и Марксистская всего 7 минут пешком

Коммерческие условия:
Стоимость аренды в мес. – 246 000 руб.
Стоимость за 1 кв. м. – 2000 руб.

Технические характеристики

Тип здания: С отдельным входом,Торговая

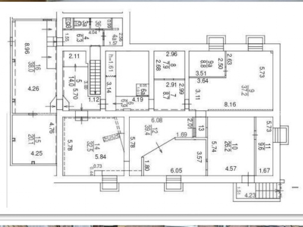
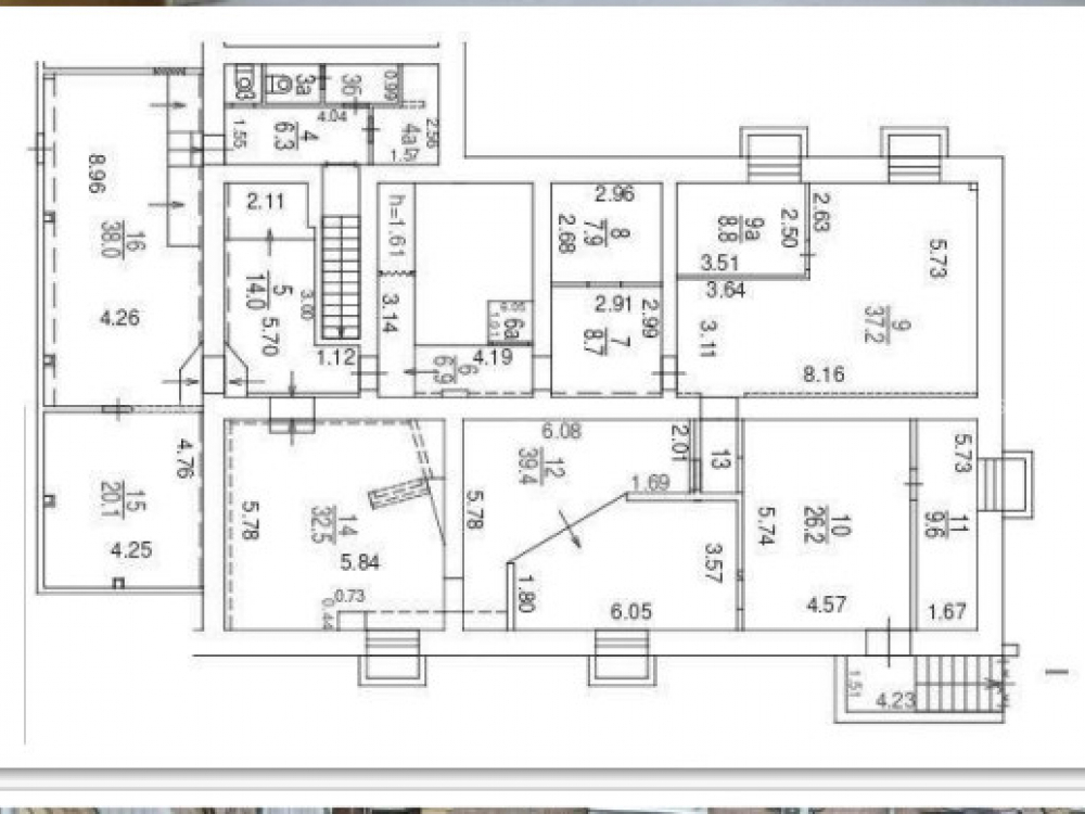
Общая площадь: 265  м2

Этаж: -1

Всего этажей: 9

Электрическая мощность: 15

Высота потолков: 2.6

Парковка: парковочное место

Коммерческие условия

Цена в месяц: 400 000 RUB

ФОРМА ВЛАДЕНИЯ: собственность ООО

карта

Расположение

Адрес: Москва, Ленинский проспект, 88к2

Округ: Юго-Западный административный округ

Близость метро: Вавиловская,Новаторская

Транспортная доступность: Новаторская 5 минут

Окружение

Торговое окружение: 5ка, кофейни, салон красоты, магазин ковров, аптека и пр.

Адрес:

Москва, Ленинский проспект, 88к2

Округ:

Юго-Западный административный округ

Близость метро:

Вавиловская,Новаторская

Транспортная доступность:

Новаторская 5 минут

карта

Торговое окружение:

5ка, кофейни, салон красоты, магазин ковров, аптека и пр.

Общая площадь:

265  м2

Этаж:

-1

Всего этажей:

9

Тип:

С отдельным входом,Торговая

Электрическая мощность:

15

Высота потолков:

2.6

Парковка:

парковочное место

ФОРМА ВЛАДЕНИЯ:

собственность ООО

Цена в месяц:

400 000 RUB

Планировка

Олеся Шайхисламова

Ваш брокер по работе с клиентами

Найдите лучшее место
для жизни, бизнеса, инвестиций

Оставьте свои контакты — с вами свяжется руководитель отдела для презентации нужного вам объекта

Похожие объекты