Id 159255

Москва, САО, ул. Часовая, д. 28, корп. 4/ 41,8 кв.м./ продажа ПСН в ЖК бизнес класса Soul

адрес Москва, ЖК Соул

С отдельным входом
Торговая
Жилой комплекс (мфк)
Новостройка

32 583 100 RUB | за все

(за 1 м2 — 779 500 RUB)

площадь 41.8 м2

QR код Qr код

Предлагается в продажу торговое помещение в районе Аэропорт в ЖК бизнес класса Soul по адресу: г. Москва, САО, ул. Часовая, 28 к4, корп. Unique (7), секция 3. 10 мин. пешком от метро Сокол и Красный Балтиец (D2). Проектом предусмотрено 10 башен высотой от 18 до 35 этажей, а также среднеэтажные корпуса высотой от 6 до 9 этажей. Сердцем комплекса станет здание бывшей Изофабрики, в которой будут расположены рестораны, творческие мастерские и досуговые пространства. Старый обжитой район с низким соотношения коммерции к жилому фонду.

Торговое окружение: Wildberries, Озон, мед. центр "Ясный взор" и другие.

Срок ввода в эксплуатацию - 1 кв. 2029 год.

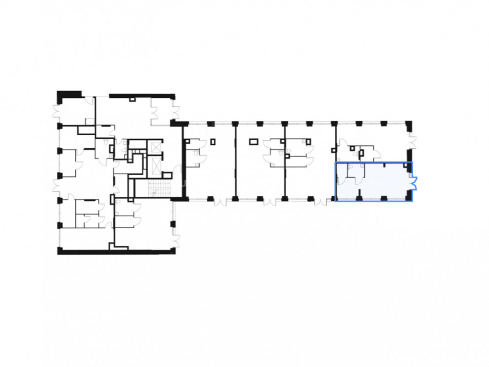
Технические характеристики: общая площадь 41,8 кв.м. • первый этаж в жилом 8 этажном доме • электроэнергия 12,54 кВт. • 1 отдельный вход • высота потолков 5 метров • без отделки • центральные коммуникации.

Коммерческие условия:
• Стоимость 32 583 100 рублей
• Стоимость кв.м. 779 500 рублей
• Продажа по договору от юр. лица
• Возможна беспроцентная рассрочка: первый взнос 40%, остаток равными платежами на 9 месяцев

Технические характеристики

Тип здания: С отдельным входом,Торговая,Жилой комплекс (мфк),Новостройка

Общая площадь: 41.8  м2

Этаж: 1

Всего этажей: 8

Электрическая мощность: 12.54 кВт

Высота потолков: 5

Парковка: наземная, подземная

Коммерческие условия

Цена за все: 32 583 100 RUB

ФОРМА ВЛАДЕНИЯ: ДДУ

карта

Расположение

Адрес: Москва, ЖК Соул

Округ: Северный административный округ

Близость метро: Красный Балтиец,Сокол

Транспортная доступность: 10 мин. пешком от м. Сокол, Красный Балтиец (D2)

Окружение

Торговое окружение: жилой массив

Адрес:

Москва, ЖК Соул

Округ:

Северный административный округ

Близость метро:

Красный Балтиец,Сокол

Транспортная доступность:

10 мин. пешком от м. Сокол, Красный Балтиец (D2)

карта

Торговое окружение:

жилой массив

Общая площадь:

41.8  м2

Этаж:

1

Всего этажей:

8

Тип:

С отдельным входом,Торговая,Жилой комплекс (мфк),Новостройка

Электрическая мощность:

12.54 кВт

Высота потолков:

5

Парковка:

наземная, подземная

ФОРМА ВЛАДЕНИЯ:

ДДУ

Цена за все:

32 583 100 RUB

Планировка

Надежда Лежнина

Ваш брокер по работе с клиентами

Найдите лучшее место
для жизни, бизнеса, инвестиций

Оставьте свои контакты — с вами свяжется руководитель отдела для презентации нужного вам объекта

Похожие объекты