Id 158712

г. Москва, ЖК Квартал Герцена, к.2 - 573.7 м²/ Продажа ПСН

адрес Москва, жилой комплекс Квартал Герцена, к2

С отдельным входом
Торговая

214 960 000 RUB | за все

(за 1 м2 — 374 691 RUB)

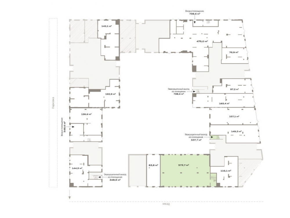
площадь 573.7 м2

QR код Qr код

Предлагается к продаже помещение свободного назначения по адресу г. Москва, жилой комплекс Квартал Герцена, к.2
Данный жилой комплекс — это современные кирпично-монолитные дома переменной этажности высотой от 6 до 55 этажей с видовыми террасами и балконами. Жилой комплекс находится в Районе Восточное Бирюлево с развитой социальной инфраструктурой: рядом есть магазины, рестораны, аптеки, супермаркет «Лента», торговые центры «Брендсити», «Конструктор», «Vegas». Рядом с комплексом находятся Бирюлевский лесопарк, Герценский парк и пруд с благоустроенной пляжной зоной. Расстояние от жилого комплекса до МКАД менее 1 километра. В 10 минутах пути на автомобиле распложена ж/д станция «Бирюлево пассажирская». До международного аэропорта «Домодедово» — 30 минут езды, до ближайшего метро «Царицыно» — 15 минут. В 2025-2026 году в пешей доступности от комплекса планируется открытие новой станции метро «Лебедянская».
Торговое окружение: Гипер Лента, Дикси.
Сдача: 4 кв. 2027г.

Технические характеристики:
Площадь 573.7 м² - в 2х уровнях!, отдельный вход, первый этаж 30и этажного корпуса, электрическая мощность 114.5 кВт., высота потолков 4,5 м. Возможна установка вывески. Парковка на улице.

Коммерческие условия:
Стоимость за все - 214 960 000 руб.
Стоимость за 1 кв.м. - 374 691 руб.
ДДУ

Технические характеристики

Тип здания: С отдельным входом,Торговая

Общая площадь: 573.7  м2

Этаж: 1

Всего этажей: 30

Электрическая мощность: 114.5 кВт

Высота потолков: 4.5м

Парковка: открытая, общая

Коммерческие условия

Цена за все: 214 960 000 RUB

ФОРМА ВЛАДЕНИЯ: ДДУ

карта

Расположение

Адрес: Москва, жилой комплекс Квартал Герцена, к2

Близость метро: Домодедовская

Транспортная доступность: В 10 минутах пути на автомобиле распложена ж/д станция «Бирюлево пассажирская». До международного аэропорта «Домодедово» — 30 минут езды, до ближайшего метро «Царицыно» — 15 минут.

Окружение

Торговое окружение: --

Адрес:

Москва, жилой комплекс Квартал Герцена, к2

Округ:

Близость метро:

Домодедовская

Транспортная доступность:

В 10 минутах пути на автомобиле распложена ж/д станция «Бирюлево пассажирская». До международного аэропорта «Домодедово» — 30 минут езды, до ближайшего метро «Царицыно» — 15 минут.

карта

Торговое окружение:

--

Общая площадь:

573.7  м2

Этаж:

1

Всего этажей:

30

Тип:

С отдельным входом,Торговая

Электрическая мощность:

114.5 кВт

Высота потолков:

4.5м

Парковка:

открытая, общая

ФОРМА ВЛАДЕНИЯ:

ДДУ

Цена за все:

214 960 000 RUB

Планировка

Никифоров Андрей

Ваш брокер по работе с клиентами

Найдите лучшее место
для жизни, бизнеса, инвестиций

Оставьте свои контакты — с вами свяжется руководитель отдела для презентации нужного вам объекта

Похожие объекты