Id 158689

Мытищи, Новомытищинский проспект 62к1 - продажа торгового помещения 138,2 м2

адрес Мытищи, Новомытищинский проспект, 62к1

С отдельным входом
Торговая
Новостройка
Медицина

36 623 000 RUB | за все

(за 1 м2 — 265 000 RUB)

площадь 138.2 м2

QR код Qr код

Продажа торгового помещения в новом ЖК бизнес-класса "Атлантис" по адресу: г. Мытищи, Новомытищинский проспект, 62к1. В окружении дефицит торговых площадей. По периметру располагаются пятиэтажные дома, попадающие в реновацию. Помещение находится в непосредственном соседстве от магазина "Пятерочка".
Торговое окружение: магазин "Пятерочка", аптека "Здравсити", ПВЗ и др.

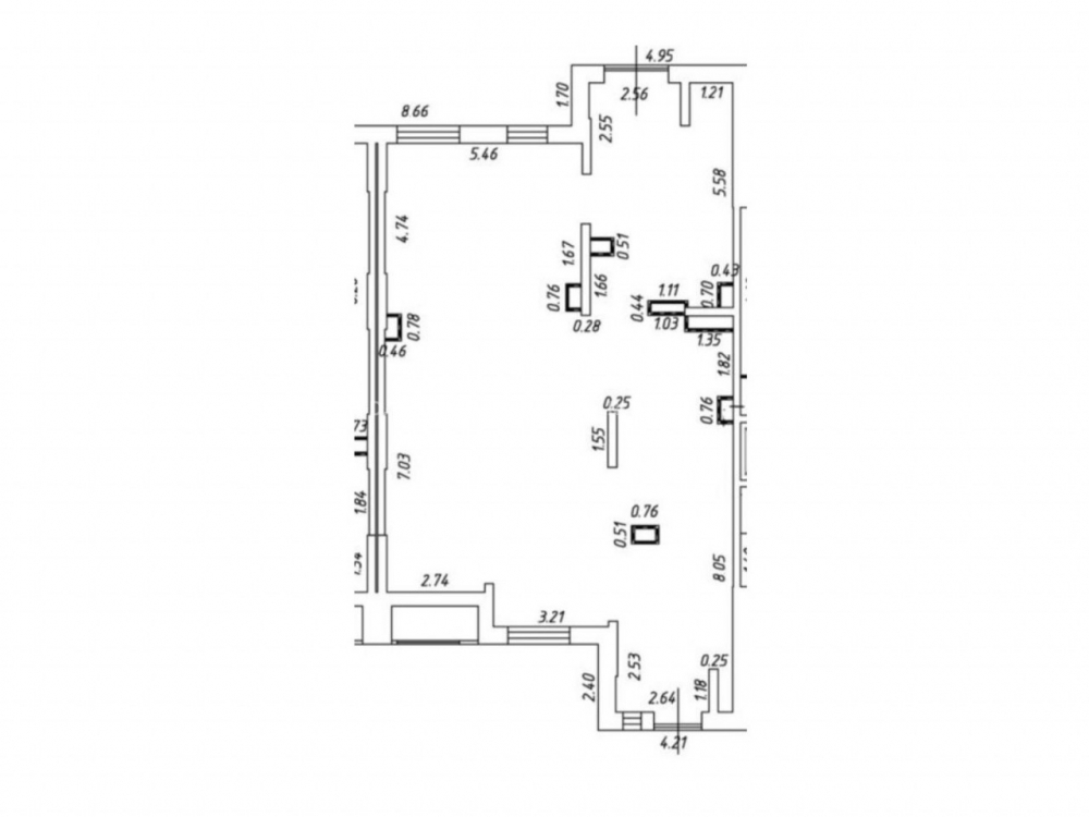
Технические характеристики: 1 этаж жилого 10 этажного дома. Общая площадь - 138.2 м2. Правильная прямоугольная форма. Две входные группы на две стороны дома. Свободная планировка, высокие потолки. Электрическая мощность - по запросу. Состояние объекта - без отделки. Дом введен в эксплуатацию

Коммерческие условия:
Стоимость помещения: 36 623 000 рублей с НДС
Стоимость за 1 м2: 265 000 рублей с НДС

Технические характеристики

Тип здания: С отдельным входом,Торговая,Новостройка,Медицина

Общая площадь: 138.2  м2

Этаж: 1

Всего этажей: 10

Электрическая мощность: -

Высота потолков: 3

Парковка: на улице

Коммерческие условия

Цена за все: 36 623 000 RUB

ФОРМА ВЛАДЕНИЯ: ООО с НДС

карта

Расположение

Адрес: Мытищи, Новомытищинский проспект, 62к1

Округ: Северный административный округ

Близость метро: Медведково

Транспортная доступность: -

Окружение

Торговое окружение: магазин

Адрес:

Мытищи, Новомытищинский проспект, 62к1

Округ:

Северный административный округ

Близость метро:

Медведково

Транспортная доступность:

-

карта

Торговое окружение:

магазин

Общая площадь:

138.2  м2

Этаж:

1

Всего этажей:

10

Тип:

С отдельным входом,Торговая,Новостройка,Медицина

Электрическая мощность:

-

Высота потолков:

3

Парковка:

на улице

ФОРМА ВЛАДЕНИЯ:

ООО с НДС

Цена за все:

36 623 000 RUB

Планировка

Шагитов Марат

Ваш брокер по работе с клиентами

Найдите лучшее место
для жизни, бизнеса, инвестиций

Оставьте свои контакты — с вами свяжется руководитель отдела для презентации нужного вам объекта

Похожие объекты