Id 158215

Лётчика Ульянина, 7А/87.1/Продажа ПСН

адрес улица Лётчика Ульянина, 7А

С отдельным входом
Торговая

21 000 000 RUB | за все

(за 1 м2 — 241 102 RUB)

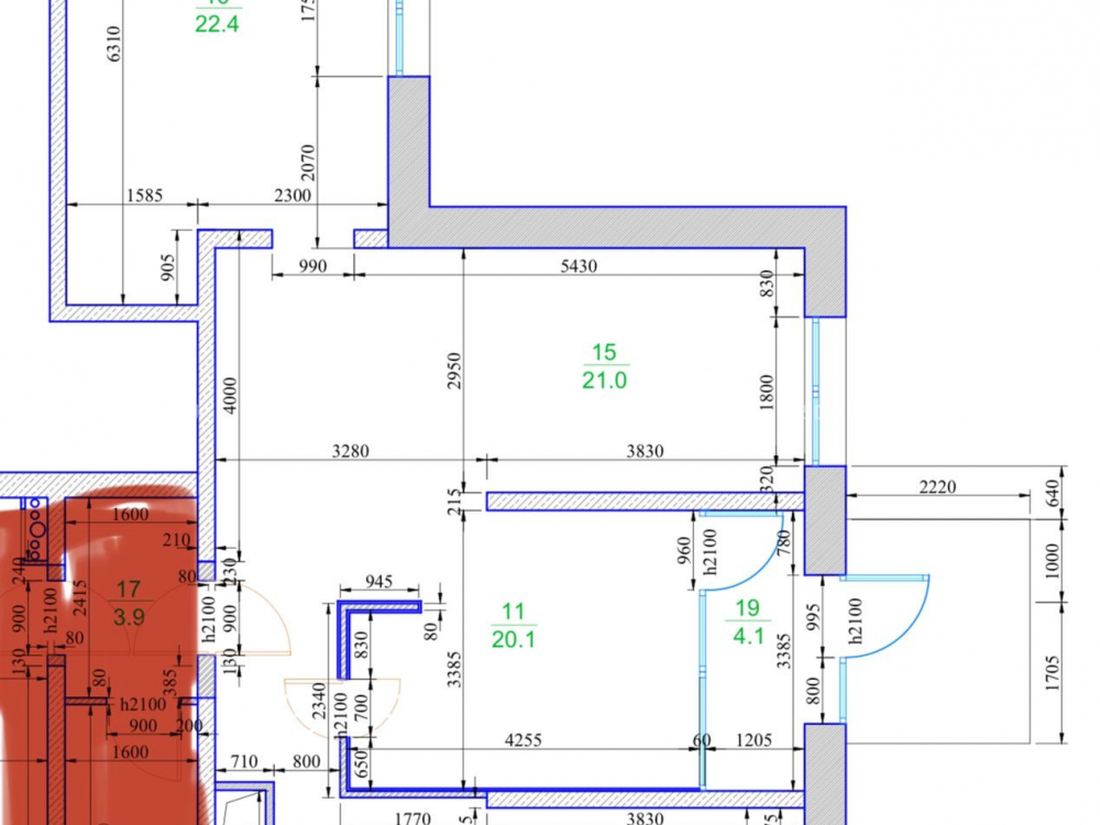
площадь 87.1 м2

QR код Qr код

Продажа Помещения свободного назначения в ЖК Солнцево парк, 9 мин пешком от метро Пыхтино по основной улице ЖК. Подходит под любой вид деятельности. Возможно получение алколицензии.


Тех характеристики:
1 этаж, отдельный вход, потолки 3.3., электричество 10 квт. возможно увеличение мощности, вытяжка. Возможно согласование доп входа.

Транспортная доступность :
метро Пыхтино 9 мин пешком.

Коммерческие условия:
Стоимость помещения - 21 000 000 руб.
Стоимость м2 -241 102 руб.
Собственник физ лицо

Технические характеристики

Тип здания: С отдельным входом,Торговая

Общая площадь: 87.1  м2

Этаж: 1

Всего этажей: 14

Электрическая мощность: 10

Высота потолков: 3.3

Парковка: на улице

Коммерческие условия

Цена за все: 21 000 000 RUB

ФОРМА ВЛАДЕНИЯ: собственность

карта

Расположение

Адрес: улица Лётчика Ульянина, 7А

Близость метро: Пыхтино

Транспортная доступность: метро Пыхтино

Окружение

Торговое окружение: ароматный мир, кафе, вкусвил, салоны красоты, сетевые магазины, сбербанк и пр.

Адрес:

улица Лётчика Ульянина, 7А

Округ:

Близость метро:

Пыхтино

Транспортная доступность:

метро Пыхтино

карта

Торговое окружение:

ароматный мир, кафе, вкусвил, салоны красоты, сетевые магазины, сбербанк и пр.

Общая площадь:

87.1  м2

Этаж:

1

Всего этажей:

14

Тип:

С отдельным входом,Торговая

Электрическая мощность:

10

Высота потолков:

3.3

Парковка:

на улице

ФОРМА ВЛАДЕНИЯ:

собственность

Цена за все:

21 000 000 RUB

Планировка

Александр Невский

Ваш брокер по работе с клиентами

Найдите лучшее место
для жизни, бизнеса, инвестиций

Оставьте свои контакты — с вами свяжется руководитель отдела для презентации нужного вам объекта

Похожие объекты