Id 157835

МО, Люберцы, деревня Токарево, ул. Старая / 602 м²./ Продажа ПСН

адрес деревня Токарёво, Старая улица

Многофункциональный
С отдельным входом
Склад

85 165 200 RUB | за все

(за 1 м2 — 141 470 RUB)

площадь 602.0 м2

QR код Qr код

Предлагается к продаже помещение свободного назначения 602 м². Промышленный парк формата light industrial состоит из 6 зданий, где предлагаются площади для размещения легких производств, складов и логистических компаний. Объект построен по панельной технологии и предназначен для бизнеса, которому важны функциональные решения и надежная инженерия. Помещения соответствуют актуальным требованиям к производственным и складским объектам нового поколения. Промышленный парк расположен в деревне Токарево. В 15 минутах транспортом находится станция метро Томилино (линия D3), дорога до МКАД занимает около 20 минут, а до Третьего транспортного кольца — 35 минут. В пределах 5–10 минут транспортом доступны склады, оптовые базы, торговые центры, рестораны, магазины и строительные гипермаркеты.

Технические характеристики:
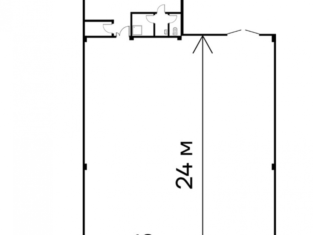
Площадь 602 м²., отдельный вход, высота потолка 8 м., электрическая мощность 18.06 кВт.

Коммерческие условия:
Стоимость за все - 83 364 960 рублей
Стоимость за кв.м. - 138 480 рублей
Срок сдачи 4 кв. 2026.

Технические характеристики

Тип здания: Многофункциональный,С отдельным входом,Склад

Общая площадь: 602  м2

Этаж: 1

Всего этажей: 2

Электрическая мощность: -

Высота потолков: -

Парковка: -

Коммерческие условия

Цена за все: 85 165 200 RUB

ФОРМА ВЛАДЕНИЯ: -

карта

Расположение

Адрес: деревня Токарёво, Старая улица

Округ: Северо-Восточный административный округ

Близость метро: Новокосино

Транспортная доступность: -

Окружение

Торговое окружение: -

Адрес:

деревня Токарёво, Старая улица

Округ:

Северо-Восточный административный округ

Близость метро:

Новокосино

Транспортная доступность:

-

карта

Торговое окружение:

-

Общая площадь:

602  м2

Этаж:

1

Всего этажей:

2

Тип:

Многофункциональный,С отдельным входом,Склад

Электрическая мощность:

-

Высота потолков:

-

Парковка:

-

ФОРМА ВЛАДЕНИЯ:

-

Цена за все:

85 165 200 RUB

Планировка

Шаклеина Юлия

Ваш брокер по работе с клиентами

Найдите лучшее место
для жизни, бизнеса, инвестиций

Оставьте свои контакты — с вами свяжется руководитель отдела для презентации нужного вам объекта

Похожие объекты