Id 157791

Большая Татарская улица, 7к1 ЖК 4 Солнца

адрес Москва, Большая Татарская улица, 7к1

С отдельным входом
Торговая
Офис
Общепит
Медицина

590 000 000 RUB | за все

(за 1 м2 — 590 531 RUB)

площадь 999.1 м2

QR код Qr код

Предлагается на продажу уникальное помещение свободного назначения в элитном ЖК "Четыре солнца". Расположено всего в пяти минутах пешком от метро "Новокузнецкая", что обеспечивает удобный доступ для клиентов и сотрудников. Помещение выполнено с качественным ремонтом и полностью готово к эксплуатации, без дополнительных вложений. Ранее Букбридж книжный интернет магазин. Пешая доступность от станции метро Новокузнецкая. Активный пешеходный трафик. Городской паркинг рядом с помещением. торговое окружение: Магнолия, Внешфинбанк, клиника Семейный доктор, 2 кафе "Дейли Грин", "ВьетКафе", бутик женской одежды, бьюти коворкинг.
​Интернет-магазин иностранной литературы

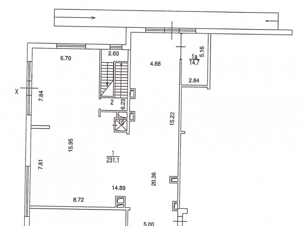
Технические характеристики: общая площадь - 999,1 кв.м., расположено на двух этажах (первый этаж – 263 кв.м., второй этаж – 735 кв.м.). Предусмотрено три отдельных входа. Помещение оснащено современными системами контроля доступа (СКУД), приточно-вытяжной вентиляцией, кондиционированием и грузовым подъемником. Имеется парковка во дворе.

Коммерческие условия:

Стоимость - 590 000 000 рублей
Стоимость кв.м. 590 531,4 рублей

Технические характеристики

Тип здания: С отдельным входом,Торговая,Офис,Общепит,Медицина

Общая площадь: 999.1  м2

Этаж: 1

Всего этажей: 10

Электрическая мощность: нд

Высота потолков: 3.5

Парковка: 5 мм

Коммерческие условия

Цена за все: 590 000 000 RUB

ФОРМА ВЛАДЕНИЯ: СобственностьФЛ

карта

Расположение

Адрес: Москва, Большая Татарская улица, 7к1

Округ: Центральный административный округ

Близость метро: Новокузнецкая

Транспортная доступность: Пешая от метро

Окружение

Торговое окружение: кафе, рестораны, магазины, банки, офисы. Рядом находятся Третьяковская галерея, Кадашевская и Овчинниковская набережные, различные музеи и скверы для прогулок.

Адрес:

Москва, Большая Татарская улица, 7к1

Округ:

Центральный административный округ

Близость метро:

Новокузнецкая

Транспортная доступность:

Пешая от метро

карта

Торговое окружение:

кафе, рестораны, магазины, банки, офисы. Рядом находятся Третьяковская галерея, Кадашевская и Овчинниковская набережные, различные музеи и скверы для прогулок.

Общая площадь:

999.1  м2

Этаж:

1

Всего этажей:

10

Тип:

С отдельным входом,Торговая,Офис,Общепит,Медицина

Электрическая мощность:

нд

Высота потолков:

3.5

Парковка:

5 мм

ФОРМА ВЛАДЕНИЯ:

СобственностьФЛ

Цена за все:

590 000 000 RUB

Планировка

Александр Невский

Ваш брокер по работе с клиентами

Найдите лучшее место
для жизни, бизнеса, инвестиций

Оставьте свои контакты — с вами свяжется руководитель отдела для презентации нужного вам объекта

Похожие объекты