Id 158135

Новая Москва, деревня Соколово, Киевское шоссе/ 3270 м²/ Продажа ПСН.

адрес Киевское шоссе, 58-й километр

Многофункциональный
С отдельным входом
Склад

483 116 340 RUB | за все

(за 1 м2 — 147 742 RUB)

площадь 3 270.0 м2

QR код Qr код

Предлагается в продажу помещение свободного назначения 3270 м²., расположенное по адресу Новая Москва, деревня Соколово, Киевское шоссе. Промышленный парк формата light industrial построен по панельной технологии. Фасады выполнены из трехслойных сэндвич-панелей поэлементной сборки, предусмотрена большая площадь остекления с тонировкой стекол. Проект сертифицирован по системе экологической эффективности КЛЕВЕР. Объект расположен в Новой Москве, в поселении Марушкинское. Рядом находятся продуктовые магазины, кафе, АЗС и остановки общественного транспорта. Локация имеет удобный выезд на Киевское шоссе, что обеспечивает транспортную доступность. До метро Аэропорт Внуково можно добраться за 15 минут транспортом, до Москва-Сити — за 50 минут, а дорога до центра Москвы занимает около 1 часа.

Технические характеристики:
Площадь 3270 м²., располагается на 1 этаже, высота потолков 8 м., отделка чистовая. Мощность электричества 98.1 кВт.

Коммерческие условия:
Стоимость за все - 483 116 340 руб.
Стоимость за 1 кв.м. - 147 742 руб.
Срок сдачи 4 кв. 2026.

Технические характеристики

Тип здания: Многофункциональный,С отдельным входом,Склад

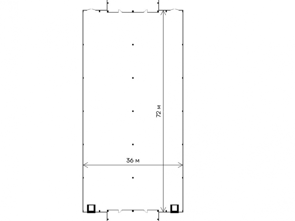
Общая площадь: 3270  м2

Этаж: 1

Всего этажей: 2

Электрическая мощность: 98.1 кВт.

Высота потолков: 8 м.

Парковка: на улице

Коммерческие условия

Цена за все: 483 116 340 RUB

ФОРМА ВЛАДЕНИЯ: -

карта

Расположение

Адрес: Киевское шоссе, 58-й километр

Округ: Юго-Западный административный округ

Близость метро: Аэропорт Внуково

Транспортная доступность: м. Аэропорт Внуково можно добраться за 15 минут транспортом

Окружение

Торговое окружение: -

Адрес:

Киевское шоссе, 58-й километр

Округ:

Юго-Западный административный округ

Близость метро:

Аэропорт Внуково

Транспортная доступность:

м. Аэропорт Внуково можно добраться за 15 минут транспортом

карта

Торговое окружение:

-

Общая площадь:

3270  м2

Этаж:

1

Всего этажей:

2

Тип:

Многофункциональный,С отдельным входом,Склад

Электрическая мощность:

98.1 кВт.

Высота потолков:

8 м.

Парковка:

на улице

ФОРМА ВЛАДЕНИЯ:

-

Цена за все:

483 116 340 RUB

Планировка

Шаклеина Юлия

Ваш брокер по работе с клиентами

Найдите лучшее место
для жизни, бизнеса, инвестиций

Оставьте свои контакты — с вами свяжется руководитель отдела для презентации нужного вам объекта

Похожие объекты