Id 157733

г. Москва, ЖК Квартал Герцена, к.2 / 76.9 м²./ Продажа ПСН.

адрес Москва, жилой комплекс Квартал Герцена, к2

Многофункциональный
С отдельным входом
Торговая
Жилой комплекс (мфк)

35 500 000 RUB | за все

(за 1 м2 — 461 638 RUB)

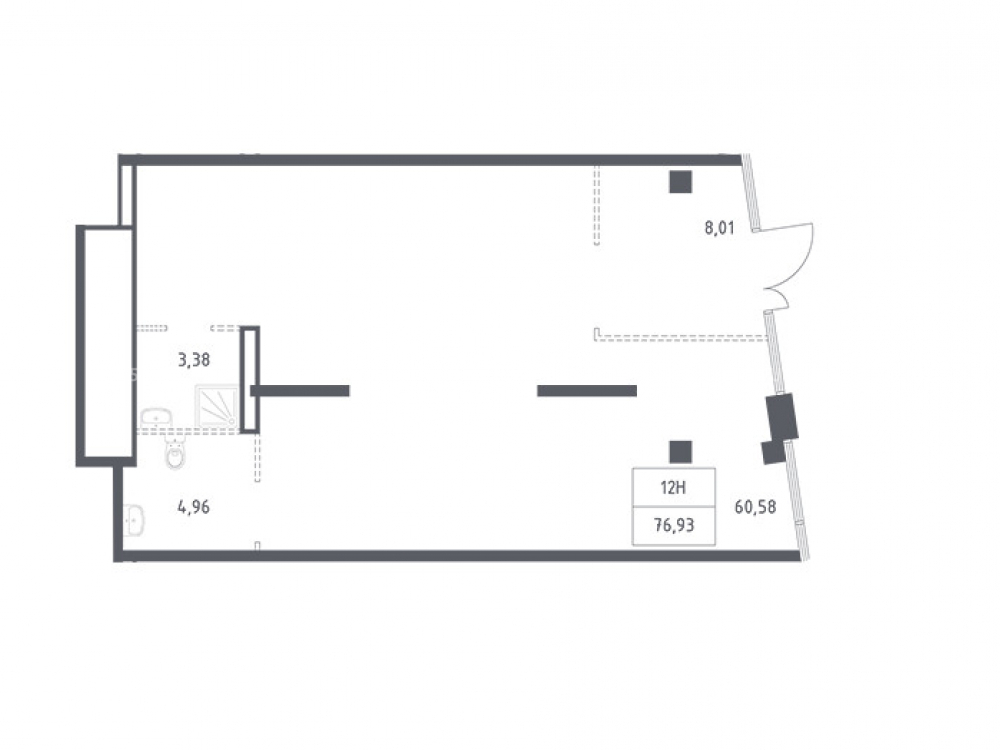
площадь 76.9 м2

QR код Qr код

Предлагается к продаже помещение свободного назначения по адресу г. Москва, жилой комплекс Квартал Герцена, к.1, 76.9 м². Данный жилой комплекс — это современные кирпично-монолитные дома переменной этажности высотой от 6 до 55 этажей с видовыми террасами и балконами. Жилой комплекс находится в Районе Восточное Бирюлево с развитой социальной инфраструктурой: рядом есть магазины, рестораны, аптеки, супермаркет «Лента», торговые центры «Брендсити», «Конструктор», «Vegas». Рядом с комплексом находятся Бирюлевский лесопарк, Герценский парк и пруд с благоустроенной пляжной зоной. Расстояние от жилого комплекса до МКАД менее 1 километра. В 10 минутах пути на автомобиле распложена ж/д станция «Бирюлево пассажирская». До международного аэропорта «Домодедово» — 30 минут езды, до ближайшего метро «Царицыно» — 15 минут. В 2025-2026 году в пешей доступности от комплекса планируется открытие новой станции метро «Лебедянская».

Торговое окружение: Гипер Лента, Дикси.
Сдача: 4 кв. 2027г.

Технические характеристики:
Площадь 76.9 м²., отдельный вход, первый этаж, электрическая мощность 13.84 кВт., высота потолков 4, 2 м. Возможна установка вывески. Парковка на улице.

Коммерческие условия:
Стоимость за все - 35 500 000 руб.
Стоимость за 1 кв.м. - 461 458 руб.
ДДУ

Технические характеристики

Тип здания: Многофункциональный,С отдельным входом,Торговая,Жилой комплекс (мфк)

Общая площадь: 76.9  м2

Этаж: 1

Всего этажей: 30

Электрическая мощность: 13.84 кВт

Высота потолков: 4.2м

Парковка: открытая, общая

Коммерческие условия

Цена за все: 35 500 000 RUB

ФОРМА ВЛАДЕНИЯ: ДДУ

карта

Расположение

Адрес: Москва, жилой комплекс Квартал Герцена, к2

Округ: Южный административный округ

Близость метро: Царицыно

Транспортная доступность: До международного аэропорта «Домодедово» — 30 минут езды, до ближайшего метро «Царицыно» — 15 минут

Окружение

Торговое окружение: -Торговое окружение: Гипер Лента, Дикси.

Адрес:

Москва, жилой комплекс Квартал Герцена, к2

Округ:

Южный административный округ

Близость метро:

Царицыно

Транспортная доступность:

До международного аэропорта «Домодедово» — 30 минут езды, до ближайшего метро «Царицыно» — 15 минут

карта

Торговое окружение:

-Торговое окружение: Гипер Лента, Дикси.

Общая площадь:

76.9  м2

Этаж:

1

Всего этажей:

30

Тип:

Многофункциональный,С отдельным входом,Торговая,Жилой комплекс (мфк)

Электрическая мощность:

13.84 кВт

Высота потолков:

4.2м

Парковка:

открытая, общая

ФОРМА ВЛАДЕНИЯ:

ДДУ

Цена за все:

35 500 000 RUB

Планировка

Шаклеина Юлия

Ваш брокер по работе с клиентами

Найдите лучшее место
для жизни, бизнеса, инвестиций

Оставьте свои контакты — с вами свяжется руководитель отдела для презентации нужного вам объекта

Похожие объекты