Id 157657

Московская обл, г Люберцы, ул Волковская, д 67/ 278.27м2/ Продажа АБ Магнит

адрес Люберцы, Волковская улица, 67

Арендный бизнес
С отдельным входом
Торговая

Окупаемость: 7.8 лет

Доходность:12.90%

90 000 000 RUB | за все

(за 1 м2 — 322 928 RUB)

площадь 278.7 м2

QR код Qr код

Продается помещение свободного назначения, расположенное по адресу: Московская обл, г Люберцы, ул Волковская, д 67. Готовый арендный бизнес. Комплекс находится в г. Люберцы, регулярно входящем в ТОП-5 лучших для жизни городов Подмосковья. Проект разработан в архитектурном бюро «Остоженка», представляет собой многофункциональный комплекс c современной и комфортной инфраструктурой, состоящий из монолитного корпуса переменной этажностью 2-17-21 этажей. Сроки строительства: III кв. 2027 г. Кол-во квартир - 1913. Площадь коммерческих помещений - 845 м2

Технические характеристики:
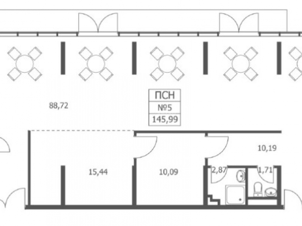
Площадь - 278.7м2, 1 этаж, отдельный вход. Электричество 35 кВт Высота потолка 2.5м-3м.

Коммерческие условия:
Стоимость - 90 000 000 рублей;
Стоимость за м2 - 323 426,89 рублей
Арендатор: Сеть Магнит
МАП - 974 000 рублей
ГАП - 11 688 000 рублей
ТО - 5%
ДДУ

Технические характеристики

Тип здания: Арендный бизнес,С отдельным входом,Торговая

Общая площадь: 278.7  м2

Этаж: 1

Всего этажей: 22

Электрическая мощность: 35кВт

Высота потолков: 2.5-3м

Парковка: -

Коммерческие условия

Цена за все: 90 000 000 RUB

ФОРМА ВЛАДЕНИЯ: УСН

Общий МАП: 974 000 RUB (данный МАП является минимальным, при оптимизации арендаторов арендный поток можно значительно увеличить)

Общий ГАП: 11 688 000 RUB

Окупаемость: 7.8 лет

Доходность: 12.90%

карта

Расположение

Адрес: Люберцы, Волковская улица, 67

Округ: Юго-Восточный административный округ

Близость метро: Жулебино

Транспортная доступность: -

Окружение

Торговое окружение: -

Адрес:

Люберцы, Волковская улица, 67

Округ:

Юго-Восточный административный округ

Близость метро:

Жулебино

Транспортная доступность:

-

карта

Торговое окружение:

-

Общая площадь:

278.7  м2

Этаж:

1

Всего этажей:

22

Тип:

Арендный бизнес,С отдельным входом,Торговая

Электрическая мощность:

35кВт

Высота потолков:

2.5-3м

Парковка:

-

ФОРМА ВЛАДЕНИЯ:

УСН

Цена за все:

90 000 000 RUB

Общий МАП: 974 000

(данный МАП является минимальным, при оптимизации арендаторов арендный поток можно значительно увеличить)

Общий ГАП:

11 688 000

Окупаемость:

7.8 лет

Доходность:

12.90%

Планировка

Назарова Олеся

Ваш брокер по работе с клиентами

Найдите лучшее место
для жизни, бизнеса, инвестиций

Оставьте свои контакты — с вами свяжется руководитель отдела для презентации нужного вам объекта

Похожие объекты