Id 157109

Москва, Рязанский проспект, ЖК Аквилон Beside 2.0 - 88.25кв.м / Продажа ПСН

адрес Москва, Рязанский проспект, 2с25

С отдельным входом
Торговая

45 854 687 RUB | за все

(за 1 м2 — 519 306 RUB)

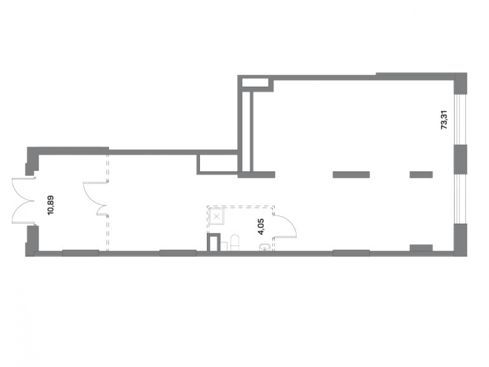
площадь 88.3 м2

QR код Qr код

Предлагается в продажу торговое помещение в ЖК Аквилон Beside 2.0 по адресу: Рязанский проспект, земельный участок 2/25, в 10 мин. ходьбы от метро/МЦК/D4 Нижегородская. Первая линия от дублера Рязанского проспекта. Комплекс состоит из одного 29ти этажного дома с девятью секциями на 1 106 квартир. Одной из главных особенностей этого района является его транспортная доступность. Крупный транспортно-пересадочный узел включает Некрасовскую и Большую кольцевую ветки метро, МЦК, Московскую железную дорогу, пересечение главных автомобильных магистралей. Это позволяет быстро и комфортно добраться до любой точки города. Торговое окружение: ТЦ «Город», «Лемана Про», АвтоГЕРМЕС Chery, аптека, БЦ Карачарово.

Срок ввода в эксплуатацию - 2 кв. 2027 г., срок передачи ключей 4 кв. 2027 г.

Технические характеристики: общая площадь 88.25 кв.м. • первый этаж жилого 12 этажного дома • электроэнергия 0.2кВт/м2. • отдельный 1 вход • без отделки • потолки 4 метра • центральные коммуникации • витринные окна • первая линия.

Коммерческие условия:
• Стоимость 45 854 687 рублей
• Стоимость кв.м. 519 600 рублей
• Продажа по ДДУ от юр.лица
• Возможна рассрочка, ПВ 50%, остаток ежемесячно на 12 мес.

Технические характеристики

Тип здания: С отдельным входом,Торговая

Общая площадь: 88.3  м2

Этаж: 1

Всего этажей: 12

Электрическая мощность: 0.2 кВт на м2

Высота потолков:

Парковка: открытая, общая

Коммерческие условия

Цена за все: 45 854 687 RUB

ФОРМА ВЛАДЕНИЯ: переуступка

карта

Расположение

Адрес: Москва, Рязанский проспект, 2с25

Округ: Юго-Восточный административный округ

Близость метро: Нижегородская,Стахановская

Транспортная доступность: Ближайшие станции метро: Нижегородская – 10 мин. пешком, Стахановская – 12 мин. пешком.

Окружение

Торговое окружение: --

Адрес:

Москва, Рязанский проспект, 2с25

Округ:

Юго-Восточный административный округ

Близость метро:

Нижегородская,Стахановская

Транспортная доступность:

Ближайшие станции метро: Нижегородская – 10 мин. пешком, Стахановская – 12 мин. пешком.

карта

Торговое окружение:

--

Общая площадь:

88.3  м2

Этаж:

1

Всего этажей:

12

Тип:

С отдельным входом,Торговая

Электрическая мощность:

0.2 кВт на м2

Высота потолков:

Парковка:

открытая, общая

ФОРМА ВЛАДЕНИЯ:

переуступка

Цена за все:

45 854 687 RUB

Планировка

Никифоров Андрей

Ваш брокер по работе с клиентами

Найдите лучшее место
для жизни, бизнеса, инвестиций

Оставьте свои контакты — с вами свяжется руководитель отдела для презентации нужного вам объекта

Похожие объекты