Id 156780

Москва, ул. Золоторожский Вал, ЖК «Rise» /100 м²/Продажа торговой площади

адрес Москва, ЖК Стоун Райз

С отдельным входом

95 000 000 RUB | за все

(за 1 м2 — 950 000 RUB)

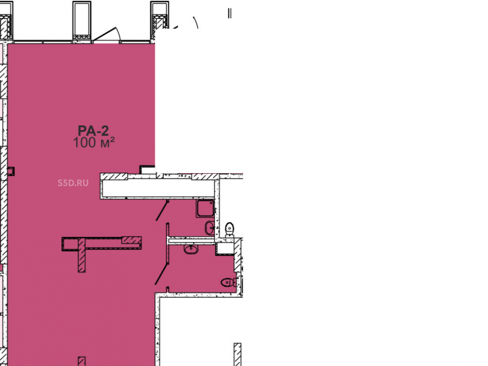
площадь 100.0 м2

QR код Qr код

Продажа торговой площади в ЖК Бизнес+
-Высокий пешеходный трафик
-Расположение вблизи бизнес-центра класса А на 6,5 тысяч сотрудников
-рядом м. Римская, Площадь Ильича, МЦД , ТПУ «Серп и Молот»,
- в окружении крупных ЖК численность более 20 тысяч жителей.
Ограниченный объем предложения !

Торговое окружение:
На первых этажах комплекса будут расположены кафе, магазины, фитнес-студия и другие сервисные объекты.

Технические характеристики:
Потолки 4.4 м.
Современная инженерия.
Приточно-вытяжная система вентиляции.
Центральная система кондиционирования.
Готовность — 2028 г.

Коммерческие условия:
Стоимость продажи: 95 000 000 руб.
Стоимость м2: 950 000 руб.
НДС 20% возврат сразу по ДКПБВ до окончания строительства
Рассрочка 0% до окончания строительства

Технические характеристики

Тип здания: С отдельным входом

Общая площадь: 100  м2

Этаж: 1

Всего этажей: 14

Электрическая мощность: 13.84

Высота потолков: 3.6

Парковка: на улице

Коммерческие условия

Цена за все: 95 000 000 RUB

ФОРМА ВЛАДЕНИЯ: собственность

карта

Расположение

Адрес: Москва, ЖК Стоун Райз

Округ: Центральный административный округ

Близость метро: Серп и Молот

Транспортная доступность: метро Филатов луг

Окружение

Торговое окружение: кофейни, фитнесс,суши,детский бассейн, апартаменты, кафе вьетнамской кухни.

Адрес:

Москва, ЖК Стоун Райз

Округ:

Центральный административный округ

Близость метро:

Серп и Молот

Транспортная доступность:

метро Филатов луг

карта

Торговое окружение:

кофейни, фитнесс,суши,детский бассейн, апартаменты, кафе вьетнамской кухни.

Общая площадь:

100  м2

Этаж:

1

Всего этажей:

14

Тип:

С отдельным входом

Электрическая мощность:

13.84

Высота потолков:

3.6

Парковка:

на улице

ФОРМА ВЛАДЕНИЯ:

собственность

Цена за все:

95 000 000 RUB

Планировка

Олеся Шайхисламова

Ваш брокер по работе с клиентами

Найдите лучшее место
для жизни, бизнеса, инвестиций

Оставьте свои контакты — с вами свяжется руководитель отдела для презентации нужного вам объекта

Похожие объекты