Id 155781

Москва, Щелковское шоссе, дом 79, корп. 1 - 1064,7 кв. м. / Продажа помещения с арендатором “Магнит“

адрес Москва, Щёлковское шоссе, 79к1

Арендный бизнес
С отдельным входом
Торговая
Общепит

Окупаемость: 10.6 лет

Доходность:9.45%

246 650 000 RUB | за все

(за 1 м2 — 231 662 RUB)

площадь 1 064.7 м2

QR код Qr код

Продажа помещения с федеральным, сетевым арендатором “Магнит и Яндекс”, расположенного по адресу: Москва, Щелковское шоссе, 79, корп. 1.
Объект недвижимости расположен в густонаселенном, сформированном жилом районе. Первая линия домов по Щёлковскому шоссе.
Напротив жилого дома располагается пешеходный переход, а непосредственно у помещения проходит народная тропа от метро и остановок общественного транспорта.
Помещение в прямой видимости с Щелковского шоссе с интенсивным автомобильным трафиком.
Ближайшая станция метро: Щелковская расположена в 500 метрах.

Торговое окружение:
ТРЦ "Щелковский", Дикси, кофейни, салоны красоты. Рядом школы и детские сады.
Соседи дверь в дверь, которые генерируют трафик: Салон красоты, кибер клуб, общепит.

Технические характеристики:
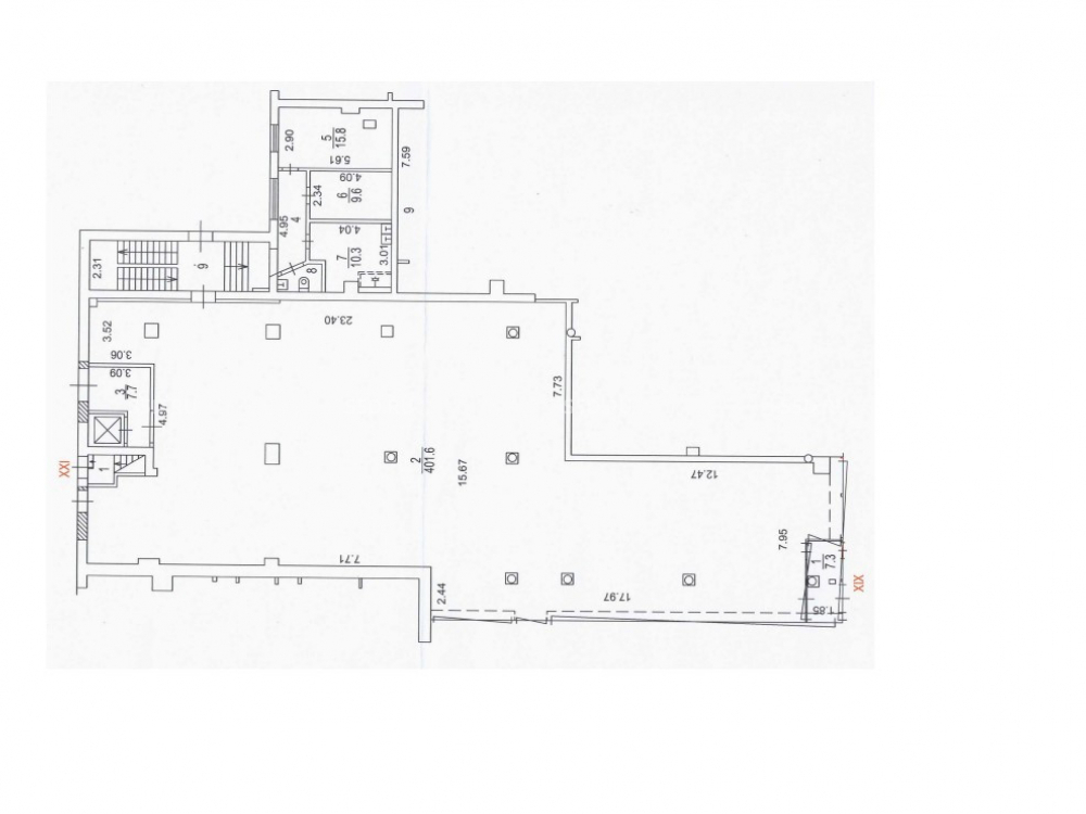
Угловое помещение во встроенно-пристроенной части жилого дома. Общая площадь 1064,7 кв.м. в двух уровнях (- 1 этаж – 570,8 кв.м. 1 этаж – 493,9 кв.м.).
5 входных групп.
Высота потолков: 3,45м.
Витринное остекление по периметру.
Земля в собственности.
Парковка городская.
Кол-во выделенной мощности: 73 кВт.

Коммерческие условия:
Цена продажи: 246 650 000 руб.
Стоимость кв.м.: 231 661 руб.
Арендатор: “Магнит, Яндекс” совокупный МАП: 1 979 950 руб. ГАП: 23 759 400 руб.
Окупаемость: 10,5 лет.

Продажа ДКПн.

Технические характеристики

Тип здания: Арендный бизнес,С отдельным входом,Торговая,Общепит

Общая площадь: 1064.7  м2

Этаж: 1

Всего этажей: 1

Электрическая мощность: 73 кВт

Высота потолков: -

Парковка: есть

Коммерческие условия

Цена за все: 246 650 000 RUB

ФОРМА ВЛАДЕНИЯ: Юр.лицо

Общий МАП: 1 957 500 RUB (данный МАП является минимальным, при оптимизации арендаторов арендный поток можно значительно увеличить)

Общий ГАП: 23 490 000 RUB

Окупаемость: 10.6 лет

Доходность: 9.45%

карта

Расположение

Адрес: Москва, Щёлковское шоссе, 79к1

Округ: Восточный административный округ

Близость метро: Щёлковская

Транспортная доступность: Ближайшая станция метро: Щелковская, 630 метров.

Окружение

Торговое окружение: ТРЦ

Адрес:

Москва, Щёлковское шоссе, 79к1

Округ:

Восточный административный округ

Близость метро:

Щёлковская

Транспортная доступность:

Ближайшая станция метро: Щелковская, 630 метров.

карта

Торговое окружение:

ТРЦ

Общая площадь:

1064.7  м2

Этаж:

1

Всего этажей:

1

Тип:

Арендный бизнес,С отдельным входом,Торговая,Общепит

Электрическая мощность:

73 кВт

Высота потолков:

-

Парковка:

есть

ФОРМА ВЛАДЕНИЯ:

Юр.лицо

Цена за все:

246 650 000 RUB

Общий МАП: 1 957 500

(данный МАП является минимальным, при оптимизации арендаторов арендный поток можно значительно увеличить)

Общий ГАП:

23 490 000

Окупаемость:

10.6 лет

Доходность:

9.45%

Планировка

Шорин Владимир

Ваш брокер по работе с клиентами

Найдите лучшее место
для жизни, бизнеса, инвестиций

Оставьте свои контакты — с вами свяжется руководитель отдела для презентации нужного вам объекта

Похожие объекты