Id 155488

Сигнальный проезд, вл. 12 / 84,б м² / Продажа ПСН

адрес Москва, Сигнальный проезд, 12

Многофункциональный
С отдельным входом
Торговая

40 373 235 RUB | за все

(за 1 м2 — 477 225 RUB)

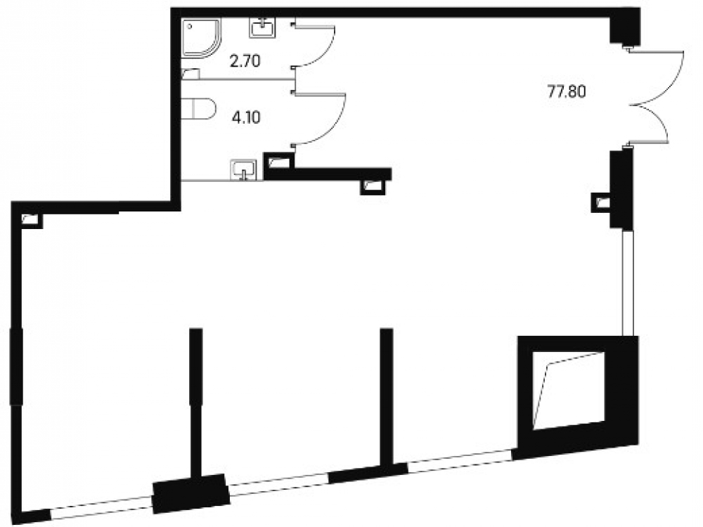
площадь 84.6 м2

QR код Qr код

Продажа ПСН 84.6 м² по адресу: СВАО, район Отрадное, Сигнальный проезд, владение 12. Благодаря высокой загрузке апарт-отеля и большой численности жителей, бизнес будет обеспечен постоянным потоком клиентов. В комплексе будет 941 апартамент для постоянного проживания и 4-звездочный апарт-отель с 758 номерами. Регулярный спрос на товары и услуги среди резидентов гарантирует стабильность. Расположение в шаговой близости к оживленной станции метро "Владыкино" - 1 мин., на первой линии Сигнального проезда обеспечит дополнительную непрерывную посещаемость. Район активно развивается, что повышает ликвидность помещения и дает потенциал роста стоимости.

Технические характеристики:
Первый этаж торговой галереи 23-этажного комплекса апартаментов. Площадь: 84.6 м², состояние отделки: shell&core, отдельный вход, 3,2 метра витринные окна, 4.2 метра высота потолков, системы приточно-вытяжной вентиляции, внутрипольные конвекторы со встроенными в корпус терморегуляторами, в каждом помещении предусмотрены вводы ХВС/ГВС и стояк канализации, предусмотрено место для установки вывески
на фасаде.

Коммерческие условия:
Стоимость за все - 40 373 235 рублей.
Стоимость за 1 м² - 477 225 рублей.
Форма сделки: ДДУ.
Сдача до IV кв. 2026 г.

Технические характеристики

Тип здания: Многофункциональный,С отдельным входом,Торговая

Общая площадь: 84.6  м2

Этаж: 1

Всего этажей: 23

Электрическая мощность: 20-25 кВт с возможностью увеличения

Высота потолков: 4.2 метра

Парковка: Напротив помещения парковка

Коммерческие условия

Цена за все: 40 373 235 RUB

ФОРМА ВЛАДЕНИЯ: УСН

карта

Расположение

Адрес: Москва, Сигнальный проезд, 12

Округ: Северный административный округ

Близость метро: Владыкино (Серпуховско-Тимирязевская)

Транспортная доступность: на МСД, СЗХ, пересечение с Алтуфьевским Шоссе, 400 м до м. Владыкино

Окружение

Торговое окружение: -

Адрес:

Москва, Сигнальный проезд, 12

Округ:

Северный административный округ

Близость метро:

Владыкино (Серпуховско-Тимирязевская)

Транспортная доступность:

на МСД, СЗХ, пересечение с Алтуфьевским Шоссе, 400 м до м. Владыкино

карта

Торговое окружение:

-

Общая площадь:

84.6  м2

Этаж:

1

Всего этажей:

23

Тип:

Многофункциональный,С отдельным входом,Торговая

Электрическая мощность:

20-25 кВт с возможностью увеличения

Высота потолков:

4.2 метра

Парковка:

Напротив помещения парковка

ФОРМА ВЛАДЕНИЯ:

УСН

Цена за все:

40 373 235 RUB

Планировка

Шаклеина Юлия

Ваш брокер по работе с клиентами

Найдите лучшее место
для жизни, бизнеса, инвестиций

Оставьте свои контакты — с вами свяжется руководитель отдела для презентации нужного вам объекта

Похожие объекты