Id 155319

Автомобильный проезд, 4 - 598.4 кв. м. - Продажа / Торговое помещение (ПСН)

адрес Москва, Автомобильный проезд, 4

Многофункциональный
С отдельным входом
Торговая
Жилой комплекс (мфк)
Новостройка

226 994 064 RUB | за все

(за 1 м2 — 379 335 RUB)

площадь 598.4 м2

QR код Qr код

Продажа помещения свободного назначения в апарт – комплексе бизнес-класса N`ICE LOFT по адресу: г. Москва, Автомобильный проезд, 4.

Ближайшие станции метро: Волгоградский проспект – 10 мин. транспортом, ст. Калитники (линия D2) – 8 мин. ходьбы. За 10 минут на машине можно добраться до Садового Кольца, за 6 мин. на машине до Таганского парка.

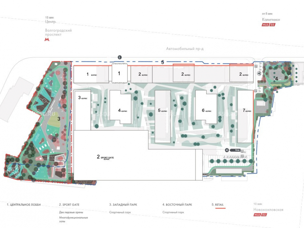
N`ICE LOFT – комплекс апартаментов бизнес-класса на границе Таганского и Нижегородского районов Москвы. Помимо жилых корпусов на территории построены полноценные спортивные зоны и ледовые арены.
Комплекс состоит из 7 корпусов, в которые входят 2240 апартаментов. Территория площадью 2,7 га создана по всем современным законам урбанистики и направлена на максимальный инфраструктурный комфорт резидентов. Продуманная среда обеспечит не только непрерывный процесс циркуляции клиентских потоков внутри комплекса, но и станет точкой притяжении 3 соседствующих районов численность которых составляет 280 тыс. человек. 15 000 жителей проживает в радиусе 1,5 км. Стабильный пешеходный трафик.

Корпус сдан.

Торговое окружение:
Рядом расположены пиццерия Фигаро, магазин белья и купальников Би Ангел корсет, музыкальный магазин Allb Music, столовая Еда по-домашнему, магазин галантереи и аксессуаров Оптекс-Рус, магазин мебели, кафе, магазин чая Altai herb, супермаркет Перекресток, магазин продуктов Торговый Дом Лабаз.

Технические характеристики:
Общая площадь помещения – 598.4 кв. м., 1 этаж. 2 отдельных входных группы. Витринные окна. Высокие потолки. Электрическая мощность – 115 кВт. Центральные коммуникации (ГВС / ХВС, канализация, отопление).

Коммерческие условия:
Стоимость объекта – 226 994 064 рублей.
Стоимость за 1 кв. м. – 379 335 рублей.

Технические характеристики

Тип здания: Многофункциональный,С отдельным входом,Торговая,Жилой комплекс (мфк),Новостройка

Общая площадь: 598.4  м2

Этаж: 1

Всего этажей: 21

Электрическая мощность: 115 кВт

Высота потолков: 4,5 м

Парковка: Подземная

Коммерческие условия

Цена за все: 226 994 064 RUB

ФОРМА ВЛАДЕНИЯ: -

карта

Расположение

Адрес: Москва, Автомобильный проезд, 4

Округ: Юго-Восточный административный округ

Близость метро: Волгоградский проспект,Калитники

Транспортная доступность: Ближайшие станции метро: Волгоградский проспект – 10 мин. транспортом, ст. Калитники (линия D2) – 8 мин. ходьбы. За 10 минут на машине можно добраться до Садового Кольца, за 6 мин. на машине до Таганского парка.

Окружение

Торговое окружение: Рядом расположены пиццерия Фигаро, магазин белья и купальников Би Ангел корсет, музыкальный магазин Allb Music, столовая Еда по-домашнему, магазин галантереи и аксессуаров Оптекс-Рус, магазин мебели, кафе, магазин чая Altai herb, супермаркет Перекресток,

Адрес:

Москва, Автомобильный проезд, 4

Округ:

Юго-Восточный административный округ

Близость метро:

Волгоградский проспект,Калитники

Транспортная доступность:

Ближайшие станции метро: Волгоградский проспект – 10 мин. транспортом, ст. Калитники (линия D2) – 8 мин. ходьбы. За 10 минут на машине можно добраться до Садового Кольца, за 6 мин. на машине до Таганского парка.

карта

Торговое окружение:

Рядом расположены пиццерия Фигаро, магазин белья и купальников Би Ангел корсет, музыкальный магазин Allb Music, столовая Еда по-домашнему, магазин галантереи и аксессуаров Оптекс-Рус, магазин мебели, кафе, магазин чая Altai herb, супермаркет Перекресток,

Общая площадь:

598.4  м2

Этаж:

1

Всего этажей:

21

Тип:

Многофункциональный,С отдельным входом,Торговая,Жилой комплекс (мфк),Новостройка

Электрическая мощность:

115 кВт

Высота потолков:

4,5 м

Парковка:

Подземная

ФОРМА ВЛАДЕНИЯ:

-

Цена за все:

226 994 064 RUB

Планировка

Шорин Владимир

Ваш брокер по работе с клиентами

Найдите лучшее место
для жизни, бизнеса, инвестиций

Оставьте свои контакты — с вами свяжется руководитель отдела для презентации нужного вам объекта

Похожие объекты