Id 152705

ЖК Аквилон Beside 2.0, Рязанский проспект/ 91,87 кв.м./ продажа ПСН в новостройке

адрес жилой комплекс Аквилон Бисайд 2.0, Рязанский проспект

С отдельным входом
Торговая
Жилой комплекс (мфк)
Новостройка

47 700 719 RUB | за все

(за 1 м2 — 519 050 RUB)

площадь 91.9 м2

QR код Qr код

Предлагается в продажу торговое помещение в ЖК Аквилон Beside 2.0 по адресу: Москва, Рязанский проспект, 2/25, в 10 мин. ходьбы от метро/МЦК/D4 Нижегородская. Первая линия от дублера Рязанского проспекта. Комплекс состоит из одного 29ти этажного дома с девятью секциями на 1 106 квартир. Одной из главных особенностей этого района является его транспортная доступность. Крупный транспортно-пересадочный узел включает Некрасовскую и Большую кольцевую ветки метро, МЦК, Московскую железную дорогу, пересечение главных автомобильных магистралей. Это позволяет быстро и комфортно добраться до любой точки города. Торговое окружение: ТЦ «Город», «Лемана Про», АвтоГЕРМЕС Chery, аптека, БЦ Карачарово.

Срок ввода в эксплуатацию - 2 кв. 2027 г., срок передачи ключей 4 кв. 2027 г.

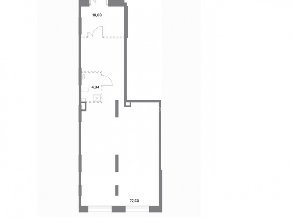
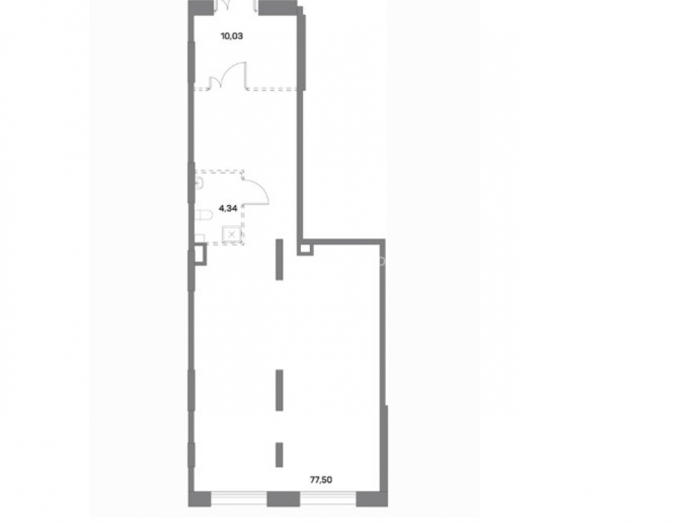
Технические характеристики: общая площадь 91,87 кв.м. • первый этаж жилого 14 этажного дома • электроэнергия 14,69 кВт. • отдельный 1 вход • без отделки • потолки 4 метра • центральные коммуникации • витринные окна • первая линия.

Коммерческие условия:
• Стоимость 47 700 719 рублей
• Стоимость кв.м. 519 220 рублей
• Продажа по договору от юр.лица
• Возможна рассрочка, первый взнос 50%, остаток ежемесячно на 12 мес.

Технические характеристики

Тип здания: С отдельным входом,Торговая,Жилой комплекс (мфк),Новостройка

Общая площадь: 91.9  м2

Этаж: 1

Всего этажей: 14

Электрическая мощность: 14,69 кВт

Высота потолков: 4

Парковка: наземная/подземная

Коммерческие условия

Цена за все: 47 700 719 RUB

ФОРМА ВЛАДЕНИЯ: ДДУ

карта

Расположение

Адрес: жилой комплекс Аквилон Бисайд 2.0, Рязанский проспект

Округ: Юго-Восточный административный округ

Близость метро: Нижегородская,Стахановская

Транспортная доступность: 10 мин. тр. до МЦД Одинцово, Сколково; 25 мин. тр. до м. Славянский б-р

Окружение

Торговое окружение: жилой массив

Адрес:

жилой комплекс Аквилон Бисайд 2.0, Рязанский проспект

Округ:

Юго-Восточный административный округ

Близость метро:

Нижегородская,Стахановская

Транспортная доступность:

10 мин. тр. до МЦД Одинцово, Сколково; 25 мин. тр. до м. Славянский б-р

карта

Торговое окружение:

жилой массив

Общая площадь:

91.9  м2

Этаж:

1

Всего этажей:

14

Тип:

С отдельным входом,Торговая,Жилой комплекс (мфк),Новостройка

Электрическая мощность:

14,69 кВт

Высота потолков:

4

Парковка:

наземная/подземная

ФОРМА ВЛАДЕНИЯ:

ДДУ

Цена за все:

47 700 719 RUB

Планировка

Никифоров Андрей

Ваш брокер по работе с клиентами

Найдите лучшее место
для жизни, бизнеса, инвестиций

Оставьте свои контакты — с вами свяжется руководитель отдела для презентации нужного вам объекта

Похожие объекты