Id 152519

Мантулинская дом 12 п. 2/ - 219 кв.м. / Продажа торгового помещения с арендатором Самокат

адрес Мантулинская дом 12 п.2

С отдельным входом
Торговая

65 000 000 RUB | за все

(за 1 м2 — 296 804 RUB)

площадь 219.0 м2

QR код Qr код

Продажа торгового помещения с арендатором в Пресненском районе Москвы.
5-10 минут от метро Деловой центр и ул.1905 года.
Сложившийся жилой район, интенсивный пешеходный трахик.

Технические характеристики:
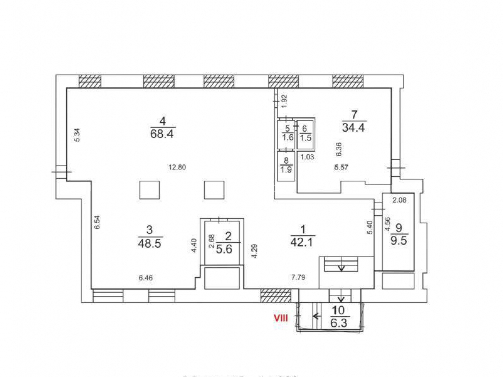
Площадь 219 кв.м.
Подвал высокий с окнами.
Высота потолков 2,7 метра .
Мощность 52 кВ.
Первая линия, отдельная входная группа.
Вход со двора.

Коммерческие условия:
Арендатор Самокат, договор на 5 лет (индексация с третьего года 6%).
МАП - 650 000 руб.
ГАП - 7 800 000 руб.

Стоимость объекта: 65 000 000 руб.
Стоимость за кв.м. 296 803,6 руб.

Окупаемость: 8,3 года.

Технические характеристики

Тип здания: С отдельным входом,Торговая

Общая площадь: 219  м2

Этаж: -1

Всего этажей: 5

Электрическая мощность: 52 кВт

Высота потолков: 2,7 м

Парковка: стихийная

Коммерческие условия

Цена за все: 65 000 000 RUB

ФОРМА ВЛАДЕНИЯ: -

карта

Расположение

Адрес: Мантулинская дом 12 п.2

Округ: Центральный административный округ

Близость метро: Улица 1905 года

Транспортная доступность: 5-10 минут от метро Деловой центр и ул.1905 года.

Окружение

Торговое окружение: сложившееся

Адрес:

Мантулинская дом 12 п.2

Округ:

Центральный административный округ

Близость метро:

Улица 1905 года

Транспортная доступность:

5-10 минут от метро Деловой центр и ул.1905 года.

карта

Торговое окружение:

сложившееся

Общая площадь:

219  м2

Этаж:

-1

Всего этажей:

5

Тип:

С отдельным входом,Торговая

Электрическая мощность:

52 кВт

Высота потолков:

2,7 м

Парковка:

стихийная

ФОРМА ВЛАДЕНИЯ:

-

Цена за все:

65 000 000 RUB

Планировка

Шагитов Марат

Ваш брокер по работе с клиентами

Найдите лучшее место
для жизни, бизнеса, инвестиций

Оставьте свои контакты — с вами свяжется руководитель отдела для презентации нужного вам объекта

Похожие объекты