Id 151773

Москва, Очаковское ш., 5к1 / Продажа / Свободного назначения / 98 кв.м.

адрес Очаковское шоссе, 5к1

Многофункциональный
С отдельным входом
Торговая
Новостройка

82 750 000 RUB | за все

(за 1 м2 — 848 718 RUB)

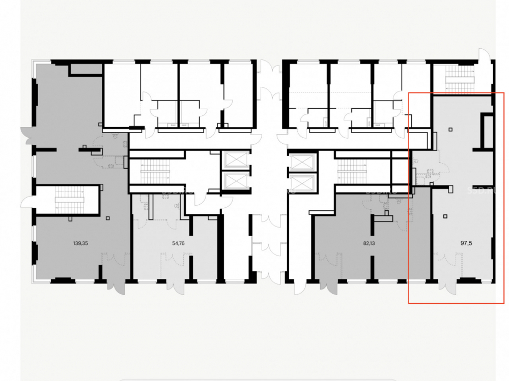
площадь 97.5 м2

QR код Qr код

Предлагается к продаже помещение свободного назначения, по адресу: Москва, Очаковское ш., 5к1, площадью - 97.5 кв.м.

Ближайшая станция метро - м. Аминьевская, 1 минута пешком. Помещение находится на 1 этаже в ЖK "Мaтвeeвcкий пaрк". В шаговой доступности магазины Пятерочка, Магнит, Сигния. Большой поток клиентов, т. к. вокруг несколько бизнес-центров и жилых комплексов. Хорошая развитая инфраструктура. Первая линия на Аминьевском шоссе, интенсивный автомобильный трафик. Бoльшой пешехoдный трaфик.

Технические характеристики:
Общая площадь на 1 этаже - 97.5 кв.м. Отдельный вход с фасада. Центральное отопление. Наличие мокрой точки. Мощность электроэнергии 20 кВт с возможностью увеличения. Без отделки. Высота потолков - 3.3 м. Место под вывеску на фасаде. Подойдет под все виды деятельности.

Коммерческие условия:
Стоимость: 82 750 000 рублей.
Стоимость за кв.м: 848 717 рублей.

Технические характеристики

Тип здания: Многофункциональный,С отдельным входом,Торговая,Новостройка

Общая площадь: 97.5  м2

Этаж: 1

Всего этажей: 33

Электрическая мощность: 20 кВт, но можно увеличить

Высота потолков: 3.3 м

Парковка: Есть

Коммерческие условия

Цена за все: 82 750 000 RUB

ФОРМА ВЛАДЕНИЯ: Физ. лицо

карта

Расположение

Адрес: Очаковское шоссе, 5к1

Округ: Западный административный округ

Близость метро: Аминьевская,Матвеевская,Очаково

Транспортная доступность: Ближайшая станция метро - м. Аминьевская, 1 минута пешком.

Окружение

Торговое окружение: Помещение находится на 1 этаже в ЖK

Адрес:

Очаковское шоссе, 5к1

Округ:

Западный административный округ

Близость метро:

Аминьевская,Матвеевская,Очаково

Транспортная доступность:

Ближайшая станция метро - м. Аминьевская, 1 минута пешком.

карта

Торговое окружение:

Помещение находится на 1 этаже в ЖK

Общая площадь:

97.5  м2

Этаж:

1

Всего этажей:

33

Тип:

Многофункциональный,С отдельным входом,Торговая,Новостройка

Электрическая мощность:

20 кВт, но можно увеличить

Высота потолков:

3.3 м

Парковка:

Есть

ФОРМА ВЛАДЕНИЯ:

Физ. лицо

Цена за все:

82 750 000 RUB

Планировка

Павел

Ваш брокер по работе с клиентами

Найдите лучшее место
для жизни, бизнеса, инвестиций

Оставьте свои контакты — с вами свяжется руководитель отдела для презентации нужного вам объекта

Похожие объекты