Id 146511

Жулебинский бульвар, 14 - 174,4 кв.м / Продажа ГАБ с КБ и Сушишоп

адрес Москва, Жулебинский бульвар, 14

Арендный бизнес
Торговая

Окупаемость: 11.3 лет

Доходность:8.82%

52 990 000 RUB | за все

(за 1 м2 — 303 842 RUB)

площадь 174.4 м2

QR код Qr код

В продажу предлагается помещение свободного назначения с арендаторами КБ и Сушишоп, по адресу: г. Москва, Жулебинский бульвар, 14
Первая линия домов, до метро Лермонтовский проспект 5 минут пешком. Плотный жилой массив, развитое торговое окружение: Пятерочка, Бристоль, ДоДо-пицца, Азбука вкуса, аптеки, пункты выдачи, салоны красоты, Детский мир и др.

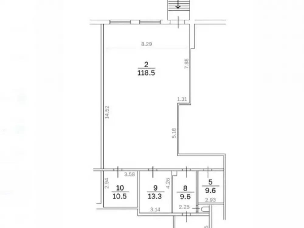
Технические характеристики: Площадь - 174,4 кв.м, 1й этаж пристроенная часть жилого дома. Отдельный вход, открытая планировка, высота потолков - 3,3 м. Центральные коммуникации, размещение вывески на фасаде. Парковка по фасаду здания.

Коммерческие условия:
Стоимость - 52 990 000 рублей
Стоимость за кв.м - 303 842 рубля
Арендатор 1 - КБ, ДДА 10 лет, МАП 260 000 рублей, ГАП 3 120 000 рублей
Арендатор 2 - 40м2 СУШИШОП, МАП – 130K/мес. + коммуналка + индексация 7%
Совокупный общий МАП 390 000 рублей, Совокупный общий ГАП 4 680 000 рублей
Окупаемость 11,3 лет
Продажа по ДКП от физ лица

Технические характеристики

Тип здания: Арендный бизнес,Торговая

Общая площадь: 174.4  м2

Этаж: 1

Всего этажей: 14

Электрическая мощность: по запросу

Высота потолков: 3 м

Парковка: Стихийная

Коммерческие условия

Цена за все: 52 990 000 RUB

ФОРМА ВЛАДЕНИЯ: в собственности

Общий МАП: 390 000 RUB (данный МАП является минимальным, при оптимизации арендаторов арендный поток можно значительно увеличить)

Общий ГАП: 4 680 000 RUB

Окупаемость: 11.3 лет

Доходность: 8.82%

карта

Расположение

Адрес: Москва, Жулебинский бульвар, 14

Округ: Юго-Восточный административный округ

Близость метро: Лермонтовский проспект

Транспортная доступность: до метро Лермонтовский проспект 5 минут пешком.

Окружение

Торговое окружение: Развитая инфраструктура

Адрес:

Москва, Жулебинский бульвар, 14

Округ:

Юго-Восточный административный округ

Близость метро:

Лермонтовский проспект

Транспортная доступность:

до метро Лермонтовский проспект 5 минут пешком.

карта

Торговое окружение:

Развитая инфраструктура

Общая площадь:

174.4  м2

Этаж:

1

Всего этажей:

14

Тип:

Арендный бизнес,Торговая

Электрическая мощность:

по запросу

Высота потолков:

3 м

Парковка:

Стихийная

ФОРМА ВЛАДЕНИЯ:

в собственности

Цена за все:

52 990 000 RUB

Общий МАП: 390 000

(данный МАП является минимальным, при оптимизации арендаторов арендный поток можно значительно увеличить)

Общий ГАП:

4 680 000

Окупаемость:

11.3 лет

Доходность:

8.82%

Олег Байкин

Ваш брокер по работе с клиентами

Найдите лучшее место
для жизни, бизнеса, инвестиций

Оставьте свои контакты — с вами свяжется руководитель отдела для презентации нужного вам объекта

Похожие объекты