Id 145917

г. Москва, ЮЗАО, Старокалужское шоссе, д. 62 - 527,8 м2 / Продажа готового арендного бизнеса с арендатором Ozon (даркстор)

адрес Москва, Старокалужское шоссе, д. 62

Арендный бизнес
Многофункциональный
С отдельным входом

Окупаемость: 7.6 лет

Доходность:13.19%

136 000 000 RUB | за все

(за 1 м2 — 257 673 RUB)

площадь 527.8 м2

QR код Qr код

Предлагается к продаже готовый арендный бизнес с арендатором OZON (даркстор), расположенный на первом этаже БЦ«ВАЛЛЕКС» , по адресу ЮЗАО, Старокалужское шоссе, д. 62, общей площадью 551,7 м2. БЦ «ВАЛЛЕКС» находится в 1 минуте пешком от станции метро Воронцовская. 1 этаж с ул. Власова.
В непосредственной близости от объекта заканчивается строительство огромного жилого массива.

Технические характеристики:
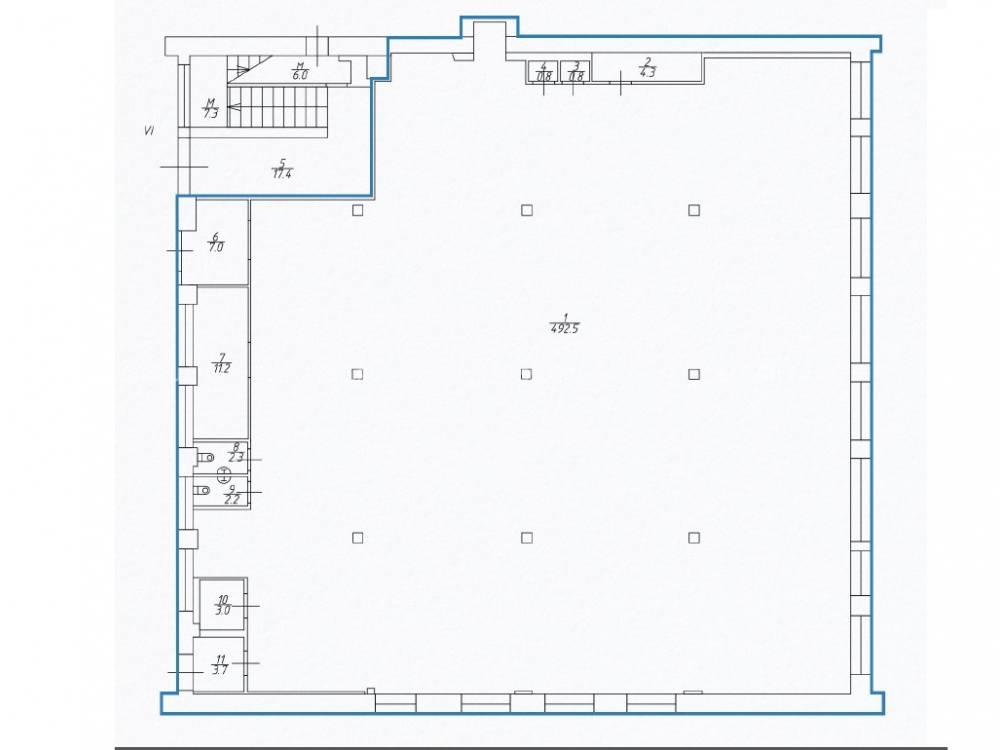
Общая площадь - 527,8 м2 (первый этаж). Высота потолков - 3 м. Большие окна по фасаду, большая наземная охраняемая парковка у помещения, две мокрые точки, зона погрузки/разгрузки, Парковка наземная, круглосуточно охраняемая с пропускной системой.

Коммерческие условия:
Стоимость продажи - 136 000 000 рублей.
Стоимость квадратного метра - 257'673рублей.
Арендатор: Ozon (даркстор)
МАП - 1 500 000 рублей,
ГАП - 18 000 000 рублей
Договор (5 лет, от 31.01.24) - до 2029 г. Индексация - 7%
Окупаемость: 7,5 лет
Форма сделки - ДКПН (УСН)

Технические характеристики

Тип здания: Арендный бизнес,Многофункциональный,С отдельным входом

Общая площадь: 527.8  м2

Этаж: 1

Всего этажей: 2

Электрическая мощность: --

Высота потолков: 3

Парковка: большая наземная охраняемая парковка у помещения

Коммерческие условия

Цена за все: 136 000 000 RUB

ФОРМА ВЛАДЕНИЯ: собственность

Общий МАП: 1 500 000 RUB (данный МАП является минимальным, при оптимизации арендаторов арендный поток можно значительно увеличить)

Общий ГАП: 18 000 000 RUB

Окупаемость: 7.6 лет

Доходность: 13.19%

карта

Расположение

Адрес: Москва, Старокалужское шоссе, д. 62

Округ: Юго-Западный административный округ

Близость метро: Воронцовская,Калужская

Транспортная доступность: хорошая

Окружение

Торговое окружение: РБК, отель, кафейня

Адрес:

Москва, Старокалужское шоссе, д. 62

Округ:

Юго-Западный административный округ

Близость метро:

Воронцовская,Калужская

Транспортная доступность:

хорошая

карта

Торговое окружение:

РБК, отель, кафейня

Общая площадь:

527.8  м2

Этаж:

1

Всего этажей:

2

Тип:

Арендный бизнес,Многофункциональный,С отдельным входом

Электрическая мощность:

--

Высота потолков:

3

Парковка:

большая наземная охраняемая парковка у помещения

ФОРМА ВЛАДЕНИЯ:

собственность

Цена за все:

136 000 000 RUB

Общий МАП: 1 500 000

(данный МАП является минимальным, при оптимизации арендаторов арендный поток можно значительно увеличить)

Общий ГАП:

18 000 000

Окупаемость:

7.6 лет

Доходность:

13.19%

Планировка

Никифоров Андрей

Ваш брокер по работе с клиентами

Найдите лучшее место
для жизни, бизнеса, инвестиций

Оставьте свои контакты — с вами свяжется руководитель отдела для презентации нужного вам объекта

Похожие объекты