Id 144461

Остоженка, 10 / 5200м2 / Продажа исторического здания с арендаторами Азбука Вкуса, цветочный бутик, офисы

адрес Москва, Остоженка 10

Арендный бизнес
Бизнес центр
Особняк/здание
Проект

Окупаемость:

Доходность:0.00%

3 800 000 000 RUB | за все

(за 1 м2 — 730 769 RUB)

площадь 5 200.0 м2

QR код Qr код

Продается здание на ул. Остоженка 10. Полностью сдано в аренду, активный пешеходный и автомобильный трафик.
В шаговой доступности метро Кропоткинская
Средняя плотность населения - 2822 квартиры.
Самый известный район Москвы.
Первая линия.
Здание 1917 года постройки. Полностью сдано, 100% заполняемость арендаторами.

Технические требования:
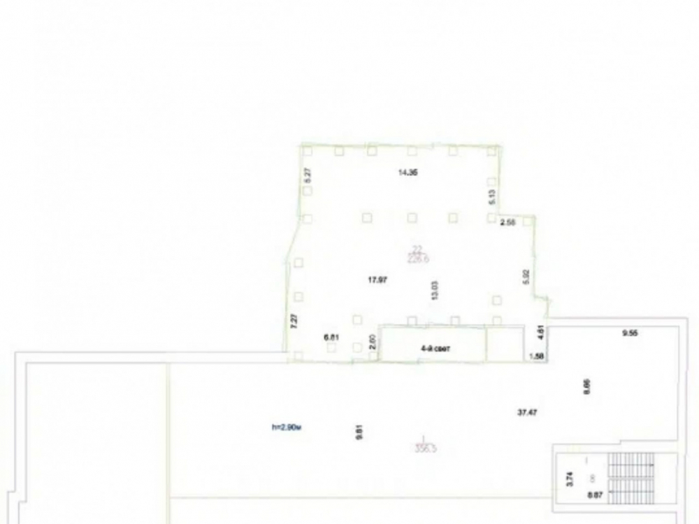
Общая площадь - 5 200 кв м. Отдельные входные группы. Открытая планировка. Зона разгрузки/погрузки.

Была проведена полная реконструкция в 2003 году и здание получило самое современное инженерное оснащение, качественную отделку и меблировку холлов и вестибюля, надежные системы охранной и пожарной безопасности.

Парковка на 6 машино-мест, два лифта, террасы, зона отдыха во дворе.

Важное преимущество данного объекта — собственная земля. Земельный участок в собственности - 10 соток

Дополнительно 3 террасы + 300 кв.м входит входит в стоимость.

Коммерческие условия:

Собственность физ лица.
Цена за кв м: 774 325 руб.
Общая стоимость: 3 800 000 000 руб

Арендаторы: Азбука Вкуса, цветочный бутик, офисы

Технические характеристики

Тип здания: Арендный бизнес,Бизнес центр,Особняк/здание,Проект

Общая площадь: 5200  м2

Этаж: 1

Всего этажей: 5

Электрическая мощность: 200 кВт

Высота потолков: 3

Парковка: Парковка во дворе на 6 машиномест

Коммерческие условия

Цена за все: 3 800 000 000 RUB

ФОРМА ВЛАДЕНИЯ: ООО НДС

Окупаемость:

Доходность: 0.00%

карта

Расположение

Адрес: Москва, Остоженка 10

Округ: Центральный административный округ

Близость метро: Кропоткинская

Транспортная доступность: В шаговой доступности метро Кропоткинская.

Окружение

Торговое окружение: Да

Адрес:

Москва, Остоженка 10

Округ:

Центральный административный округ

Близость метро:

Кропоткинская

Транспортная доступность:

В шаговой доступности метро Кропоткинская.

карта

Торговое окружение:

Да

Общая площадь:

5200  м2

Этаж:

1

Всего этажей:

5

Тип:

Арендный бизнес,Бизнес центр,Особняк/здание,Проект

Электрическая мощность:

200 кВт

Высота потолков:

3

Парковка:

Парковка во дворе на 6 машиномест

ФОРМА ВЛАДЕНИЯ:

ООО НДС

Цена за все:

3 800 000 000 RUB

Окупаемость:

Доходность:

0.00%

Планировка

Гервас Ксения

Ваш брокер по работе с клиентами

Найдите лучшее место
для жизни, бизнеса, инвестиций

Оставьте свои контакты — с вами свяжется руководитель отдела для презентации нужного вам объекта

Похожие объекты