Id 141143

Москва, ЗАО, ул Беловежская , д.71/123.5 м2/Продажа ГАБ

адрес Москва, ЗАО, ул Беловежская , д.71

Арендный бизнес
С отдельным входом
Торговая

Окупаемость: 10.4 лет

Доходность:9.60%

29 900 000 RUB | за все

(за 1 м2 — 242 105 RUB)

площадь 123.5 м2

QR код Qr код

Продается готовый арендный бизнес с сетевым арендатором магазин "Градусы" , на первом этаже жилого дома, расположенного по адресу: ул Беловежская , д 71. Напротив помещения остановка общественного транспорта. Помещение находиться в окружении крупного сформировавшегося жилого массива.

Окружение: Магнит, Инвитро.

Технические характеристики помещения:
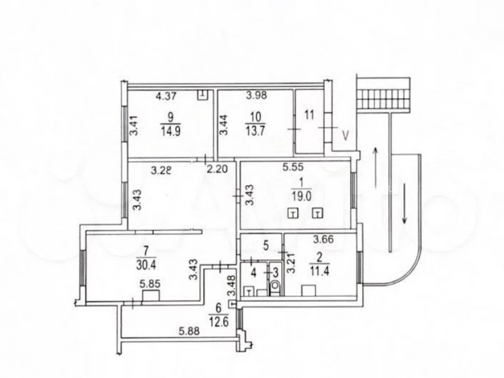
Расположено на 1 этаже 18-этажного жилого дома общей площадью 123.5 кв.м.; 15 кВт
Отдельный вход; Витринные окна; Размещение рекламной вывески на фасаде. Вход с первой линии.

Арендаторы:
Градусы, ДДА на 7 лет от 2025 года.индексация 5% безуловная два раза на протижения срока аренды.
МАП - 240 000 рублей;


Коммерческие условия:
Стоимость помещения: 29 900 000 рублей
Стоимость за м2: 242 105 рублей
Окупаемость: 10.4 лет

Технические характеристики

Тип здания: Арендный бизнес,С отдельным входом,Торговая

Общая площадь: 123.5  м2

Этаж: 1

Всего этажей: 14

Электрическая мощность: 25

Высота потолков: 3

Парковка: есть

Коммерческие условия

Цена за все: 29 900 000 RUB

ФОРМА ВЛАДЕНИЯ: ооо

Общий МАП: 240 000 RUB (данный МАП является минимальным, при оптимизации арендаторов арендный поток можно значительно увеличить)

Общий ГАП: 2 880 000 RUB

Окупаемость: 10.4 лет

Доходность: 9.60%

карта

Расположение

Адрес: Москва, ЗАО, ул Беловежская , д.71

Округ: Западный административный округ

Близость метро: Кунцевская,Славянский бульвар

Транспортная доступность: есть

Окружение

Торговое окружение: хорошее

Адрес:

Москва, ЗАО, ул Беловежская , д.71

Округ:

Западный административный округ

Близость метро:

Кунцевская,Славянский бульвар

Транспортная доступность:

есть

карта

Торговое окружение:

хорошее

Общая площадь:

123.5  м2

Этаж:

1

Всего этажей:

14

Тип:

Арендный бизнес,С отдельным входом,Торговая

Электрическая мощность:

25

Высота потолков:

3

Парковка:

есть

ФОРМА ВЛАДЕНИЯ:

ооо

Цена за все:

29 900 000 RUB

Общий МАП: 240 000

(данный МАП является минимальным, при оптимизации арендаторов арендный поток можно значительно увеличить)

Общий ГАП:

2 880 000

Окупаемость:

10.4 лет

Доходность:

9.60%

Планировка

Эльдар Керимов

Ваш брокер по работе с клиентами

Найдите лучшее место
для жизни, бизнеса, инвестиций

Оставьте свои контакты — с вами свяжется руководитель отдела для презентации нужного вам объекта

Похожие объекты