Id 138795

ул. Остоженка, 25 с1 - 1 843 м² - Аренда офиса с отдельным входом и террасой

адрес Москва, ул. Остоженка, 25С1

Многофункциональный
Особняк/здание
С отдельным входом
Офис

9 000 000 RUB | в месяц

(за 1 м2 — 4 883 RUB)

площадь 1 843.0 м2

QR код Qr код

Аренда смарт-офиса в МФК "Опера Хаус" класса A. Шестиэтажный корпус сдается целиком, отдельный вход. Рассадка на 200 рабочих мест.
Офисный блок сдается с мебелью, есть терраса.

Технические параметры:
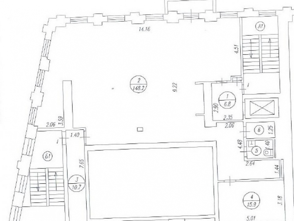
Планировка: Площадь: 1 843 м²
Этажи: 1, 3-6 и выход на террасу.
1 этаж - зона ресепшн и кафе, конференц-зал;
3 этаж - open space, переговорная, гардеробная и сан. узлы;
4 этаж - open space , архив, переговорная и лауж-зона, сан. узлы;
5 этаж -open space , кабинет, сан. узлы и event-зона;
6 этаж - кухня, 2 переговорные, опенспейс и выход на террасу.
Отделка: готово для въезда
Помещение сдается с мебелью и техникой
Вентиляция: приточно-вытяжная.
Кондиционирование: центральное.
Пассажирские лифты: есть.

Коммерческие условия:
Арендная ставка: 58.000 руб./м² в год.
Стоимость аренды в месяц: 9 000 000 рублей
НДС, OPEX, КУ, мебель, включены в арендную ставку.
Есть обеспечительный платеж.
Возможность предоставления арендных каникул.

Технические характеристики

Тип здания: Многофункциональный,Особняк/здание,С отдельным входом,Офис

Общая площадь: 1843  м2

Этаж: 1

Всего этажей: 6

Электрическая мощность: -

Высота потолков: -

Парковка: -

Коммерческие условия

Цена в месяц: 9 000 000 RUB

ФОРМА ВЛАДЕНИЯ: -

карта

Расположение

Адрес: Москва, ул. Остоженка, 25С1

Округ: Центральный административный округ

Близость метро: Кропоткинская,Парк культуры

Транспортная доступность: -

Окружение

Торговое окружение: -

Адрес:

Москва, ул. Остоженка, 25С1

Округ:

Центральный административный округ

Близость метро:

Кропоткинская,Парк культуры

Транспортная доступность:

-

карта

Торговое окружение:

-

Общая площадь:

1843  м2

Этаж:

1

Всего этажей:

6

Тип:

Многофункциональный,Особняк/здание,С отдельным входом,Офис

Электрическая мощность:

-

Высота потолков:

-

Парковка:

-

ФОРМА ВЛАДЕНИЯ:

-

Цена в месяц:

9 000 000 RUB

Инна Васильева

Ваш брокер по работе с клиентами

Найдите лучшее место
для жизни, бизнеса, инвестиций

Оставьте свои контакты — с вами свяжется руководитель отдела для презентации нужного вам объекта

Похожие объекты