Id 160619

Москва, Смоленская-Сенная площадь, 27 ст6 - 1639 м2 / Продажа ОСЗ

адрес Москва, Смоленская-Сенная площадь, 27с6

Особняк/здание
С отдельным входом

8 195 000 RUB | в месяц

(за 1 м2 — 5 000 RUB)

площадь 1 639.0 м2

QR код Qr код

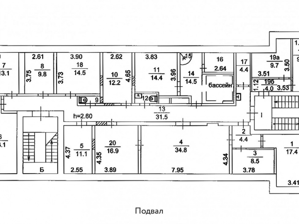
Предлагается в аренду отдельно стоящее здание, расположенное по адресу: Москва, Смоленская-Сенная площадь, 27 ст6, общей площадью 1639 м2. Ближайшие станции метро: м. "Смоленская". Удобный выезд на основные магистрали города. Развитая инфраструктура.

Технические параметры:
Общая площадь: 1639 м2.
На подземных уровнях расположены бассейн, сауна и бильярд. Проведены центральные коммуникации, оборудованы системы кондиционирования, вентиляции, видеонаблюдения и пожаротушения. Во внутреннем дворе спланирована наземная парковка на 8 машин.

Коммерческие условия:
Стоимость аренды в месяц - 8 195 000 рублей, включая НДС 22 %
Ставка за 1 м2 - 60 000 рублей в год.
Земля 650 м² в аренде

Технические характеристики

Тип здания: Особняк/здание,С отдельным входом

Общая площадь: 1639  м2

Этаж: 1

Всего этажей: 3

Электрическая мощность: -

Высота потолков: -

Парковка: Имеется

Коммерческие условия

Цена в месяц: 8 195 000 RUB

ФОРМА ВЛАДЕНИЯ: Собственность

карта

Расположение

Адрес: Москва, Смоленская-Сенная площадь, 27с6

Округ: Центральный административный округ

Близость метро: Киевская,Смоленская (Арбатско-Покровская)

Транспортная доступность: развитое

Окружение

Торговое окружение: -

Адрес:

Москва, Смоленская-Сенная площадь, 27с6

Округ:

Центральный административный округ

Близость метро:

Киевская,Смоленская (Арбатско-Покровская)

Транспортная доступность:

развитое

карта

Торговое окружение:

-

Общая площадь:

1639  м2

Этаж:

1

Всего этажей:

3

Тип:

Особняк/здание,С отдельным входом

Электрическая мощность:

-

Высота потолков:

-

Парковка:

Имеется

ФОРМА ВЛАДЕНИЯ:

Собственность

Цена в месяц:

8 195 000 RUB

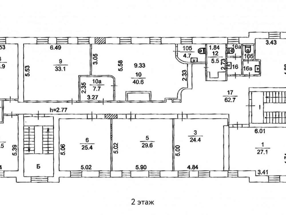
Планировка

Сухарев Михаил

Ваш брокер по работе с клиентами

Найдите лучшее место
для жизни, бизнеса, инвестиций

Оставьте свои контакты — с вами свяжется руководитель отдела для презентации нужного вам объекта

Похожие объекты