Id 13813

Москва, ул. Милашенкова д. 7, к.1/ 81 м2./ Продажа ПСН с арендаторами.

адрес Москва, улица Милашенкова, 7к1

С отдельным входом
Торговая

52 000 000 RUB | за все

(за 1 м2 — 641 975 RUB)

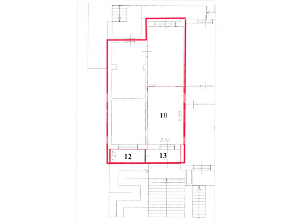
площадь 81.0 м2

QR код Qr код

Продается торговое помещение площадью 81 м2 с арендаторами рядом с метро Фонвизинская, Милашенкова, д. 7, к1.
Первая линия. Район с плотной заселенной жилой застройкой, также идет активное строительство новых ЖК в зоне доступности метро Фонвизинская.
Интенсивный пешеходный и автомобильный трафик, от метро "Фонвизинская" 15 метров (помещение расположено прямо напротив метро). Также рядом остановка наземного транспорта.

Торговое окружение:
Яндекс Маркет, Озон, Вкусно и точка.


Технические параметры:
1 этаж 14-этажного многоквартирного жилого дома, общей площадью 81 м2.
Три входа, один с первой линии, два со двора. Разгрузочно-погрузочная зона. Высота потолков 2,7 м. Мощность электроэнергии 25 кВт.
Городские коммуникации. Качественный ремонт. Большие витринные окна, обеспечивающие широкий рекламный потенциал.

Коммерческие условия:
Стоимость объекта: 52 000 000 рублей.
Стоимость объекта за м2: 641 975 рублей.

Технические характеристики

Тип здания: С отдельным входом,Торговая

Общая площадь: 81  м2

Этаж: 1

Всего этажей: 14

Электрическая мощность: 25

Высота потолков: 2.7

Парковка: Есть

Коммерческие условия

Цена за все: 52 000 000 RUB

ФОРМА ВЛАДЕНИЯ: Частная собственность

карта

Расположение

Адрес: Москва, улица Милашенкова, 7к1

Округ: Северо-Восточный административный округ

Близость метро: Фонвизинская

Транспортная доступность: Есть

Окружение

Торговое окружение: Есть

Адрес:

Москва, улица Милашенкова, 7к1

Округ:

Северо-Восточный административный округ

Близость метро:

Фонвизинская

Транспортная доступность:

Есть

карта

Торговое окружение:

Есть

Общая площадь:

81  м2

Этаж:

1

Всего этажей:

14

Тип:

С отдельным входом,Торговая

Электрическая мощность:

25

Высота потолков:

2.7

Парковка:

Есть

ФОРМА ВЛАДЕНИЯ:

Частная собственность

Цена за все:

52 000 000 RUB

Планировка

Шаклеина Юлия

Ваш брокер по работе с клиентами

Найдите лучшее место
для жизни, бизнеса, инвестиций

Оставьте свои контакты — с вами свяжется руководитель отдела для презентации нужного вам объекта

Похожие объекты