Id 9883

г. Москва Челобитьевское ш., 10Б / 1036 кв.м / Продажа Арендного бизнеса / Пятёрочка.

адрес Москва, Челобитьевское ш., 10Б

Арендный бизнес
Особняк/здание
Торговая

Окупаемость: 9.9 лет

Доходность:10.08%

220 000 000 RUB | за все

(за 1 м2 — 212 355 RUB)

площадь 1 036.0 м2

QR код Qr код

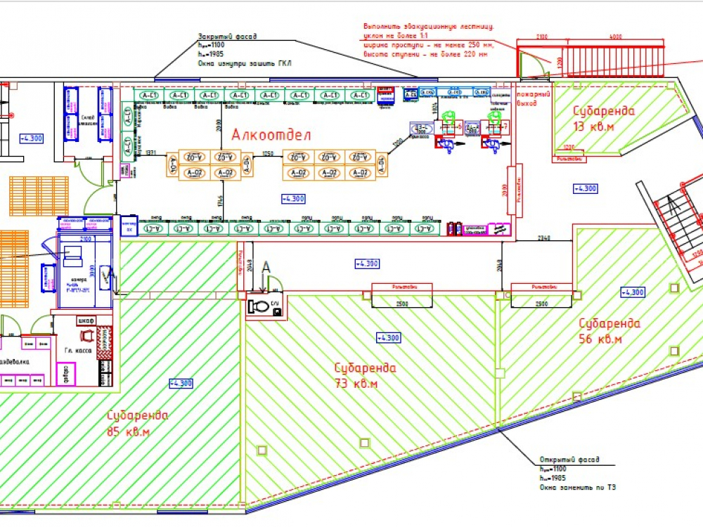
Продаётся отдельно стоящее здание с арендатором - магазином Пятёрочка, находящееся по адресу: Москва, СВАО, Северный район, Челобитьевское ш., 10Б. Спальный район из 15 многоэтажных жилых домов на 2800 квартир. Единственный крупный продуктовый магазин в районе. Первая линия домов, прямо напротив остановка общественного транспорта (2 автобусных маршрута). Рядом бесплатная парковка на 70 мест. В непосредственной близости жилые дома, алкомаркет Красное-Белое, Тюриковский пруд, природный заказник "Северный".

Технические параметры:
Торговое отдельно стоящее 2-х этажное здание (2017 года постройки), общей площадью 1036.0 кв.м. Без подвала. Большие панорамные окна по периметру здания. Несколько отдельных входов. Зона погрузки-разгрузки. Открытая планировка. Высота потолков 4,0 метра, выделенная электрическая мощность 90 кВт. Центральные коммуникации. Действующая алкогольная лицензия.
Земельный участок 1579 кв.м. в долгосрочной аренде на 49 лет у города.

Коммерческие условия:
Стоимость - 220 000 000 руб.
Стоимость кв.м - 212 355 рублей.
Арендатор - "Пятёрочка". Договор аренды с марта 2025 года на 7 лет. Безусловная индексация 5% со второго года.
Эксплуатационные расходы на арендаторе.
МАП - 1 850 000 рублей.
ГАП - 22 200 000 рублей.
Форма продажи - ДКПН.
Окупаемость: 9,9 лет.
Доходность: 11 %.

Технические характеристики

Тип здания: Арендный бизнес,Особняк/здание,Торговая

Общая площадь: 1036  м2

Этаж: 1

Всего этажей: 2

Электрическая мощность: 90 кВт

Высота потолков: 4 м

Парковка: -

Коммерческие условия

Цена за все: 220 000 000 RUB

ФОРМА ВЛАДЕНИЯ: Юр. лицо

Общий МАП: 1 850 000 RUB (данный МАП является минимальным, при оптимизации арендаторов арендный поток можно значительно увеличить)

Общий ГАП: 22 200 000 RUB

Окупаемость: 9.9 лет

Доходность: 10.08%

карта

Расположение

Адрес: Москва, Челобитьевское ш., 10Б

Округ: Северо-Восточный административный округ

Близость метро: Алтуфьево,Лианозово,Марк

Транспортная доступность: -

Окружение

Торговое окружение: -

Адрес:

Москва, Челобитьевское ш., 10Б

Округ:

Северо-Восточный административный округ

Близость метро:

Алтуфьево,Лианозово,Марк

Транспортная доступность:

-

карта

Торговое окружение:

-

Общая площадь:

1036  м2

Этаж:

1

Всего этажей:

2

Тип:

Арендный бизнес,Особняк/здание,Торговая

Электрическая мощность:

90 кВт

Высота потолков:

4 м

Парковка:

-

ФОРМА ВЛАДЕНИЯ:

Юр. лицо

Цена за все:

220 000 000 RUB

Общий МАП: 1 850 000

(данный МАП является минимальным, при оптимизации арендаторов арендный поток можно значительно увеличить)

Общий ГАП:

22 200 000

Окупаемость:

9.9 лет

Доходность:

10.08%

Шаклеина Юлия

Ваш брокер по работе с клиентами

Найдите лучшее место
для жизни, бизнеса, инвестиций

Оставьте свои контакты — с вами свяжется руководитель отдела для презентации нужного вам объекта

Похожие объекты