Id 20057

ул. Новодмитровская д. 1 стр 6 - 85.9 м² - Продажа офиса с арендатором в общественно-деловом пространстве Хлебозавод №9

адрес Москва, ул. Новодмитровская д. 1 стр 6

Арендный бизнес
Бизнес центр
Офис

Окупаемость: 15.3 лет

Доходность:6.52%

47 245 000 RUB | за все

(за 1 м2 — 550 000 RUB)

площадь 85.9 м2

QR код Qr код

Продажа офиса с арендатором в общественно-деловом пространстве Хлебозавод №9.
Арендатор: БИЮ стоматология.
Комплекс расположен в Бутырском районе Северо-Восточного административного округа города Москвы. Ближайшая станция метро "Дмитровская".
Поблизости пролегает Бутырская улица, которая обеспечивает удобные выезды на ТТК и Дмитровское шоссе. Насыщенная инфраструктура на территории комплекса.

Технические параметры:
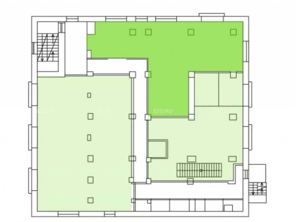
Помещение на 3 этаже, общей площадью 85,9 кв.м. Вход по лестнице от входа со стороны главной аллеи.
Высота потолков – 4,3 метра.
Приточно вытяжная система вентиляции. Система кондиционирования: центральная система (Чиллер-Фанкойл).
Противопожарные системы. Круглосуточная охрана и система видеонаблюдения.

Коммерческие условия:
Стоимость продажи помещения : 47 245 000 рублей. УСН
Стоимость продажи 1 кв.м : 550 000 рублей
Арендатор: офис стоматологической клиники
МАП: 256 800 рублей.
ГАП: 3 081 600 рублей.

Технические характеристики

Тип здания: Арендный бизнес,Бизнес центр,Офис

Общая площадь: 85.9  м2

Этаж: 3

Всего этажей: 5

Электрическая мощность: по запросу

Высота потолков: 4,3 м

Парковка: -

Коммерческие условия

Цена за все: 47 245 000 RUB

ФОРМА ВЛАДЕНИЯ: -

Общий МАП: 256 800 RUB (данный МАП является минимальным, при оптимизации арендаторов арендный поток можно значительно увеличить)

Общий ГАП: 3 081 600 RUB

Окупаемость: 15.3 лет

Доходность: 6.52%

карта

Расположение

Адрес: Москва, ул. Новодмитровская д. 1 стр 6

Округ: Северо-Восточный административный округ

Близость метро: Дмитровская,Савеловская

Транспортная доступность: Ближайшая станция м. Дмитровская. Поблизости пролегает Бутырская улица, которая обеспечивает удобные выезды на ТТК и Дмитровское шоссе.

Окружение

Торговое окружение: Насыщенная инфраструктура на территории комплекса.

Адрес:

Москва, ул. Новодмитровская д. 1 стр 6

Округ:

Северо-Восточный административный округ

Близость метро:

Дмитровская,Савеловская

Транспортная доступность:

Ближайшая станция м. Дмитровская. Поблизости пролегает Бутырская улица, которая обеспечивает удобные выезды на ТТК и Дмитровское шоссе.

карта

Торговое окружение:

Насыщенная инфраструктура на территории комплекса.

Общая площадь:

85.9  м2

Этаж:

3

Всего этажей:

5

Тип:

Арендный бизнес,Бизнес центр,Офис

Электрическая мощность:

по запросу

Высота потолков:

4,3 м

Парковка:

-

ФОРМА ВЛАДЕНИЯ:

-

Цена за все:

47 245 000 RUB

Общий МАП: 256 800

(данный МАП является минимальным, при оптимизации арендаторов арендный поток можно значительно увеличить)

Общий ГАП:

3 081 600

Окупаемость:

15.3 лет

Доходность:

6.52%

Планировка

Гервас Ксения

Ваш брокер по работе с клиентами

Найдите лучшее место
для жизни, бизнеса, инвестиций

Оставьте свои контакты — с вами свяжется руководитель отдела для презентации нужного вам объекта

Похожие объекты