Id 160871

Октябрьская улица, 80 - 313 кв. м. - Аренда / ПСН / ОСЗ

адрес Москва, Октябрьская улица, 80

Многофункциональный
Особняк/здание
С отдельным входом

782 500 RUB | в месяц

(за 1 м2 — 2 500 RUB)

площадь 313.0 м2

QR код Qr код

В аренду: отдельно стоящее здание, 5 минут от метро и БКЛ «Марьина Роща».
Адрес: г. Москва, СВАО, район Марьина роща, Октябрьская улица, 80.
5 минут пешком до станции метро «Марьина Роща» (включая БКЛ). Рядом — улицы Сущёвский Вал, Шереметьевская, Двинцев. Высокий автомобильный и пешеходный трафик. Остановки общественного транспорта — в шаговой доступности. Здание находится напротив ЖК «Октябрьская 98» (645 квартир, застройщик — ГК «Самолёт»). Комплекс уже введён в эксплуатацию и активно заселяется.

Технические характеристики:
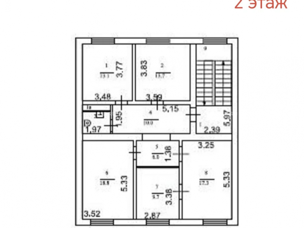
Общая площадь: 313 м² (три этажа)
1 этаж — 105 м²
2 этаж — 106,3 м²
3 этаж — 107 м²
Отдельный вход
Высота потолков — 3 м
Электричество — обсуждается индивидуально
Разгрузка / погрузка — со двора
Земельный участок в аренде у города до 2063 года — 566 м²

Коммерческие условия:
Арендная ставка: 782 500 рублей в месяц
Ставка за 1 кв. м.: 2 500 рублей в месяц

Технические характеристики

Тип здания: Многофункциональный,Особняк/здание,С отдельным входом

Общая площадь: 313  м2

Этаж: 1

Всего этажей: 3

Электрическая мощность: по запросу

Высота потолков: 3 м

Парковка: наземная

Коммерческие условия

Цена в месяц: 782 500 RUB

ФОРМА ВЛАДЕНИЯ: собственность

карта

Расположение

Адрес: Москва, Октябрьская улица, 80

Округ: Северо-Восточный административный округ

Близость метро: Марьина роща

Транспортная доступность: в пешей доступности

Окружение

Торговое окружение: развитая инфраструктура

Адрес:

Москва, Октябрьская улица, 80

Округ:

Северо-Восточный административный округ

Близость метро:

Марьина роща

Транспортная доступность:

в пешей доступности

карта

Торговое окружение:

развитая инфраструктура

Общая площадь:

313  м2

Этаж:

1

Всего этажей:

3

Тип:

Многофункциональный,Особняк/здание,С отдельным входом

Электрическая мощность:

по запросу

Высота потолков:

3 м

Парковка:

наземная

ФОРМА ВЛАДЕНИЯ:

собственность

Цена в месяц:

782 500 RUB

Планировка

Теребилов Михаил

Ваш брокер по работе с клиентами

Найдите лучшее место
для жизни, бизнеса, инвестиций

Оставьте свои контакты — с вами свяжется руководитель отдела для презентации нужного вам объекта

Похожие объекты