Id 160555

МО, Мытищи городской округ, Пирогово деревня, ул. Ильинского, 8 - 152.2 м2 / Продажа торговое, ПСН

адрес деревня Пирогово, улица Ильинского, 8

С отдельным входом
Торговая

260 000 RUB | в месяц

(за 1 м2 — 1 708 RUB)

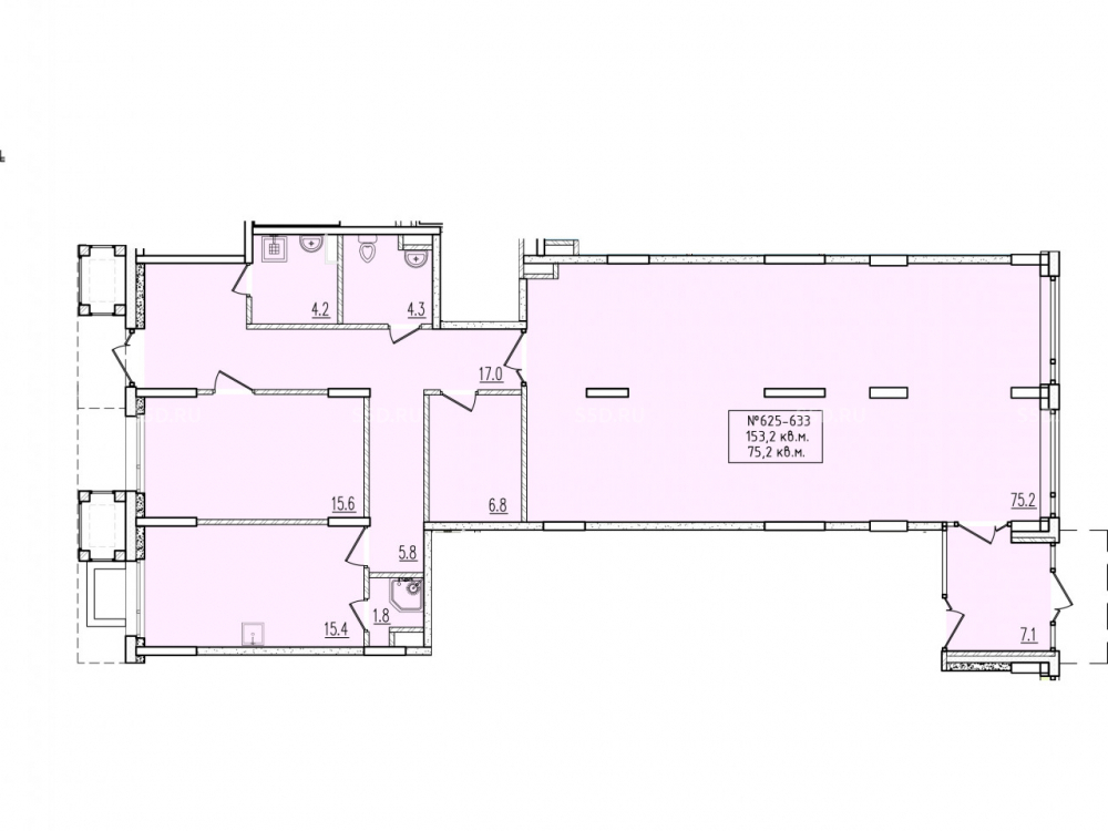
площадь 152.2 м2

QR код Qr код

Сдается в аренду торговое помещение в ЖК Пироговская Ривьера (комфорт класс), по адресу: МО, Мытищи городской округ, Пирогово деревня, ул. Ильинского, 8., расположенное в 12 км от МКАД по Осташковскому шоссе. На данный момент в ЖК живет уже около 8500 жителей. В 100 метрах крупнейший пляж на Пироговском водохранилище (в сезон очень высокий трафик).

Технические характеристики:
Общая площадь 152,2 м2. 1-й этаж стилобатной части жилого дома. Витринное остекление. Высота потолков 3.3 м. Эл. Мощность 8 кВт. Имеется технологическая вытяжка

Коммерческие условия:
Стоимость объекта - 260 000 руб.
Стоимость за м2 - 1 700 руб.
Форма собственности - физ.лицо.

Технические характеристики

Тип здания: С отдельным входом,Торговая

Общая площадь: 152.2  м2

Этаж: 1

Всего этажей: 9

Электрическая мощность: 8

Высота потолков: 3.3

Парковка: наземная

Коммерческие условия

Цена в месяц: 260 000 RUB

ФОРМА ВЛАДЕНИЯ: физ.лицо

карта

Расположение

Адрес: деревня Пирогово, улица Ильинского, 8

Округ: Северный административный округ

Близость метро: Медведково

Транспортная доступность: -

Окружение

Торговое окружение: Верный, Самокат, Улыбка Радуги, Винлаб, МестоПива,

Адрес:

деревня Пирогово, улица Ильинского, 8

Округ:

Северный административный округ

Близость метро:

Медведково

Транспортная доступность:

-

карта

Торговое окружение:

Верный, Самокат, Улыбка Радуги, Винлаб, МестоПива,

Общая площадь:

152.2  м2

Этаж:

1

Всего этажей:

9

Тип:

С отдельным входом,Торговая

Электрическая мощность:

8

Высота потолков:

3.3

Парковка:

наземная

ФОРМА ВЛАДЕНИЯ:

физ.лицо

Цена в месяц:

260 000 RUB

Планировка

Шагитов Марат

Ваш брокер по работе с клиентами

Найдите лучшее место
для жизни, бизнеса, инвестиций

Оставьте свои контакты — с вами свяжется руководитель отдела для презентации нужного вам объекта

Похожие объекты