Id 160156

МО, мкр. Пригород Лесное, Пригородное шоссе, д. 6/ 79 м2/ продажа торгового помещения

адрес посёлок городского типа Мисайлово, Пригородное шоссе, 6

С отдельным входом
Торговая
Жилой комплекс (мфк)
Новостройка

20 000 000 RUB | за все

(за 1 м2 — 253 165 RUB)

площадь 79.0 м2

QR код Qr код

Предлагается к продаже помещение свободного назначения в новом доме 2023 года постройки, расположенного по адресу: МО, Ленинский г.о., мкр. Пригород Лесное, Пригородное шоссе, д. 6. Жилой комплекс рассчитан на 80 000 жителей. Помещение расположено на «народной тропе» между домами №4 и №6 (путь к остановке и школе). В радиусе 200 метров — более 3 000 квартир (~7 500 жителей). Прямая видимость с автобусной остановки.

Торговое окружение:
«Магнит Косметик», «Красное & Белое», «Горздрав», «Ярче», «Ермолино», ПВЗ Wildberries/Ozon.

Технические характеристики:
Отдельный 1 вход с улицы и фасада • первая линия • площадь 79 м² • первый этаж • высота потолков 4 м • мощность электросети 16 кВт • центральные коммуникации • без отделки • витринное остекление • парковка перед входом • техническая вытяжка.

Коммерческие условия:
• Стоимость за все - 20 000 000 рублей
• Стоимость за кв.м - 253 165 рублей
• Потенциальный МАП 158 000 рублей/ ГАП 1 896 000 рублей
• Потенциальный срок окупаемости 10,5 лет для покупателя на УСН; 8,5 лет для покупателя на НДС
• Продажа по ДКПН от юр. лица с НДС

Технические характеристики

Тип здания: С отдельным входом,Торговая,Жилой комплекс (мфк),Новостройка

Общая площадь: 79  м2

Этаж: 1

Всего этажей: 17

Электрическая мощность: 79

Высота потолков: 4

Парковка: на улице

Коммерческие условия

Цена за все: 20 000 000 RUB

ФОРМА ВЛАДЕНИЯ: ООО с НДС

карта

Расположение

Адрес: посёлок городского типа Мисайлово, Пригородное шоссе, 6

Близость метро: Домодедовская

Транспортная доступность: от метро Домодедовская 25 мин. на транспорте

Окружение

Торговое окружение: «Магнит Косметик», «Красное & Белое», «Горздрав», «Ярче», «Ермолино», ПВЗ Wildberries/Ozon

Адрес:

посёлок городского типа Мисайлово, Пригородное шоссе, 6

Округ:

Близость метро:

Домодедовская

Транспортная доступность:

от метро Домодедовская 25 мин. на транспорте

карта

Торговое окружение:

«Магнит Косметик», «Красное & Белое», «Горздрав», «Ярче», «Ермолино», ПВЗ Wildberries/Ozon

Общая площадь:

79  м2

Этаж:

1

Всего этажей:

17

Тип:

С отдельным входом,Торговая,Жилой комплекс (мфк),Новостройка

Электрическая мощность:

79

Высота потолков:

4

Парковка:

на улице

ФОРМА ВЛАДЕНИЯ:

ООО с НДС

Цена за все:

20 000 000 RUB

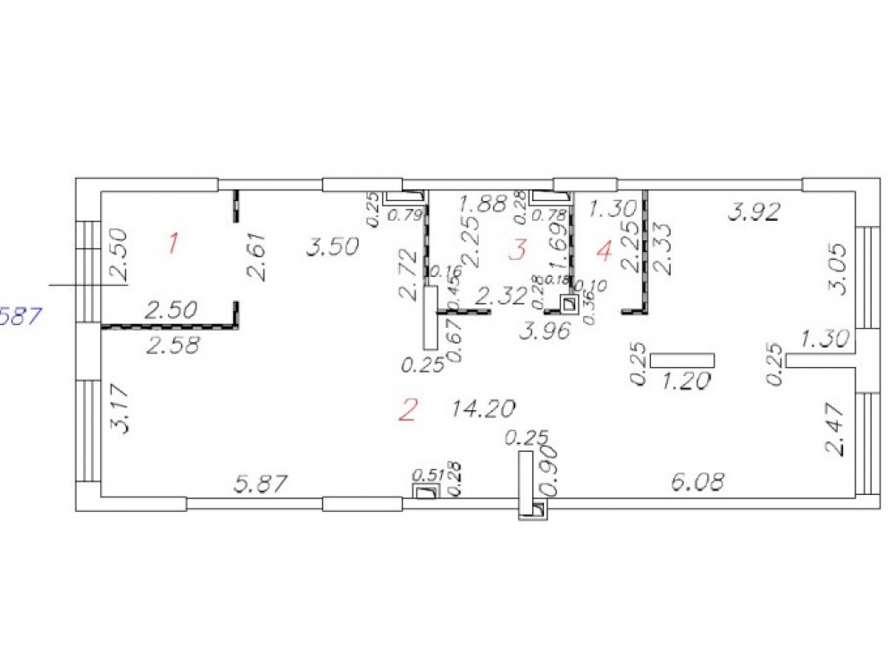
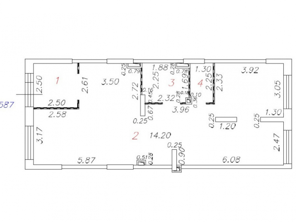
Планировка

Никифоров Андрей

Ваш брокер по работе с клиентами

Найдите лучшее место
для жизни, бизнеса, инвестиций

Оставьте свои контакты — с вами свяжется руководитель отдела для презентации нужного вам объекта

Похожие объекты