Id 159595

Москва Бунинская Аллея дом 13 / 400 кв.м/ Аренда / Общепит / Спорт / Клуб / Торговля

адрес Москва, улица Бунинская Аллея, 13

Особняк/здание
С отдельным входом
Торговая
Общепит
Медицина

800 000 RUB | в месяц

(за 1 м2 — 2 000 RUB)

площадь 400.0 м2

QR код Qr код

Предлагается в аренду помещение на 2 этаже со своим входом в отдельно стоящем здание в ЮЗАО по адресу: Москва, Бунинская Аллея, дом.13. Ближайшая станция метро - Бунинская Аллея находится в 10 минутах пешком.
Расположено на первой линии домов, что обеспечивает удобный доступ и высокий покупательский трафик.
Объект идеально подходит для различных видов бизнеса - от магазинов и ресторанов до медицинских центров и фитнес-клубов.

Технические параметры:
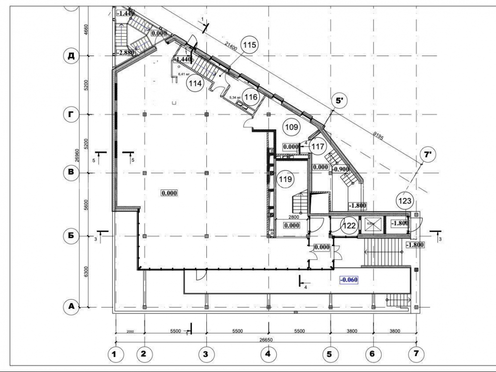
Общая площадь помещения 400 кв.м.
Все городские коммуникации.
Здание в собственности и введено в эксплуатацию, земля в аренде от 2010г сроком на 49 лет.
Высота потолков от 4 до 8 м.
Наличие пассажирского лифта и подьемника
Электрическая мощность 450 кВт с возможностью увеличения.
Современное здание оборудовано новейшими технологиями, включая противодымную вентиляцию, систему оповещения и управления эвакуацией, а также пожарную сигнализацию.
Свой независимый отдельный вход на каждый этаж.
Возможно увеличение полезной площади за счет обустройства антресолей на 2 этаже.

Коммерческие условия:
Ставка за все здание – 1 600 000 руб. ;(243 243 рублей/ м2);
Ставка за 1-й этаж - 1 020 000 руб.( 3000 руб/м2)
Ставка за 2-й этаж - 800 000 руб. ( 2000 руб/м2).
Ставка за подвал - 190 000 руб (1700 руб/м2)
Договор ДДА.

Технические характеристики

Тип здания: Особняк/здание,С отдельным входом,Торговая,Общепит,Медицина

Общая площадь: 400  м2

Этаж: 2

Всего этажей: 2

Электрическая мощность: 250 кВт с возможностью увеличения

Высота потолков: 4-8 м

Парковка: -

Коммерческие условия

Цена в месяц: 800 000 RUB

ФОРМА ВЛАДЕНИЯ: -

карта

Расположение

Адрес: Москва, улица Бунинская Аллея, 13

Округ: Юго-Западный административный округ

Близость метро: Бунинская аллея

Транспортная доступность: Ближайшая станция метро - Бунинская Аллея находится в 10 минутах пешком.

Окружение

Торговое окружение: -

Адрес:

Москва, улица Бунинская Аллея, 13

Округ:

Юго-Западный административный округ

Близость метро:

Бунинская аллея

Транспортная доступность:

Ближайшая станция метро - Бунинская Аллея находится в 10 минутах пешком.

карта

Торговое окружение:

-

Общая площадь:

400  м2

Этаж:

2

Всего этажей:

2

Тип:

Особняк/здание,С отдельным входом,Торговая,Общепит,Медицина

Электрическая мощность:

250 кВт с возможностью увеличения

Высота потолков:

4-8 м

Парковка:

-

ФОРМА ВЛАДЕНИЯ:

-

Цена в месяц:

800 000 RUB

Планировка

Виталий

Ваш брокер по работе с клиентами

Найдите лучшее место
для жизни, бизнеса, инвестиций

Оставьте свои контакты — с вами свяжется руководитель отдела для презентации нужного вам объекта

Похожие объекты